**Standout Features:**
- Prominent town center location on Fore Street, Brixham
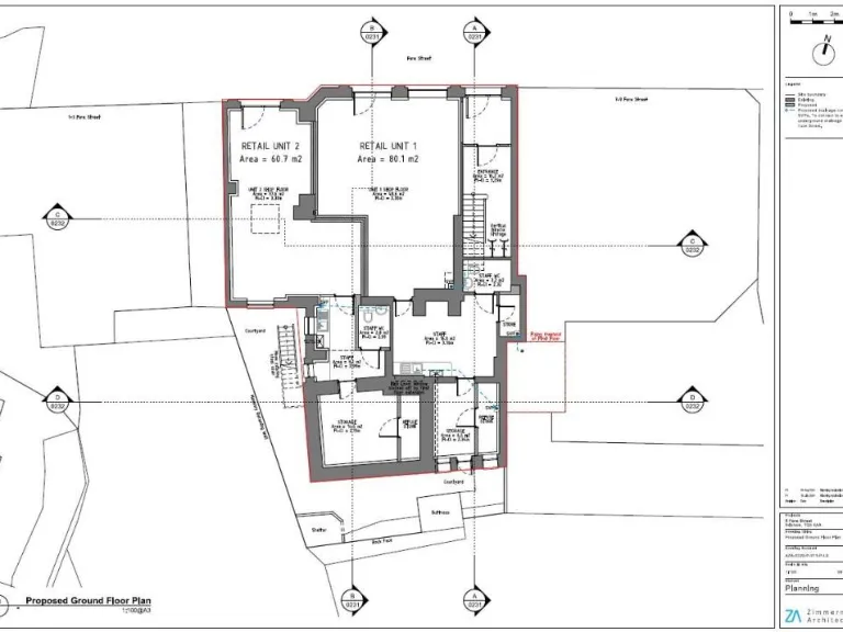
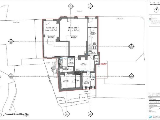
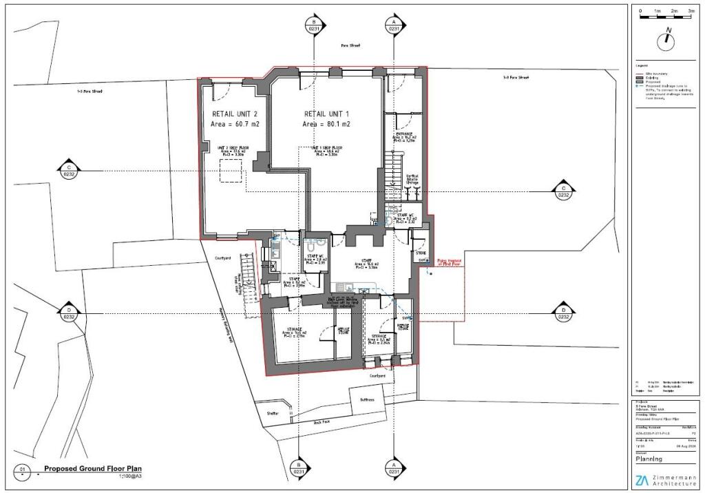
- Expansive retail unit (approx. 70m²) with a high footfall
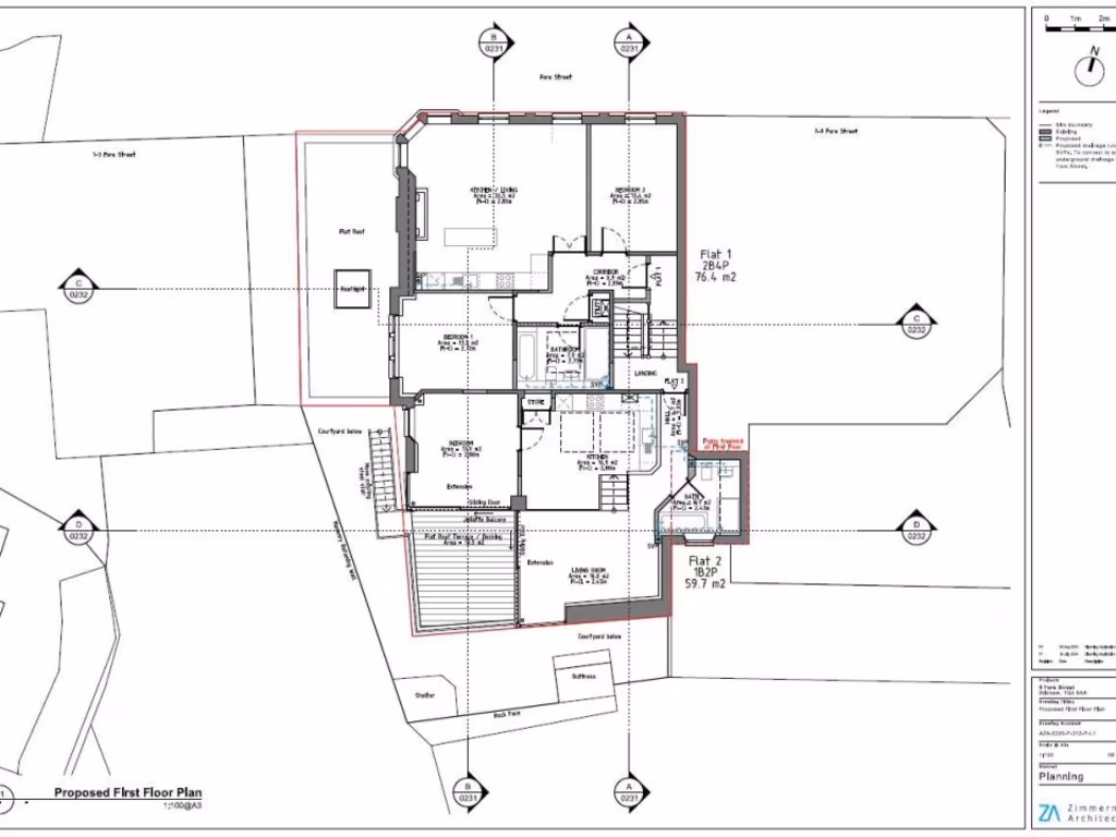
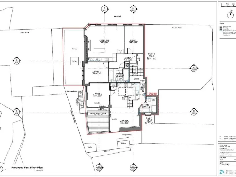
- Attached 3-bedroom flat with potential for renovation and reconfiguration
- Planning permission pending (P2024/0482) for commercial subdivision and residential development
- Attractive period features and separate entrance for residential access
- No upward chain and freehold tenure
- Good rental potential in a highly sought-after area
**Summary:**
Unlock the potential of this historic former bank building, ideally located in the heart of Brixham's vibrant retail core. The substantial freehold offering features a spacious ground floor retail unit perfect for various commercial uses, complemented by a generous three-bedroom flat above, complete with abundant natural light and charming period details. With excellent visibility on a busy street, the property attracts high levels of foot traffic year-round, making it a lucrative investment opportunity or a perfect home for a family looking to run a business.
Pending planning permission allows for the subdivision of the ground floor, creating two retail units while adding modern residential dwellings above. While the property requires some renovation, this allows for customization to suit your vision. Enjoy a sunny, private rear garden ideal for relaxation or outdoor entertaining. Explore the surrounding amenities, including shops, cafés, and schools, which make this an ideal setting for anyone seeking a rich community experience. With the area's growing demand and the chance to shape the future of this site, don't miss out on this rare opportunity!
High street retail property for sale in Fore Street, Brixham, Devon, TQ5 — £250,000 • 1 bed • 1 bath
Residential development for sale in Fore Street, TQ5 — £300,000 • 4 bed • 2 bath • 1555 ft²
Shop for sale in Middle Street, Brixham, TQ5 — £23,000 • 3 bed • 1 bath • 1382 ft²
Commercial property for sale in Brixham, TQ5 — £325,000 • 1 bed • 1 bath • 3595 ft²
Commercial property for sale in Brixham, TQ5 — £75,000 • 1 bed • 1 bath • 613 ft²
1 bedroom house for sale in Drew Street, Brixham, TQ5 — £160,000 • 1 bed • 1 bath • 1054 ft²






























































