Chain-free family home with garden, workshop and easy access to schools.
- Five bedrooms and three bathrooms, well-suited to family life
- Recently renovated and presented to a high standard throughout
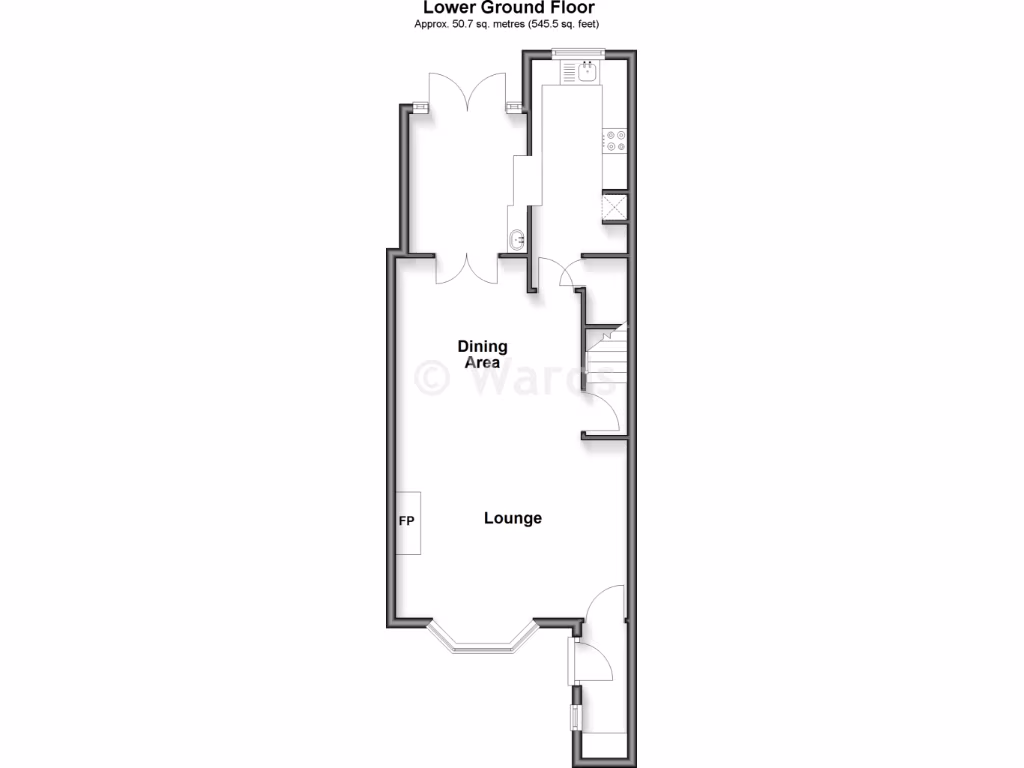
- Modern kitchen, conservatory and generous lounge/diner
- Small, enclosed rear garden; safe for children and pets
- Workshop provides extra storage or hobby space
- Mid-terrace on a modest plot in an early-20th-century building
- Cavity walls assumed uninsulated; check thermal upgrade costs
- Located in a deprived blue-collar area; local amenities nearby
This recently renovated mid-terrace offers five bedrooms and three bathrooms arranged across well-proportioned floors — a rare find for growing families seeking space in central Dover. The house is presented to a high standard throughout with a modern kitchen, conservatory and a lounge/diner that opens easily for family life and entertaining.
Outside, a small but enclosed rear garden and front yard provide safe outdoor space for children and pets, while a useful workshop adds practical storage. The property is chain free and within walking distance of a wide range of schools (including two rated Outstanding and Good), shops and regular bus links, making daily routines straightforward.
Practical features include double glazing, mains gas heating by boiler and affordable council tax. Note the plot is modest and the built form is an early-20th-century mid-terrace; cavity walls are shown as originally built with assumed no added insulation. The wider area is classed as deprived and nearby housing is predominantly blue-collar terraces, which may be relevant for some buyers.
Overall this home suits a family wanting ready-to-move-in accommodation with good schooling and transport links, or an investor seeking a long-term rental in a central town location. Viewings are recommended to appreciate the internal space and finishes firsthand.
5 bedroom terraced house for sale in Heathfield Avenue, Dover, Kent, CT16 — £215,000 • 5 bed • 3 bath • 1147 ft²
3 bedroom end of terrace house for sale in Woods Place, Dover, Kent, CT17 — £300,000 • 3 bed • 2 bath • 1411 ft²
3 bedroom terraced house for sale in Beaconsfield Avenue, Dover, Kent, CT16 — £250,000 • 3 bed • 1 bath • 1120 ft²
3 bedroom terraced house for sale in Buckland Avenue, Dover, Kent, CT16 — £250,000 • 3 bed • 1 bath • 937 ft²
3 bedroom end of terrace house for sale in Kimberley Walk, Dover, Kent, CT16 — £219,950 • 3 bed • 1 bath • 1045 ft²
4 bedroom semi-detached house for sale in Heathfield Avenue, Dover, Kent, CT16 — £325,000 • 4 bed • 2 bath • 934 ft²


























































































































