**Key Features:**
- **Property Type:** Detached residential development site
- **Location:** Old Chapel Yard, Harleston town center, IP20
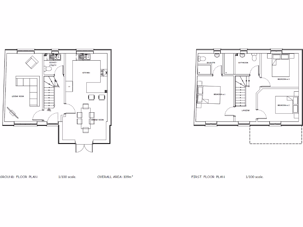
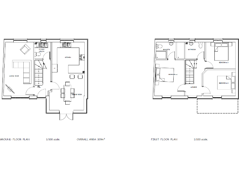
- **Planning Permission:** Full permission for a 3-bedroom dwelling and adjacent garden.
- **Size:** Large plot (0.04 acres) with 1,173 sq ft of potential living space.
- **Amenities:** Close to a range of shops, cafes, schools, and medical facilities.
- **Condition:** Currently a dilapidated storage building, requiring extensive renovation.
This unique detached property in the heart of Harleston presents a fantastic opportunity for self-build enthusiasts or investors looking for a project. With full planning permission already granted for the transformation into a 3-bedroom home, this site encourages creative renovation and potential enhancement in value. The surrounding area hosts a variety of local amenities, ensuring daily convenience and a vibrant lifestyle for future residents.
However, buyers should be prepared for significant refurbishment work on the existing timber-framed barn, which is in a dilapidated state and requires complete rehabilitation. The plot's charming yard offers outdoor potential while benefiting from shared access along a quiet lane. Given Harleston's steady population growth and the projected construction of new housing in the area, this offers not only a unique living opportunity but also strong investment potential. With the local market's demand rising, act quickly to seize this rare chance to secure a prime development site!
Detached house for sale in Old Chapel Yard, Harleston, IP20 — £125,000 • 1 bed • 1 bath • 1173 ft²
1 bedroom semi-detached bungalow for sale in Wilderness Close, Harleston, IP20 — £75,000 • 1 bed • 1 bath • 312 ft²
5 bedroom detached house for sale in Mendham Lane, Harleston, IP20 — £450,000 • 5 bed • 2 bath • 1563 ft²
2 bedroom barn conversion for sale in Eversons Lane, Harleston, IP20 — £350,000 • 2 bed • 2 bath • 1349 ft²
Plot for sale in Wingfield, Near Harleston, IP21 — £450,000 • 1 bed • 1 bath • 3153 ft²
2 bedroom terraced house for sale in Malthouse Court, Harleston, IP20 — £160,000 • 2 bed • 1 bath • 731 ft²






























