**Standout Features:**
- **Location:** Heart of Harleston town centre, close to amenities
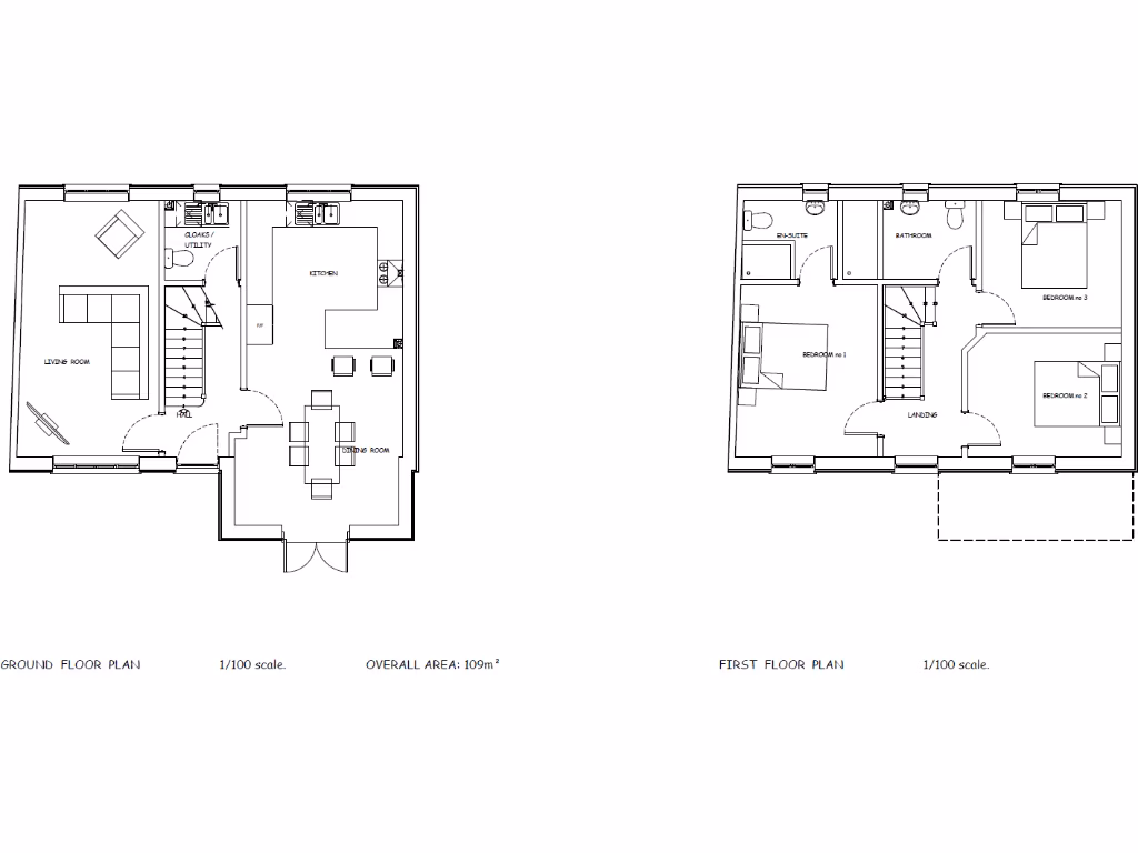
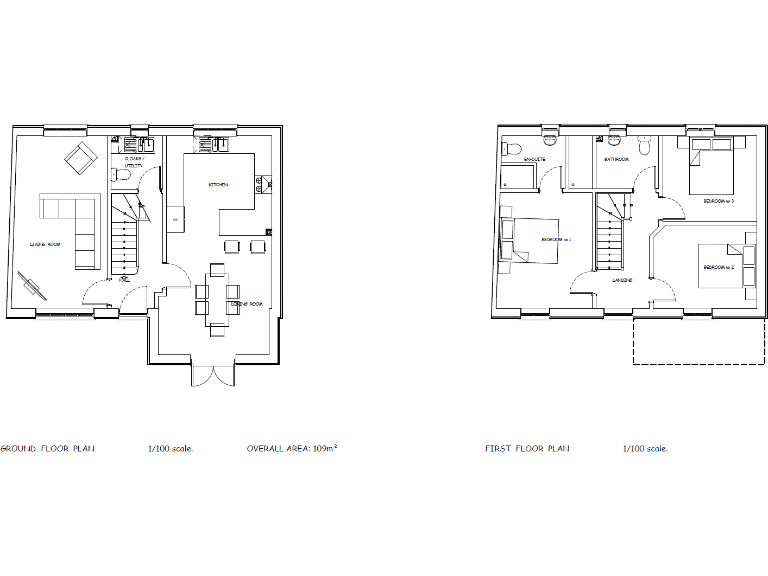
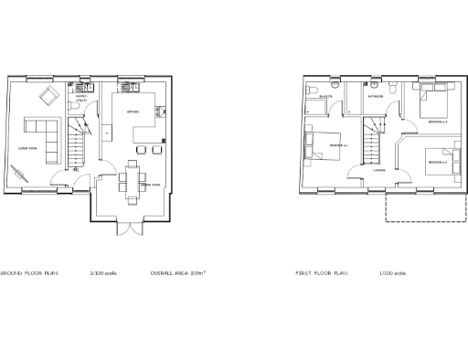
- **Development Potential:** Full planning permission for a 3-bedroom residential dwelling and adjoining garden space
- **Size:** Approximately 1,173 sq. ft. on a 0.04-acre plot
- **Accessibility:** Direct vehicular and pedestrian access from Old Chapel Yard
**Concerns:**
- **Current Condition:** Existing timber-framed barn requires significant renovation, classified as a fixer-upper
- **Usage Restrictions:** Currently designated as an old storage building
Unlock the potential of this detached property in Old Chapel Yard, Harleston, an emerging residential sanctuary with full planning permission for the construction of a contemporary 3-bedroom home. Nestled in the bustling heart of Harleston, this site boasts a wealth of amenities, including shops, cafés, and schools within walking distance, appealing to both families and investors alike.
While the existing structure is a rustic timber-framed barn in need of extensive renovation, envision the possibilities of transforming it into a charming residence or rental property. With a small outdoor space ready for landscaping and gardening, this project promises exclusivity and comfort in a town projected to grow, with 600 new homes planned under the Emerging Local Plan.
Act quickly! Opportunities like this—an affordable entry point into residential development—don't come around often. With services such as mains water and electricity believed to be available, this site could soon become a vibrant home in a thriving community. Make your mark in Harleston today!
Detached house for sale in Old Chapel Yard, Harleston, IP20 — £125,000 • 1 bed • 1 bath • 1173 ft²
2 bedroom barn conversion for sale in Eversons Lane, Harleston, IP20 — £350,000 • 2 bed • 2 bath • 1349 ft²
5 bedroom detached house for sale in Mendham Lane, Harleston, IP20 — £450,000 • 5 bed • 2 bath • 1563 ft²
2 bedroom terraced house for sale in Malthouse Court, Harleston, IP20 — £160,000 • 2 bed • 1 bath • 731 ft²
3 bedroom barn conversion for sale in Wacton Road, Forncett St. Peter, Norwich, NR16 — £600,000 • 3 bed • 3 bath • 3426 ft²
5 bedroom barn conversion for sale in Redenhall, Harleston, IP20 — £1,000,000 • 5 bed • 4 bath • 3678 ft²






























