Detached three-bedroom home with large garden, garage and countryside outlook ideal for family life.
- Large conservatory with countryside views
- Generous private garden with orchard and patios
- Summer house with hot tub and bar included
- Ample parking plus detached garage
- Three bedrooms with fitted storage in principal bedroom
- Oil-fired central heating; higher running costs possible
- Stone construction (pre-1900) likely lacks wall insulation
- Energy ratings moderate (E ground / C overall); consider upgrades
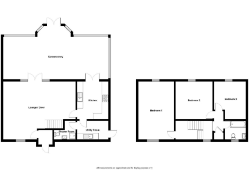
This spacious three-bedroom detached home in Drefach suits families seeking generous living space and a large private garden. The heart of the house is a long lounge/diner that links to an exceptionally large conservatory, which overlooks the lawned garden and provides far-reaching rural views. A detached garage and wide tarmac driveway provide ample parking for several vehicles.
Gardening enthusiasts and entertainers will appreciate the well-kept plot with fruit orchard, multi-level patio areas and a timber summer house that includes a hot tub and bar area. The ground floor shower room and a separate first-floor bathroom give useful flexibility for a busy household, while fitted bedroom storage reduces immediate furniture needs.
Practical points to note: the property uses oil-fired central heating and double glazing, and its construction (stone walls, pre-1900) suggests limited cavity insulation. The Energy Efficiency ratings (42E/76C) are middling; buyers should allow for potential improvements to reduce heating costs. Village amenities are basic but Cross Hands and the M4/A48 are within easy reach for broader shopping and commuting.
Overall this freehold detached house offers a substantial family-sized layout, strong outdoor facilities and parking, but it will suit buyers prepared to consider energy upgrades and minor modernisation to maximise long-term running-cost savings.
4 bedroom bungalow for sale in Drefach, Llanelli, Carmarthenshire, SA14 — £350,000 • 4 bed • 2 bath • 1734 ft²
5 bedroom detached house for sale in 9 Caeffynnon, Drefach, Llanelli, SA14 — £645,000 • 5 bed • 5 bath • 4380 ft²
3 bedroom semi-detached house for sale in Heol Y Meinciau, Pontyates, Llanelli, SA15 5SN, SA15 — £310,000 • 3 bed • 3 bath • 2001 ft²
5 bedroom detached house for sale in Ffairfach, Llandeilo, SA19 — £395,000 • 5 bed • 3 bath • 3219 ft²
4 bedroom detached house for sale in Heol Y Maerdy, Ffairfach, Llandeilo, SA19 — £395,000 • 4 bed • 3 bath • 3219 ft²
3 bedroom detached house for sale in Johnstown, Carmarthen, SA33 — £369,500 • 3 bed • 3 bath • 1421 ft²














































































































































































