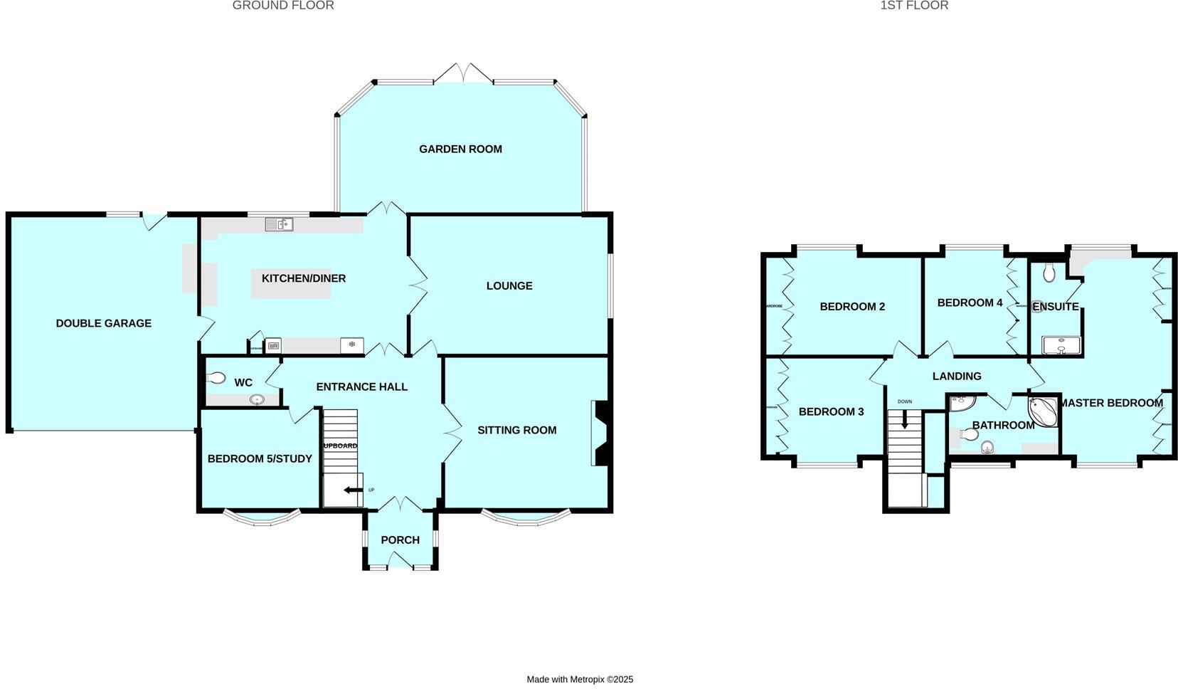
Spacious four-bedroom property with double garage, large garden and no onward chain.
Large detached house in exclusive enclave of three homes
Set within an exclusive enclave of just three houses, Foliot House is a substantial detached family home offering nearly 2,800 sq ft of bright, flexible living space. The ground floor flows well for family life and entertaining, with a large kitchen/diner and island opening to a generous garden room that leads directly onto a wide sun terrace and private lawn. A study and cloakroom add practical convenience for home working and everyday living.
Upstairs provides four double bedrooms, the master with fitted furniture and an en-suite, plus a principal bathroom with separate shower and corner bath. Outside, the property benefits from electric wrought-iron gates, a gravelled forecourt with parking for five to six cars, and an integral double garage with utility provision. The garden includes raised beds, two greenhouses and a productive vegetable plot.
Practical points to note: the house is offered freehold and chain-free, connected to mains services, and sits in a low-crime, affluent area with excellent mobile and broadband connectivity. The property is in Council Tax Band E, which reflects above-average running costs for the local area. An internal inspection is recommended to appreciate the size and layout fully.
3 bedroom semi-detached house for sale in Harwood Avenue, Tamerton Foliot, Plymouth, PL5 — £400,000 • 3 bed • 2 bath • 1324 ft²
6 bedroom detached house for sale in Tamerton Foliot, Plymouth, PL5 — £799,950 • 6 bed • 1 bath • 3089 ft²
3 bedroom end of terrace house for sale in Fraser Place, Plymouth, PL5 — £200,000 • 3 bed • 2 bath • 1063 ft²
4 bedroom detached house for sale in Tideford, Saltash, Cornwall, PL12 — £650,000 • 4 bed • 2 bath • 1503 ft²
4 bedroom detached house for sale in Station Road, Tamerton Foliot, Plymouth, Devon, PL5 4LD, PL5 — £625,000 • 4 bed • 3 bath • 1455 ft²
3 bedroom end of terrace house for sale in Downham Gardens, Tamerton Foliot, Plymouth, PL5 — £220,000 • 3 bed • 1 bath • 630 ft²


















































































































































