Characterful rural home with workshop and annexe potential for families.
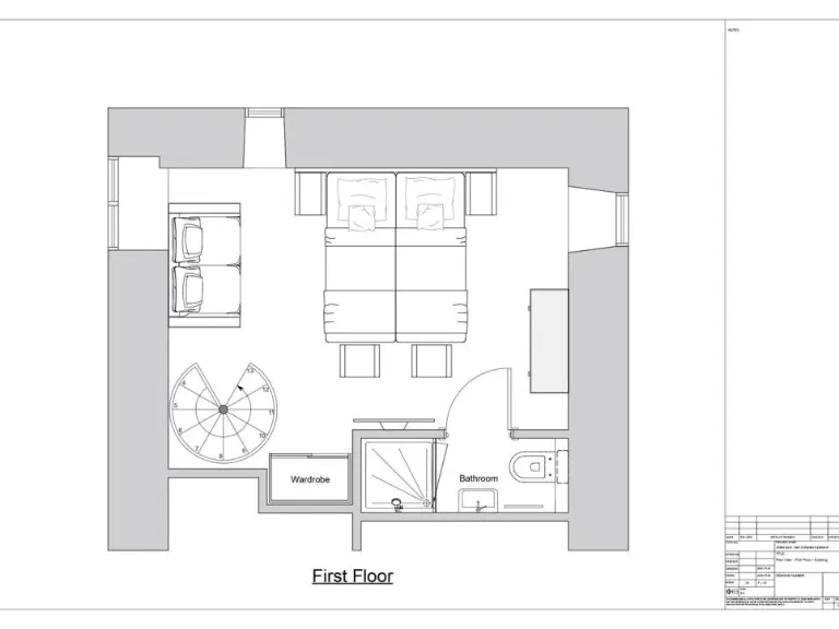
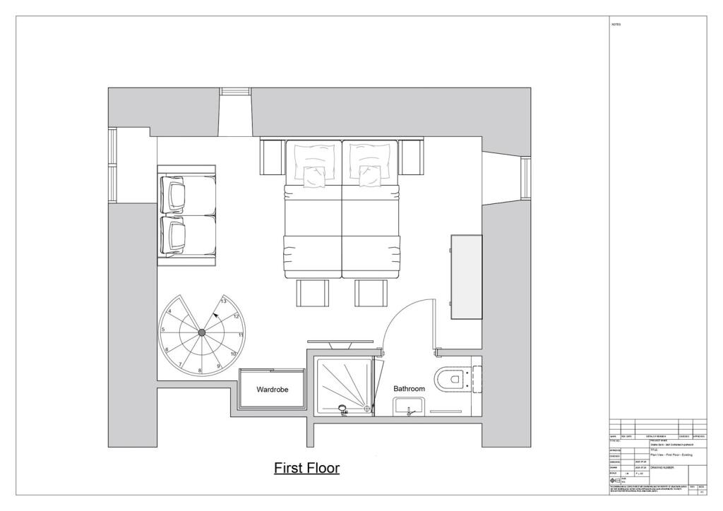
- Five bedrooms including a ground-floor bedroom/home office
- Two ensuite shower rooms plus family bathroom
- Annexe potential subject to planning consent (STP)
- Oil-fired central heating; new boiler with remaining warranty
- Private shared septic drainage; not mains sewer
- Parking for three cars plus gated additional space
- Southerly low-maintenance gardens, powered workshop on plot
- Council Tax Band E; EPC Band C
An impeccably presented five-bedroom barn conversion set in a small hamlet on the fringes of Bodmin Moor, offered with no onward chain. The stone-and-slate exterior and flagstone floors retain character while contemporary improvements — a new boiler (with remaining warranty), updated kitchen appliances and underfloor heating in the sitting room — provide modern comfort. The layout includes a versatile ground-floor bedroom/home office and an adaptable first floor with four double bedrooms, two en-suites and scope to form a self-contained annexe subject to planning.
Outside, the property sits on a decent plot with low-maintenance, southerly-facing gardens and parking for three vehicles plus a gated additional bay. There is a substantial powered workshop and log store, with garden access from the first floor. The location delivers rural tranquillity with easy access to countryside walks, Siblyback Lake and local villages; Liskeard (rail links to Plymouth and beyond) and coastal destinations lie within reasonable driving distance.
Practical points to note: heating is oil-fired with a boiler already replaced, and drainage is to a private shared septic system. Council Tax Band E and EPC rating C reflect costs and energy performance typical of this type and age of conversion. The property is best suited to those seeking characterful rural living with good space, or purchasers wanting annexe or income potential (subject to consent).
5 bedroom detached house for sale in North Petherwin, Launceston, PL15 — £825,000 • 5 bed • 2 bath • 3341 ft²
4 bedroom detached house for sale in Boyton, Launceston, Cornwall, PL15 — £550,000 • 4 bed • 2 bath • 2195 ft²
4 bedroom barn conversion for sale in Retire, Bodmin, PL30 — £625,000 • 4 bed • 2 bath • 1811 ft²
4 bedroom detached house for sale in St. Neot, Liskeard, PL14 — £700,000 • 4 bed • 2 bath • 2352 ft²
4 bedroom detached house for sale in Henwood, Liskeard, PL14 — £795,000 • 4 bed • 2 bath • 2045 ft²
4 bedroom semi-detached house for sale in Davidstow, Camelford, PL32 — £475,000 • 4 bed • 3 bath • 1236 ft²






































































































































































































