Nearly one acre with full planning for a single-storey three-bedroom home and sea views..
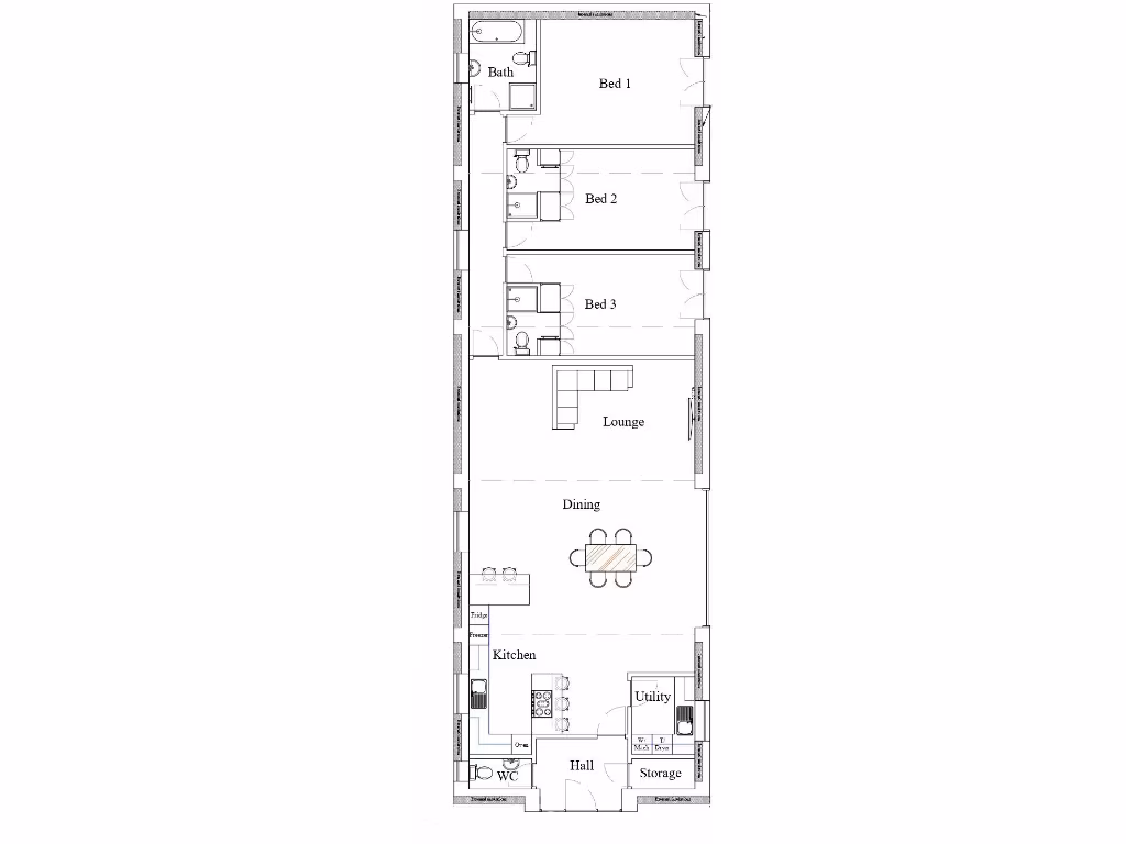
Full planning permission granted (Torridge DC, application 1/0810/2022/FUL).|Site approaching one acre with barn, paddock and concrete hardstanding.|Stunning sea views towards Lundy Island from the plot.|Proposed three-bedroom single-storey open-plan dwelling with ensuites.|Services unconfirmed: private drainage and borehole water presumed.|Very slow broadband; average mobile signal in this remoter location.|Access via private lane; rural hamlet setting may be isolated.|Buyers must verify connection costs and any potential developer charges.
This plot at The Roundhouse, Tosberry, offers a rare self-build or developer opportunity in a small coastal hamlet, with full planning permission granted for a large detached three-bedroom dwelling. Set on almost an acre of land, the site includes a single-storey agricultural building, concrete hardstanding and an adjoining paddock with attractive sea views towards Lundy Island. The planning (Torridge District Council application 1/0810/2022/FUL dated 18 April 2023) allows conversion of the existing building to a domestic dwelling; reserved matters can be progressed immediately.
The finished scheme proposes a single-storey, open-plan layout with three ensuite bedrooms, rendered elevations with stone buttress piers and natural slate roof coverings. The existing barn provides a practical starting point and reduces initial construction bulk; there is room on the plot for landscaping, parking and private outdoor space. The coastal location and panoramic outlook represent clear value drivers for a buyer seeking a bespoke home or a developer targeting regional demand.
Practical considerations: services are not confirmed — private drainage and a bore hole water supply are presumed and buyers must verify mains availability and connection costs. Broadband speeds are recorded as very slow and mobile signal is average, reflecting the remoter rural setting. The plot sits in a very low-crime, low-flood-risk area but access is via local lanes and the site is classified as a remoter agricultural community.
Overall, this is a clear opportunity for someone wanting to create a distinctive coastal residence or add value through sympathetic conversion. The full planning permission reduces planning risk, but purchasers should budget for service connections, potential groundworks and finishes to achieve the proposed modern-rustic specification.
2 bedroom detached house for sale in Welcombe, Bideford, North Devon, EX39 — £350,000 • 2 bed • 1 bath
Plot for sale in Welcombe, Bideford, Devon, EX39 — £250,000 • 1 bed • 1 bath
Land for sale in Buckland Brewer, Bideford, EX39 — £150,000 • 3 bed • 1 bath
Plot for sale in Woolsery, Bideford, Devon, EX39 — £500,000 • 1 bed • 1 bath • 3750 ft²
Land for sale in West Putford, Holsworthy, EX22 — £299,000 • 1 bed • 1 bath • 3552 ft²
Plot for sale in Pancrasweek, Holsworthy, Devon, EX22 — £250,000 • 8 bed • 1 bath














































