**Standout Features:**
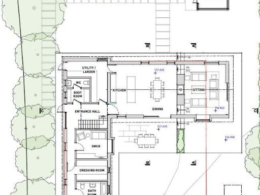
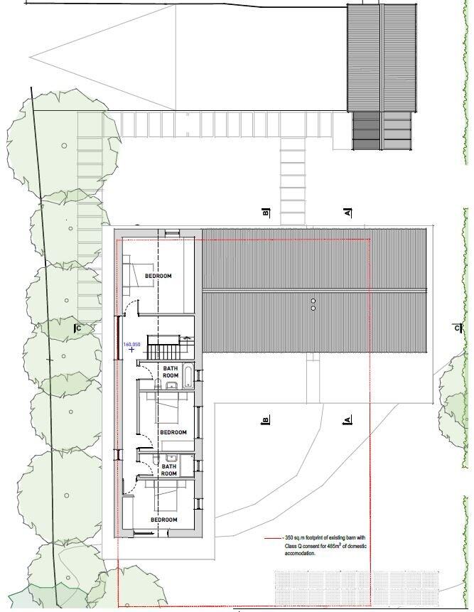
- Planning consent granted for a 4-bedroom family home (3,750 sq ft) as of March 2025.
- Expansive 17-acre grounds designed as an ecological haven, with plans for a wildlife pond and biodiversity-focused landscaping.
- Additional 15-acre field available by separate negotiation.
- Tranquil rural setting between Bideford and the coastal town of Bude, close to scenic outdoor pursuits and amenities.
**Summary:**
Discover a unique opportunity to design your dream family home at New Barn, nestled in the stunning countryside of North Devon. With planning permission secured for a spacious 3,750 sq ft dwelling, the proposed layout includes a generous entrance hall, open-plan kitchen/dining space with terraces for outdoor living, and a comfortable snug. The design boasts four well-appointed bedrooms, including a luxurious ground-floor suite.
The comprehensive 17-acre grounds provide an idyllic backdrop, with plans to create an ecological haven that encourages local wildlife to thrive. Perfect for families and nature enthusiasts alike, this property offers tranquility and connection to nature, while being conveniently located near schools and local amenities. Enjoy the privacy of vibrant landscapes bordered by mature hedgerows and direct access to a babbling stream, with ample space for vehicles and the potential for agriculture or smallholding. This extraordinary opportunity in the Devon countryside is sure to attract attention—do not miss out on making it your own.
Detached house for sale in Cann Orchard, Stratton, Bude, Cornwall, EX23 — £350,000 • 1 bed • 1 bath
Land for sale in Shebbear, EX21 — £300,000 • 1 bed • 1 bath • 1350 ft²
Plot for sale in Building Plots at Southfield, Horwood, EX39 — £250,000 • 5 bed • 1 bath • 1681 ft²
Land for sale in Yarnscombe, Barnstaple, EX31 — £375,000 • 1 bed • 1 bath • 1614 ft²
Plot for sale in Cookbury, Holsworthy, Devon, EX22 — £150,000 • 1 bed • 1 bath
4 bedroom house for sale in Buckland Brewer, Bideford, EX39 — £700,000 • 4 bed • 3 bath • 2193 ft²














































