Affordable freehold near station and strong local schools.
Freehold three-bedroom mid-terrace with garage and modest front garden
25ft enclosed rear garden, low-maintenance courtyard-style outdoor space
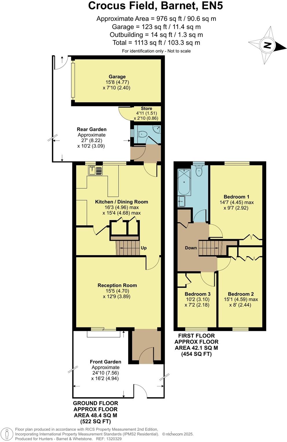
About 976 sqft; reception room with direct garden access
Close to High Barnet town centre and Northern Line station (within mile)
Ex-council property on large panel precast concrete construction
Buyers should confirm lender willingness to mortgage this construction type
Cosmetic updating likely required; scope to modernise kitchen and bathroom
Limited off-street parking; small plot and modest kerb appeal
This three-bedroom mid-terrace freehold in Barnet offers practical family living within walking distance of High Barnet town centre and the Northern Line. The home includes a reception room with garden access, a kitchen/breakfast room, ground-floor WC and a modest 25ft rear garden — straightforward spaces ready for everyday use.
The property sits on a former council estate and is constructed in large panel precast concrete. Prospective buyers should obtain written confirmation from their mortgage provider that they will lend on this construction type before making offers, as some lenders may decline. The house is double-glazed and gas-heated with a garage and limited off-street parking.
Internally the home appears to need mainly cosmetic updating rather than structural overhaul, offering scope to modernise kitchens, bathrooms and finishes to unlock value. Local amenities, good schools and excellent mobile signal make this a practical choice for commuting families seeking an affordable freehold in Barnet.
Buyers should note the system-built construction and modest outdoor space when considering suitability. For those who can secure a willing lender, the property presents a reasonably priced opportunity to personalise a three-bedroom terrace close to transport and schools.
3 bedroom end of terrace house for sale in Brent Place, Barnet, EN5 — £535,000 • 3 bed • 1 bath • 818 ft²
3 bedroom terraced house for sale in Edward Grove, New Barnet, EN4 — £550,000 • 3 bed • 1 bath • 799 ft²
3 bedroom terraced house for sale in Minotaur Drive, Barnet, EN5 — £700,000 • 3 bed • 2 bath • 1049 ft²
3 bedroom terraced house for sale in St. Wilfrids Road, Barnet, EN4 — £695,000 • 3 bed • 1 bath • 1055 ft²
3 bedroom terraced house for sale in Brownlow Close, New Barnet, EN4 — £580,000 • 3 bed • 2 bath • 1093 ft²
6 bedroom semi-detached house for sale in Bedford Avenue, High Barnet, EN5 — £1,050,000 • 6 bed • 2 bath • 3000 ft²














































































