Spacious private estate with paddock and coach house for family living.
Six double bedrooms with main suite and upper hobby room
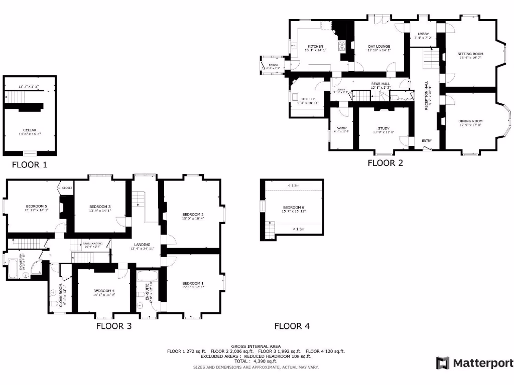
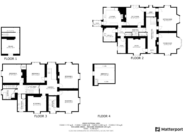
An imposing six-bedroom Victorian country house occupying about 3.54 acres of secluded, landscaped grounds on the edge of Llandrillo. The property combines generous, high‑ceilinged reception rooms, original sash windows and fireplaces with substantial ancillary accommodation including cellars and a two‑storey coach house now fitted as games room, office and bar. Two gated entrances, gravel drives and an oak-framed carport add practical convenience to the picturesque setting and paddock for animals or leisure use.
The house is arranged around an impressive central hall and large landing, with two elegant reception rooms, a day lounge with wood stove and a traditional fitted kitchen with pantry and utility. Bedroom accommodation spans three floors with a main suite and en suite, four further first‑floor bedrooms, and a sixth bedroom/hobby room on the upper floor. The coach house and outbuildings increase options for garaging, workshop, or further conversion subject to consents.
Important practical points: heating is oil‑fired via boiler and radiators; the stone walls are likely uninsulated in places; broadband speeds are very slow in this location; council tax is high (Band H). The property is remote by design—very private, low crime and excellent mobile signal—but services and amenities are country‑village level and journeys to larger towns take time.
This house will suit buyers seeking a substantial period home with generous grounds, outbuildings and equestrian or garden potential, and who accept the maintenance, running costs and rural infrastructure trade‑offs that come with a secluded countryside residence.
6 bedroom detached house for sale in Pontblyddyn, Mold, Flintshire, CH7 — £1,600,000 • 6 bed • 1 bath • 4601 ft²
4 bedroom detached house for sale in Vron Vyrnwy Hall, Llansantffraid, Powys, SY22 — £695,000 • 4 bed • 2 bath • 4694 ft²
4 bedroom detached house for sale in Llanrhaeadr, Denbigh, LL16 — £725,000 • 4 bed • 3 bath • 2505 ft²
6 bedroom detached house for sale in Pontblyddyn, Mold, Flintshire, CH7 — £1,250,000 • 6 bed • 1 bath • 4601 ft²
5 bedroom detached house for sale in Glascoed, Abergele, LL22 — £795,000 • 5 bed • 3 bath • 456 ft²
7 bedroom detached house for sale in Plas Y Bryn Hall, Llanbedr, LL45 2DX, LL45 — £1,300,000 • 7 bed • 5 bath • 4189 ft²


































































































































































































