**Standout Features:**
- 2.8 acres of development land
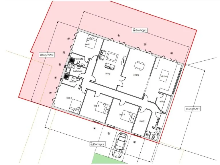
- Class Q planning permission for a 4-bedroom single-story home
- Scenic countryside views
- Peaceful edge-of-village location with excellent access to major road networks
- Sensitive to modern design and eco-friendly architecture
- Low crime rate and strong community amenities nearby
**Potential Downsides:**
- Requires connection to mains water and electricity
- Buyer responsible for drainage connections
- Existing rights of way affecting the property
Discover an exceptional opportunity to create your dream home on a sprawling 2.8-acre plot nestled at the edge of a picturesque village in Somerset. With Class Q planning permission already granted, you can transform an existing barn into a stylish four-bedroom, single-story residence, perfectly tailored to modern living. Enjoy breathtaking countryside views from your future home, accompanied by the peace and community atmosphere of rural life.
The property is easily accessible via a private drive and benefits from excellent communication links to surrounding areas, including the historic town of Sherborne within a short drive. You'll find a variety of local amenities within close reach, ensuring a family-friendly atmosphere complemented by beautiful public footpaths for exploration. Connect to fast broadband and enjoy low crime rates, making this not only a cornerstone for your family's future but also an investment in comfort and security.
However, do keep in mind that the site will require the buyer to connect to essential services including mains water and electricity, and due diligence is advised regarding existing rights of way on the property.
Properties like this, combining modern potential with serene surroundings and strong local community, are rarely available for long—don’t miss out on this unique chance to shape your future.
Plot for sale in Little Marston Road, Marston Magna, Yeovil, Somerset, BA22 — £535,000 • 1 bed • 1 bath
Land for sale in Newbury, Near Frome - buildings for conversion, BA11 — £550,000 • 1 bed • 1 bath
Plot for sale in Dinnington, TA17 — £350,000 • 1 bed • 1 bath • 4753 ft²
Land for sale in Ivythorn Lane, Nr. Street, Somerset, BA16 — £225,000 • 1 bed • 1 bath
Land for sale in South View, West Camel Road, Queen Camel, Yeovil, BA22 — £650,000 • 1 bed • 1 bath
Plot for sale in Over Compton, Sherborne, Dorset, DT9 — £495,000 • 1 bed • 1 bath • 4694 ft²






















