Refurbished second-floor retirement flat close to Camberley town centre, offered chain free..
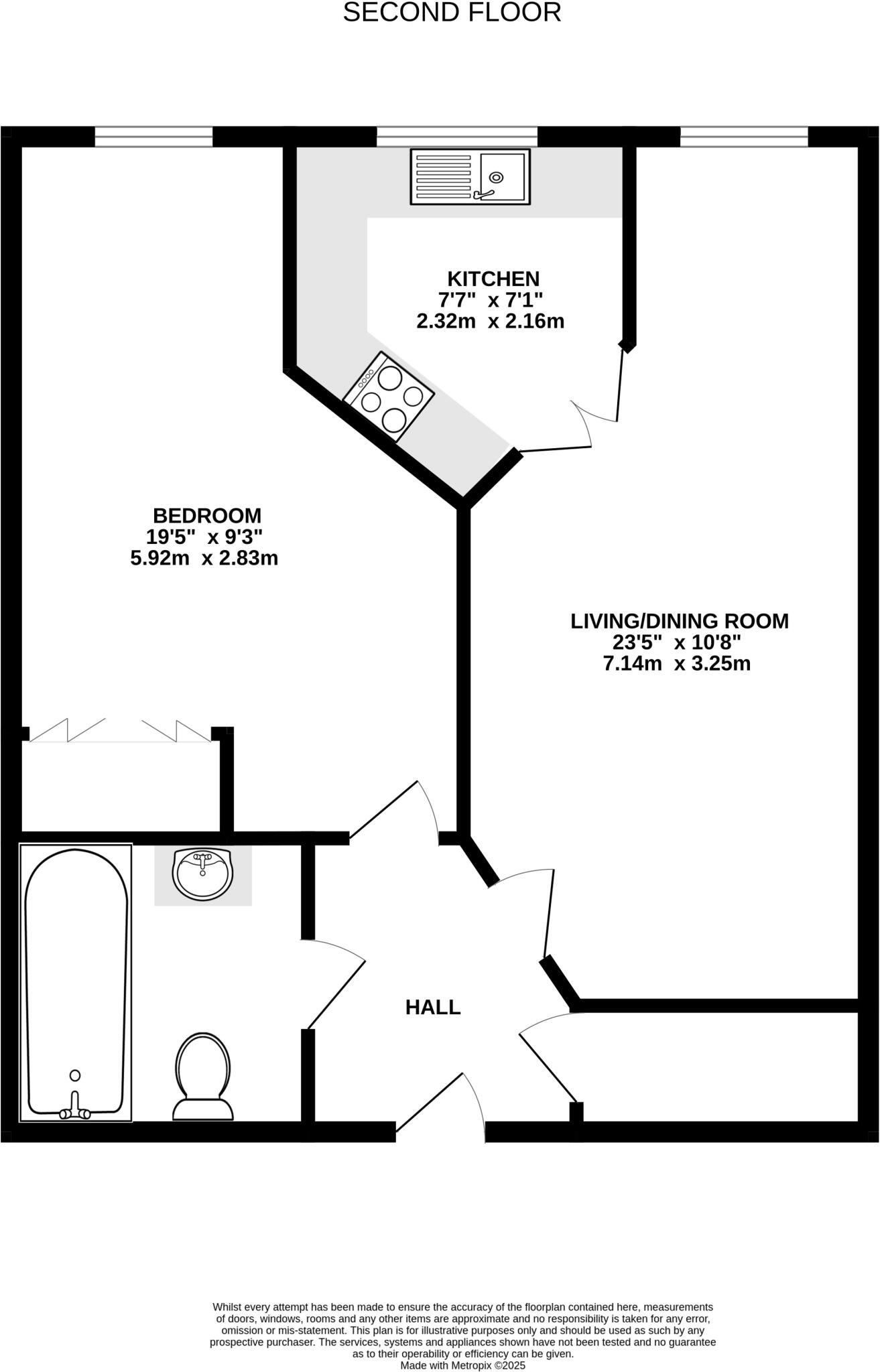
Second-floor redecorated one-bedroom retirement apartment
Refitted kitchen and bathroom; double bedroom with fitted wardrobes
Communal gardens, residents' lounge, laundry and off-street parking
Chain free with 97 years remaining on the lease
EPC C (80); fast broadband and excellent mobile signal
High service charge (£3,132.46 pa) and expensive ground rent (£1,069.08 pa)
Electric storage heaters may increase annual running costs
Located within walking distance of Camberley town centre and services
A redecorated one-bedroom retirement apartment on the second floor offers manageable, comfortable living minutes from Camberley town centre. The flat has a bright living/dining room, a double bedroom with fitted wardrobes, a refitted kitchen and a modern bathroom — all recently refreshed for immediate occupation.
Residents benefit from communal gardens, a lounge, laundry facilities, off-street parking and a 24-hour emergency service, creating a secure, sociable environment for over-60s. The apartment scores an EPC C (80) and sits in an affluent area with fast broadband and excellent mobile signal.
This is a leasehold property with 97 years remaining and is offered chain free, making it straightforward to purchase. Be aware of materially higher running costs: service charges and ground rent are significant and reviewed periodically, and heating is by electric storage heaters which can be costly in winter.
An internal viewing is recommended to appreciate the condition and layout. This apartment suits a retiree seeking a low-maintenance home close to shops, medical services and public transport, or an investor looking for a stable, age-restricted tenancy option.
1 bedroom apartment for sale in Appley Drive, Camberley, Surrey, GU15 — £99,950 • 1 bed • 1 bath • 435 ft²
1 bedroom retirement property for sale in Upper Gordon Road, Camberley, Surrey, GU15 — £84,000 • 1 bed • 1 bath • 493 ft²
1 bedroom flat for sale in Southwell Park Road, Camberley, Surrey, GU15 — £80,000 • 1 bed • 1 bath • 390 ft²
1 bedroom retirement property for sale in Camberley, Surrey, GU15 — £140,000 • 1 bed • 1 bath • 602 ft²
1 bedroom retirement property for sale in Southwell Park Road, Camberley, Surrey, GU15 — £125,000 • 1 bed • 1 bath • 416 ft²
1 bedroom flat for sale in Firwood Drive, Camberley, Surrey, GU15 — £125,000 • 1 bed • 1 bath • 472 ft²






































