Compact, low‑maintenance apartment close to Camberley town centre.
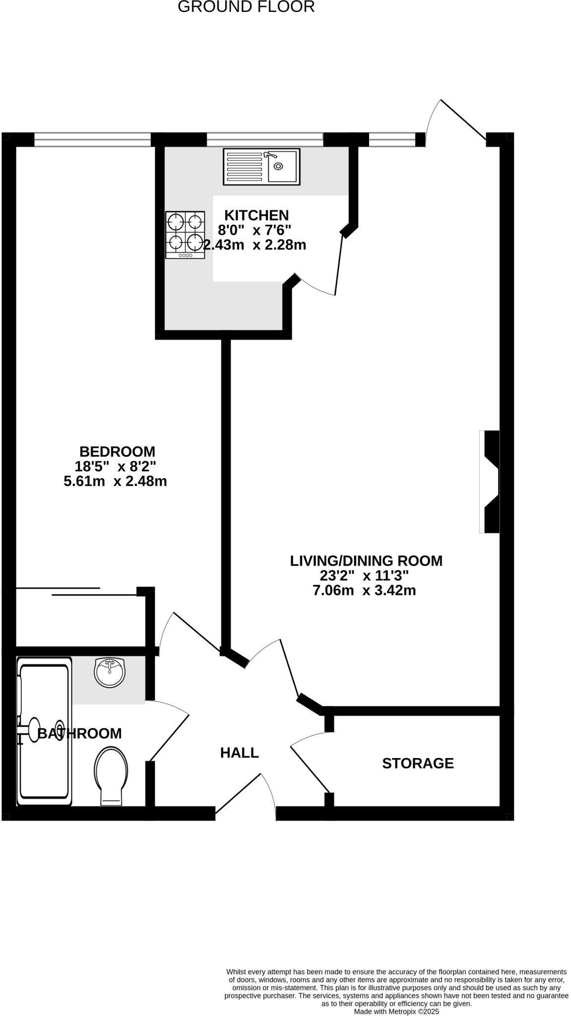
Ground-floor one double bedroom with direct garden access
A ground-floor, one-double-bedroom apartment in a modern retirement complex, offered chain free and designed for easy, low-maintenance living. The flat opens to a medium living room with direct access to well-kept communal gardens, plus a separate kitchen, bathroom and useful storage space. Lift access and off-street parking make day-to-day life straightforward.
The apartment measures about 472 sq ft — compact and manageable for downsizing or retirement living. The building is relatively new (post-2007) with double glazing and an EPC rating of C (71). The lease has about 107 years remaining, providing long-term security for buyers who prefer leasehold ownership.
Buyers should note the full running costs: an annual service charge of around £3,461 and a ground rent of £659. Heating is electric via room heaters, which can mean higher energy bills compared with gas-heated properties. The local area is very affluent overall, but recorded local crime levels are high, so check neighbourhood detail if safety is a priority.
This property suits someone seeking a town-centre retirement base with communal facilities and gardens, and who values convenience over large internal space. All lease, service charge, ground rent and council tax figures are provided as a guide and should be confirmed with a solicitor before exchange.
1 bedroom retirement property for sale in Southwell Park Road, Camberley, Surrey, GU15 — £110,000 • 1 bed • 1 bath • 416 ft²
1 bedroom flat for sale in Upper Gordon Road, Camberley, Surrey, GU15 — £100,000 • 1 bed • 1 bath • 484 ft²
1 bedroom ground floor flat for sale in Firwood Court, Camberley, GU15 — £110,000 • 1 bed • 1 bath • 614 ft²
1 bedroom flat for sale in Southwell Park Road, Camberley, Surrey, GU15 — £110,000 • 1 bed • 1 bath • 465 ft²
1 bedroom apartment for sale in Park Lane, Camberley, Surrey, GU15 — £190,000 • 1 bed • 1 bath • 427 ft²
1 bedroom retirement property for sale in Firwood Court, Southwell Park Road, Camberley, GU15 — £110,000 • 1 bed • 1 bath • 509 ft²






























