**Standout Features:**
- Recently redecorated, first-floor apartment
- Ideal for over 60s, located near town centre, cinema, and leisure centre
- No onward chain for a quick move-in
- Modern refitted shower room and re-laid carpets
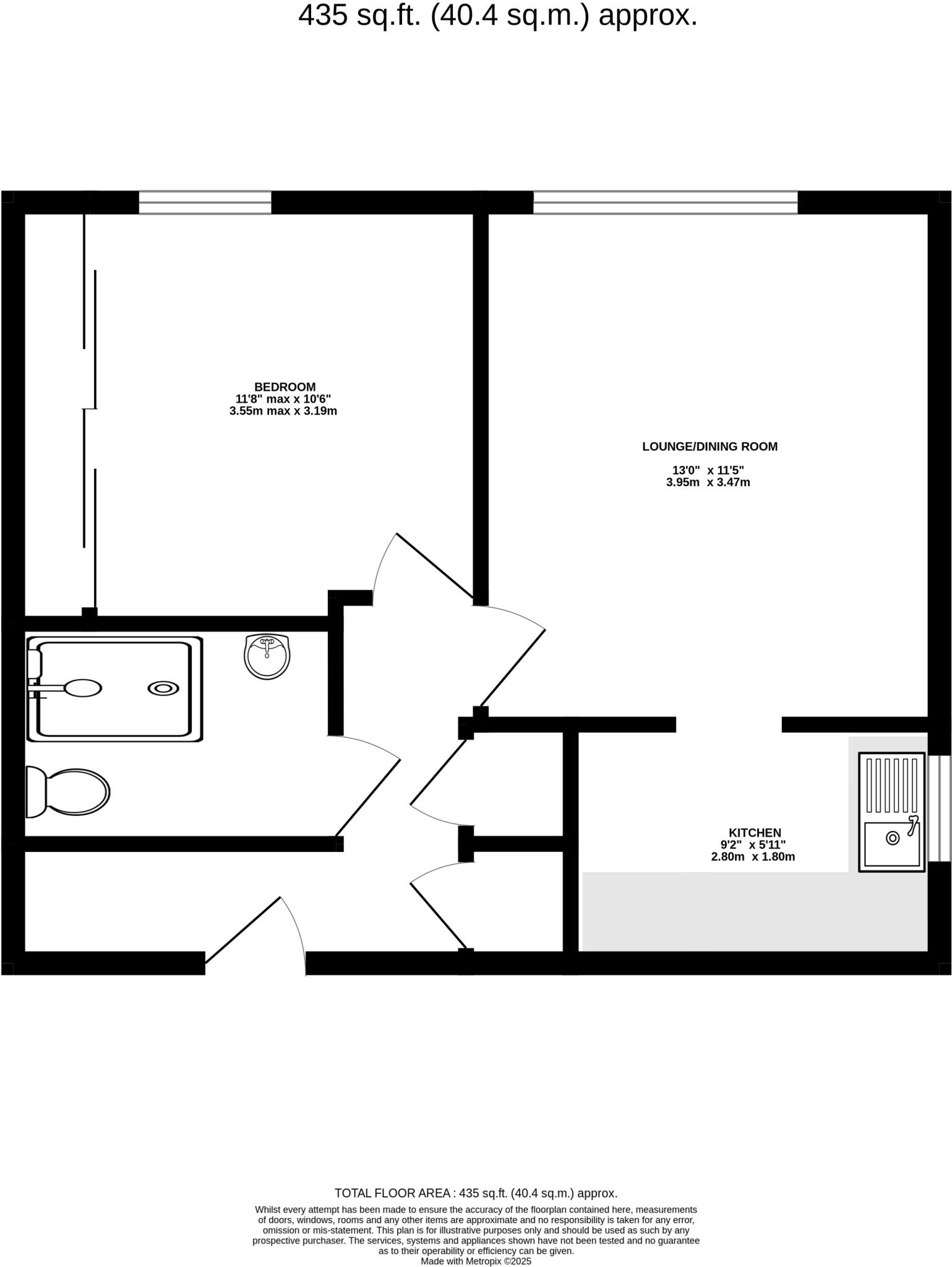
- Spacious double bedroom and separate kitchen
- Ample visitor parking and attractive communal areas with lift access
- Leasehold tenure with affordable council tax
This delightful one-bedroom apartment is perfectly designed for serene retirement living, boasting a fresh renovation that includes newly laid carpets and a modern refitted shower room. Situated on the first floor of a well-maintained building, it offers an inviting reception room and a separate kitchen, providing a functional space for both relaxation and meals. With its prime location just a short stroll to the town centre, cinema, and leisure facilities, convenience is at your doorstep.
As a chain-free property, immediate occupancy is possible, making it a compelling opportunity for first-time buyers or retirees looking for a low-maintenance retreat. While the apartment’s compact size of 435 square feet is ideal for comfortable living, potential buyers should take note of light maintenance needs due to its age. Don’t miss your chance to secure this charming apartment—ideal for enjoying a vibrant yet peaceful community atmosphere.
1 bedroom flat for sale in Upper Gordon Road, Camberley, Surrey, GU15 — £100,000 • 1 bed • 1 bath • 484 ft²
1 bedroom apartment for sale in London Road, Camberley, Surrey, GU15 — £89,950 • 1 bed • 1 bath • 399 ft²
1 bedroom retirement property for sale in Upper Gordon Road, Camberley, Surrey, GU15 — £84,000 • 1 bed • 1 bath • 493 ft²
1 bedroom retirement property for sale in Camberley, Surrey, GU15 — £140,000 • 1 bed • 1 bath • 602 ft²
1 bedroom apartment for sale in St. Benedicts Close, Aldershot, Hampshire, GU11 — £75,000 • 1 bed • 1 bath • 358 ft²
1 bedroom apartment for sale in Shelley Court, Camberley, Surrey, GU15 — £150,000 • 1 bed • 1 bath • 436 ft²


























































