OX27 7PE - Land for sale in The Fox & Hounds Inn, Ardley, Oxfordsh…

View on Property Piper

Land for sale in The Fox & Hounds Inn, Ardley, Oxfordshire, OX27

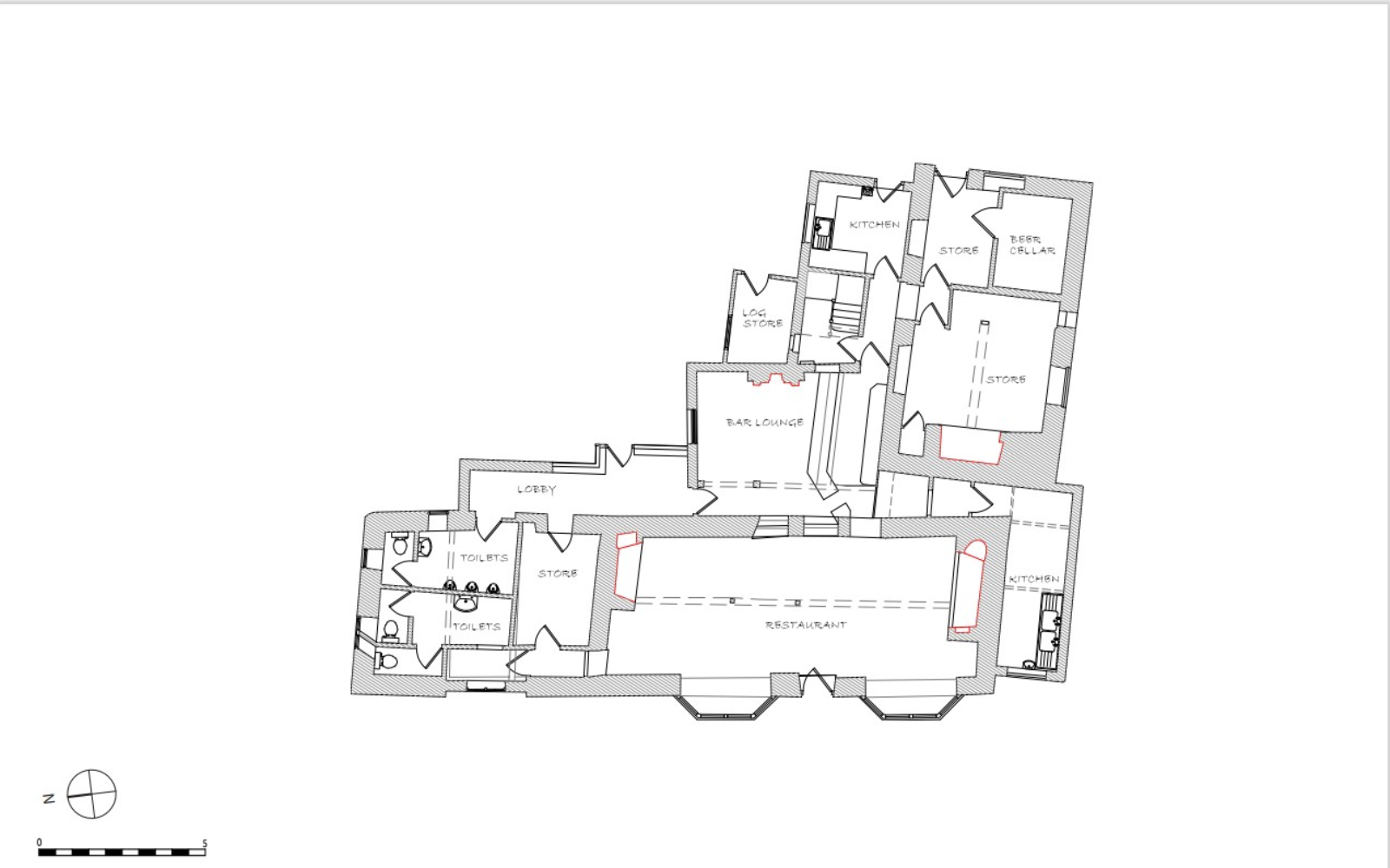
Summary - THE FOX AND HOUNDS, STATION ROAD OX27 7PE

10 bed 6 bath Land

**Standout Features:**
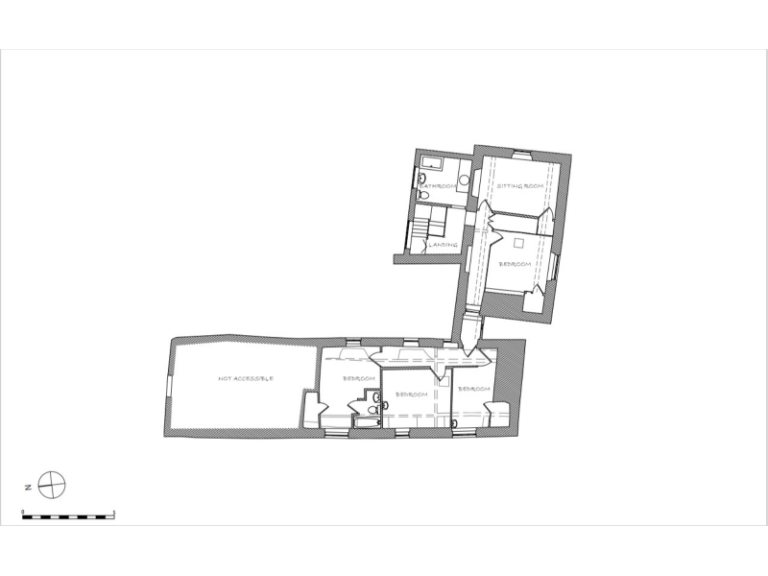
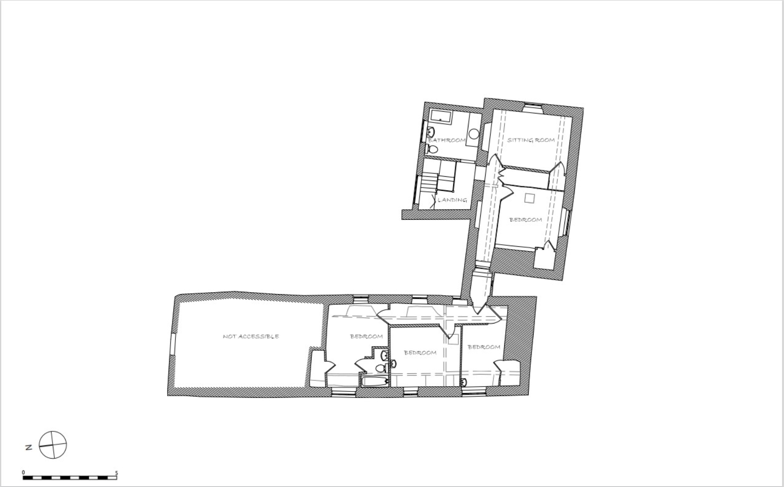
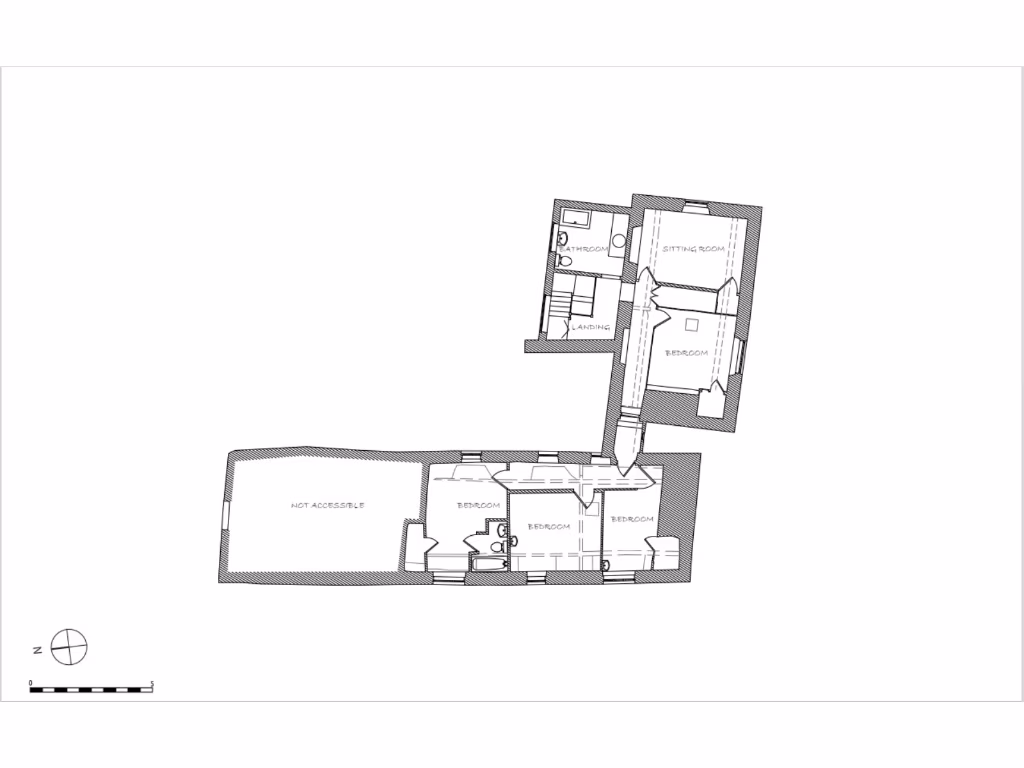
- Planning permission approved for conversion of a former public house into three residential units (Planning Permission Approved - 25/00177/F).
- Approximately 5,000 sq.ft of potential accommodation, with the option to develop up to 6 units.
- Large 0.43-acre plot with a rural farmhouse courtyard and barn.
- Located close to Bicester, Oxford, and the M40 for excellent connectivity.
- Current freehold status with relatively low council tax.

**Property Summary:**
Seize this unique opportunity to transform a charming former public house into a one-of-a-kind residence or investment property. With approved plans for the conversion into three spacious units totaling around 5,000 sq.ft, and potential for up to six units with alternate designs, the sky's the limit for your vision. Nestled on a generous 0.43-acre plot, the property includes a rustic barn and offers a peaceful rural lifestyle while providing easy access to urban amenities and road networks.

Though the property requires renovation to unlock its full potential, it rests in a friendly village setting close to good local schools, ideal for families seeking a vibrant community. While it carries a high crime rate and boasts average broadband speeds, the area is known for its rich countryside charm. Don’t miss your chance to create something special in this promising plot—schedule an in-person viewing to explore the endless possibilities waiting to be realized. Act swiftly; opportunities like this don’t last long!

Property Details

Image Descriptions

Rooms

Textual Property Features

Detected Visual Features

Nearby Schools

Nearest Bars And Restaurants

,,,,}

Nearest General Shops

,,}

Nearest Grocery shops

,,}

Nearest Supermarkets

,,}

Nearest Religious buildings

,,}

Nearest Medical buildings

,,,}

Nearest Leisure Facilities

,,,,}

Nearest Tourist attractions

,,}

Nearest Train stations

,,,,}

Nearest Bus stations and stops

,,,,}

Nearest Hotels

,,}

Tags

Local Market Stats

AirBnB Data

Similar Properties

Meta

High Res Images

Compatible Images

Low res Images

Thumbnails

Raw Images

High Res Floorplan Images

Compatible Floorplan Images

Low res Floorplan Images

FloorplanImages Thumbnail

Raw Floorplan Images