Chain-free five-bed home with south garden close to top schools and countryside.
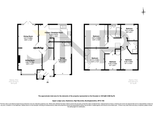
- Five bedrooms and two bathrooms, suitable for growing families or home working
- Extended kitchen/breakfast room creates a sociable ground-floor hub
- Separate dining room with French doors to a south-facing rear garden
- Driveway parking plus integral single garage
- Chain free and freehold for a quicker sale process
- Modest overall internal size (approx 988 sq ft) — rooms compact
- EPC TBC; glazing install date unknown — potential energy upgrades
- Council Tax band E — above-average running costs
This extended five-bedroom semi offers a practical family layout in a quiet Hazlemere street, close to good schools, local amenities and open countryside. The extended kitchen/breakfast room becomes the house’s social hub while two separate reception rooms — a bay-fronted living room and dining room with French doors — make everyday family life and entertaining straightforward. A south-facing rear garden, driveway parking and an integral garage add useful outdoor space and storage.
The property is chain free and freehold, which eases a speedy move for buyers who want to personalise quickly. Accommodation includes five bedrooms and two family bathrooms over two stories, giving scope for home working, guest rooms or a growing family. Broadband speeds and mobile signal are strong locally, and the area records very low crime and a very affluent profile.
Buyers should note the house is of mid‑late 20th century construction (1967–75) and the overall internal size is modest at around 988 sq ft for five bedrooms — room proportions are comfortable but not generous. The glazing install date is unknown and the EPC is listed as TBC, so heating and energy-performance updates may be needed. Council Tax band E means running costs are above average.
In short: a sensible, well-sited family home with immediate possession possible and clear potential to modernise. Suitable for families seeking proximity to good schools and countryside while accepting a modest overall footprint and likely updating work in places.
5 bedroom semi-detached house for sale in Wellfield, Hazlemere, Buckinghamshire, HP15 — £575,000 • 5 bed • 1 bath • 1316 ft²
4 bedroom semi-detached house for sale in Marys Mead, Hazlemere, Buckinghamshire, HP15 — £625,000 • 4 bed • 3 bath • 1560 ft²
3 bedroom detached house for sale in Inkerman Drive, Hazlemere, Buckinghamshire, HP15 — £525,000 • 3 bed • 1 bath • 1025 ft²
2 bedroom semi-detached house for sale in Badger Way, Hazlemere, Buckinghamshire, HP15 — £400,000 • 2 bed • 1 bath • 795 ft²
4 bedroom detached house for sale in Rushmoor Avenue, Hazlemere, High Wycombe, Buckinghamshire, HP15 — £895,000 • 4 bed • 2 bath • 2126 ft²
3 bedroom semi-detached house for sale in Rose Avenue, Hazlemere, High Wycombe, Buckinghamshire, HP15 — £599,950 • 3 bed • 2 bath • 1311 ft²






























































