**Standout Features:**
- Three-bedroom mid-terrace house
- Built in 1901 with potential for historical charm
- Requires complete refurbishment
- Freehold tenure
- Excellent mobile signal and fast broadband speeds
- Rear garden with renovation potential
- Affordable council tax band (B)
**Concerns:**
- Located in an area classified as "very deprived"
- High crime rate in the vicinity
- Unoccupied for the last 17 years
- Requires significant renovation
- Condition includes damp and neglect in the backyard
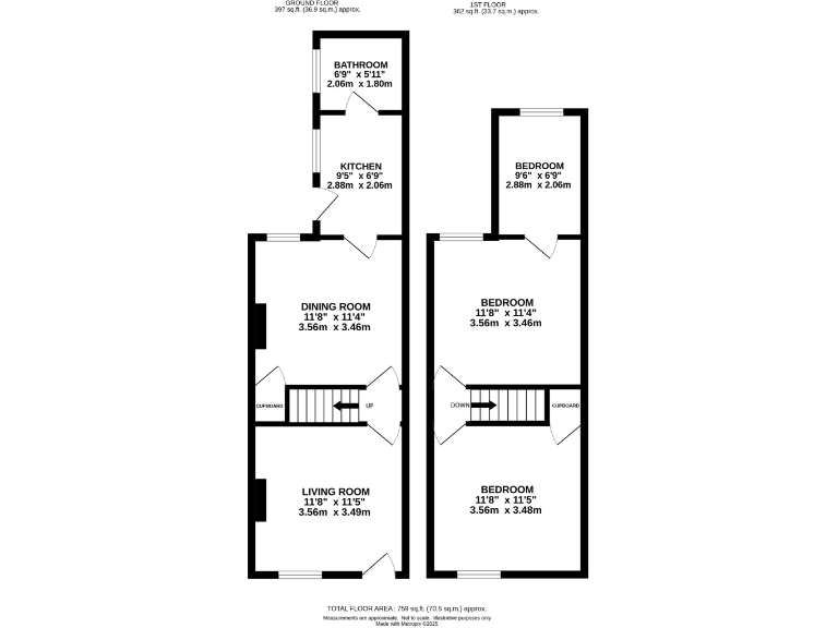
This Victorian mid-terrace house offers a rare opportunity for builders and investors looking for a project, with a guide price between £90,000 and £110,000. Situated less than two miles from the city center (postcode: NR3 2JQ), this property includes three bedrooms, a sitting room, dining room, kitchen, and shower room, all awaiting a transformative touch. The property has been in the same family since 1909 and has not been lived in for 17 years, presenting a blank canvas for renovations.
With fast broadband and a strong mobile signal, this home is not just a renovation prospect but also an investment in a location ripe with potential—despite some concerns regarding its neighborhood and condition. The rear garden has the makings for a lovely outdoor space, albeit requiring care. Open viewings are available before the auction on June 18, 2025, making it crucial for interested parties to act swiftly. Don’t miss this chance to reclaim a piece of history and create a modern dream home or a lucrative rental property!
2 bedroom terraced house for sale in 42 Heath Road, Norwich, Norfolk NR3 1JW, NR3 — £110,000 • 2 bed • 1 bath • 606 ft²
3 bedroom terraced house for sale in 17 Buxton Road, Norwich, Norfolk NR3 3HH, NR3 — £225,000 • 3 bed • 1 bath • 946 ft²
3 bedroom terraced house for sale in 23 Birkbeck Road, Norwich, Norfolk, NR1 2JZ, NR1 — £90,000 • 3 bed • 1 bath • 745 ft²
3 bedroom terraced house for sale in 26 Esdelle Street, Norwich, Norfolk NR3 3BN, NR3 — £130,000 • 3 bed • 1 bath • 701 ft²
3 bedroom terraced house for sale in Cardiff Road, Norwich, Norfolk, NR2 — £175,000 • 3 bed • 1 bath • 753 ft²
5 bedroom block of apartments for sale in 114 Eade Road, Norwich, Norfolk NR3 3EJ, NR3 — £200,000 • 5 bed • 1 bath • 958 ft²


















































