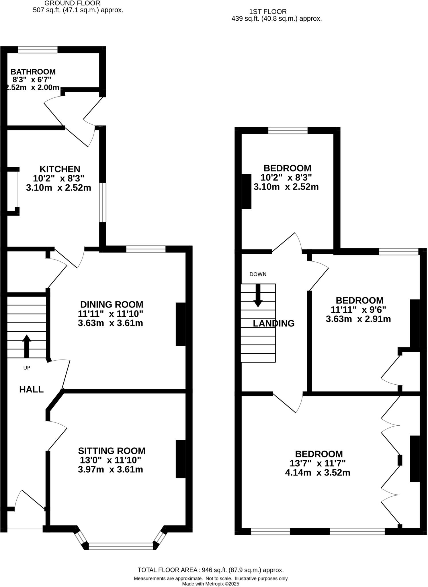
**Key Features:**
- Edwardian terraced house requiring modernization
- 3 bedrooms, 1 bathroom, and 2 reception rooms
- Pleasant but overgrown rear garden with a garden shed
- On-road parking available
- Located within walking distance to local shops and amenities
- Vacant and available for auction on June 18th, 2025, with a guide price of £225,000
- Freehold tenure with council tax band C
This charming Edwardian terraced house presents an excellent opportunity for first-time buyers or investors seeking a project to add value. Offered at an attractive guide price of £225,000, this home features three spacious bedrooms, two reception rooms, and a functional kitchen and bathroom—ideal for reimagining to suit modern living.
While the property is in need of renovation, its solid brick construction and classic architecture provide a fantastic foundation for enhancements. The secluded, albeit overgrown garden offers potential for outdoor enjoyment with some landscaping, and on-road parking adds convenience. Nestled in a vibrant area, you’re within easy reach of local shops, recreation facilities, and just a mile from the city center.
With excellent mobile and fast broadband signals, and easy access to schools with strong ratings, this property is perfect for families and young professionals alike. Don’t miss this unique opportunity to transform this fixer-upper into your dream home—it will be sold at auction, providing a timely chance to secure this investment before the bidding starts!
3 bedroom terraced house for sale in 41 Junction Road, Norwich, Norfolk NR3 2JQ, NR3 — £90,000 • 3 bed • 1 bath • 759 ft²
2 bedroom terraced house for sale in 42 Heath Road, Norwich, Norfolk NR3 1JW, NR3 — £110,000 • 2 bed • 1 bath • 606 ft²
3 bedroom terraced house for sale in 26 Esdelle Street, Norwich, Norfolk NR3 3BN, NR3 — £130,000 • 3 bed • 1 bath • 701 ft²
5 bedroom block of apartments for sale in 114 Eade Road, Norwich, Norfolk NR3 3EJ, NR3 — £200,000 • 5 bed • 1 bath • 958 ft²
3 bedroom semi-detached house for sale in 74 Dereham Road, New Costessey, Norwich, Norfolk NR5 0SY, NR5 — £225,000 • 3 bed • 1 bath • 1184 ft²
3 bedroom terraced house for sale in 18 Bates Green, Norwich, Norfolk NR5 8YN, NR5 — £150,000 • 3 bed • 1 bath • 1079 ft²










































































