**Key Features:**
- Recently renovated three-bedroom Victorian terrace
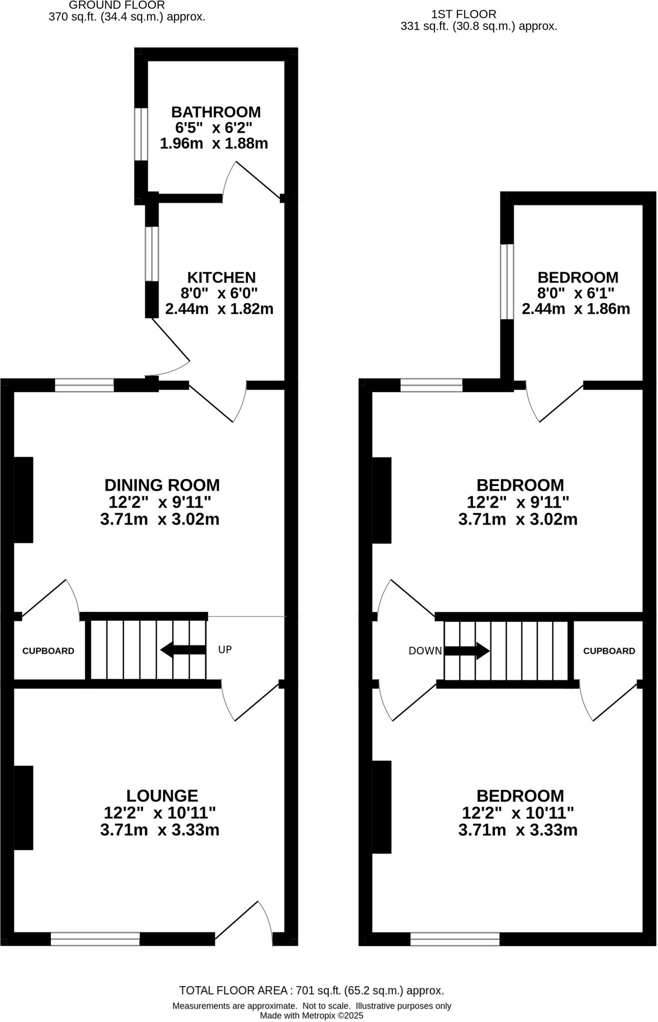
- Open-plan kitchen dining area and ground floor bathroom
- Small, enclosed south-facing garden with side access
- Close to Norwich city centre and local amenities
- Auction guide price: £130,000 to £150,000 with bidding on 10th September 2025
- Council Tax Band A, very cheap
- Mostly UPVC double glazed windows
This beautifully renovated three-bedroom Victorian terrace offers a perfect blend of charm and modern convenience, ideal for first-time buyers and investors alike. Boasting an open-plan kitchen-dining area and a cozy sitting room, this property presents a welcoming space for family gatherings and entertaining. The ground floor also features a well-appointed bathroom, while upstairs you’ll find two spacious double bedrooms and a third bedroom accessible from bedroom two—perfect for young children or as a guest room.
The south-facing garden is a quaint outdoor retreat, albeit modest in size, offering a lovely spot for relaxation with potential for garden enhancements. Enjoy proximity to Norwich's vibrant city life with amenities just a short walk away, as well as a variety of good local schools. Though the area has a high crime rate and is noted for higher deprivation levels, the advantages of this attractive home and its affordability offer significant appeal.
Don't miss this opportunity to secure a home in a cosmopolitan neighbourhood with substantial rental potential, especially considering the excellent mobile and fast broadband services. Register for the auction and viewings now—this gem won’t last long!































































































