**Standout Features:**
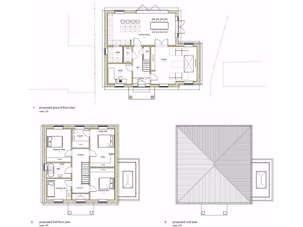
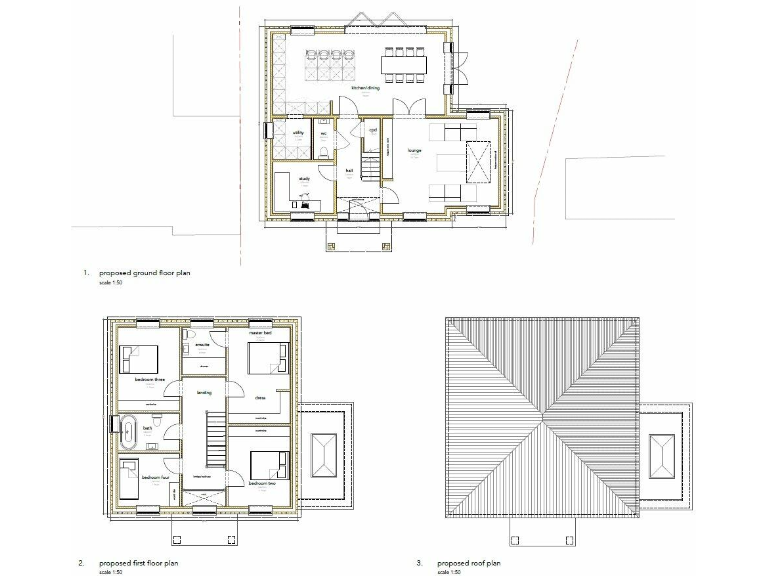
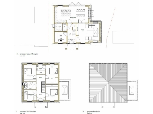
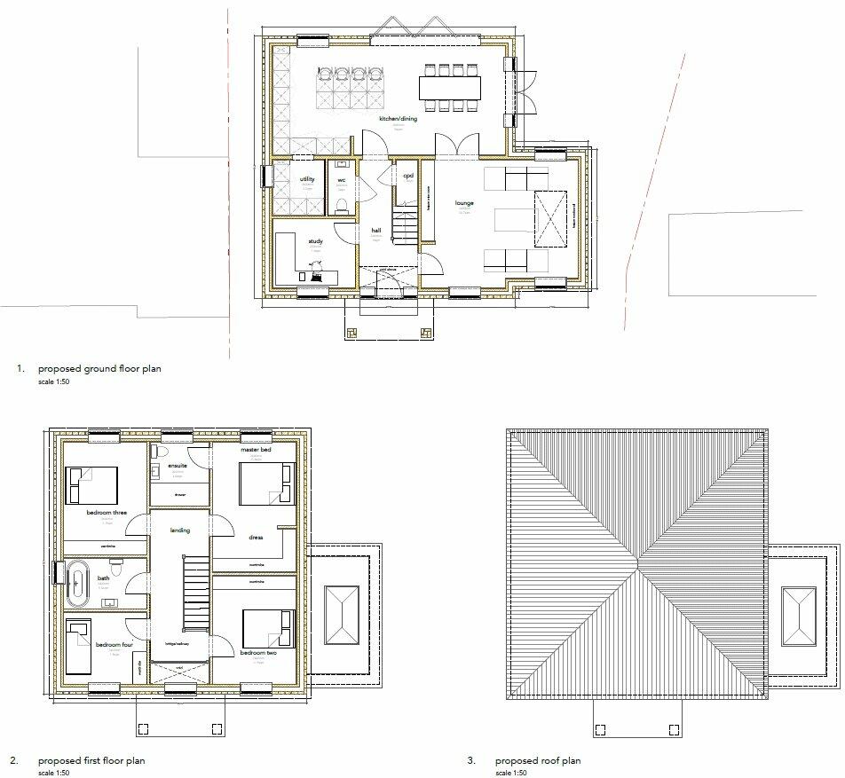
- Large land plot with approved planning for a modern 4-bedroom detached family home
- Total area of 1,625 square feet
- Planning permission expected within three months
- Excellent mobile signal and fast broadband speeds
- Low crime rate and affluent area classification
- Convenient access to local schools with Good Ofsted ratings
**Summary:**
Seize the opportunity to build your dream home in a sought-after area with this sizeable land parcel priced competitively at £230,000. Awaiting full planning approval, the proposed 4-bedroom residence will offer modern living across 1,625 square feet, complete with a spacious garden and garage. With a range of well-rated schools nearby and a low crime rate, this property is perfect for families seeking a secure and engaging community.
Additionally, the location benefits from excellent mobile connectivity and fast broadband, catering to contemporary needs while remaining in an affluent neighborhood. Act swiftly—properties with such promising future development potential in this desirable locale are rare. Embrace the chance to design your own space just the way you envision it, adding personal touches to every detail of your future home.
Land for sale in Land adjacent to, 17 Broad Street Green Road, Heybridge, Essex, CM9 4BE, CM9 — £190,000 • 1 bed • 1 bath • 4044 ft²
Land for sale in Mope Lane, Wickham Bishops, Witham, CM8 — £1,200,000 • 1 bed • 1 bath
Land for sale in Petty Croft, Chelmsford, Essex, CM1 — £5,000 • 1 bed • 1 bath
Plot for sale in Little Braxted, CM8 — £800,000 • 1 bed • 1 bath • 1399 ft²
Plot for sale in Coombe Road, Southminster, CM0 — £175,000 • 3 bed • 2 bath • 1500 ft²
Plot for sale in Seamer Road, Southminster, CM0 — £375,000 • 4 bed • 3 bath • 2400 ft²














