**Standout Features:**
- Freehold land with full planning permission for a 4-bedroom detached family home
- Expansive plot size of 4,044 square feet, ideal for future development
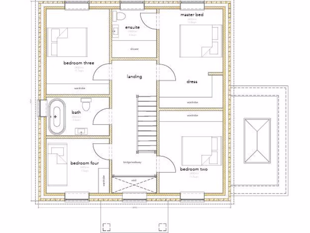
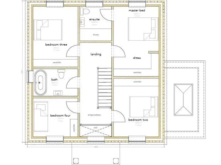
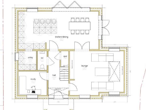
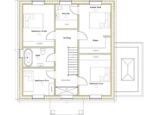
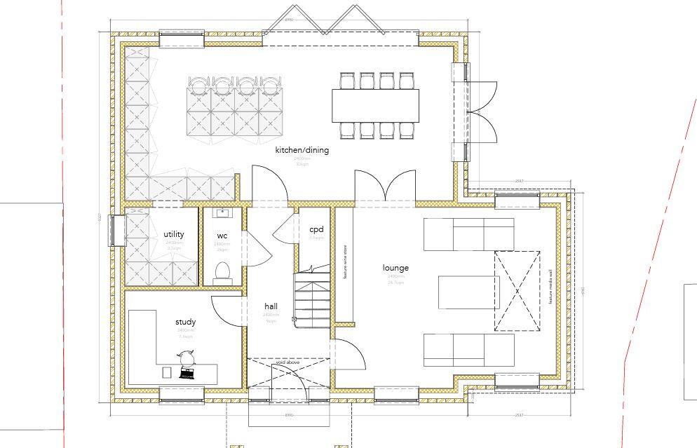
- Approved design includes an open-plan kitchen/dining area, lounge, study, and en-suite master suite
- Located in a popular semi-rural setting with excellent mobile and fast broadband service
- Extremely low crime rates in a community with aspiring urban households
**Concise Summary:**
This is a fantastic opportunity for investors or families looking to build their dream home in a desirable semi-rural location. This freehold plot of 4,044 square feet comes with approved planning permission from Maldon District Council for a stylish 4-bedroom detached dwelling, featuring modern layouts and classic Georgian-inspired architecture. Enclosed by panel fencing, the site boasts a garage and parking, making it perfect for a growing family.
Families will appreciate the selection of nearby schools with 'Good' Ofsted ratings, ensuring a quality education for your children. The area offers valuable amenities such as convenient bus routes and local facilities, with a strong community atmosphere characterized by low crime rates.
Don't miss this unique opportunity to secure a prime development site that combines comfort with an advantageous location, available for public auction on Thursday, 12th June 2025. Act quickly, as properties with this kind of potential are rare and won’t last long on the market!
Land for sale in Broad Street Green, Heybridge, Maldon, Essex, CM9 — £230,000 • 1 bed • 1 bath • 1625 ft²
Land for sale in Land on the east side of High Bushes, Spring Elms Lane, Little Baddow, Essex, CM3 4SG, CM3 — £100,000 • 1 bed • 1 bath
4 bedroom detached house for sale in Hillcroft, East Hanningfield Road, Sandon, Chelmsford, Essex, CM2 7TQ, CM2 — £550,000 • 4 bed • 1 bath
Land for sale in Land At London Road, London Road, Maldon, CM9 6HW, CM9 — POA • 1 bed • 1 bath
Residential development for sale in Residential Development Site, Hall Road, Great Totham CM9 8NN, CM9 — £4,000,000 • 1 bed • 1 bath • 7397 ft²
Land for sale in Mope Lane, Wickham Bishops, Witham, CM8 — £1,200,000 • 1 bed • 1 bath


























