Contemporary family home with open-plan living and garage.
10-year NHBC warranty offers long-term build cover
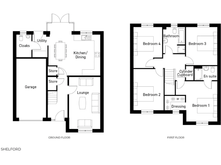
A contemporary four-bedroom detached new build on the edge of Derbyshire countryside, The Shelford offers family-focused living with modern conveniences. The ground floor centres on a bright open-plan kitchen-diner with integrated Bosch appliances and French doors onto a small garden, plus a separate lounge, utility room and integrated garage for practical everyday life. The master bedroom includes a walk-in dressing area and private en-suite; three further double bedrooms provide flexible family space.
This home comes with a 10-year NHBC warranty and is available chain-free, with developer incentives such as a part-exchange option and a deposit boost on selected plots. Interiors are specified with grey cabinetry, wood-effect flooring, and LED lighting for a contemporary finish suitable for buyers wanting move-in-ready accommodation before Christmas.
Be candid about location and plot: the property sits in a small plot within a development on the edge of Mastin Moor. The local area is classified as very deprived with above-average crime rates, so buyers prioritising tranquillity or low-crime neighbourhoods should factor that in. The settlement offers good transport links and fast broadband, but some local services and wider-area indicators reflect an industrious, transitioning community.
Overall this is a practical, modern family home with warranty-backed reassurance and sensible running-space. It will suit buyers wanting new-build convenience, easy commuting, and modern internal layouts — while those seeking large gardens, rural quiet, or the lowest-crime locale may want to compare alternatives.
4 bedroom detached house for sale in Bolsover Road,
Mastin Moor,
S43 3FF, S43 — £369,000 • 4 bed • 1 bath • 963 ft²
4 bedroom detached house for sale in Bolsover Road,
Mastin Moor,
S43 3FF, S43 — £394,500 • 4 bed • 1 bath • 1097 ft²
5 bedroom detached house for sale in Bolsover Road,
Mastin Moor,
S43 3FF, S43 — £549,000 • 5 bed • 1 bath • 1637 ft²
4 bedroom detached house for sale in Bolsover Road,
Mastin Moor,
S43 3FF, S43 — £335,000 • 4 bed • 1 bath • 913 ft²
4 bedroom detached house for sale in Bolsover Road,
Mastin Moor,
S43 3FF, S43 — £375,000 • 4 bed • 1 bath • 1139 ft²
4 bedroom detached house for sale in Harworth and Bircotes
DN11 8AB, DN11 — £376,000 • 4 bed • 1 bath • 1118 ft²






































