High-spec family layout with garage and part-exchange available for a quicker move.
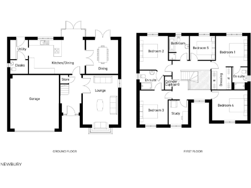
Five bedrooms, master with dressing area and private en-suite
A bright, newly built five-bedroom detached family home offering contemporary living on the edge of Derbyshire countryside. The Newbury features a high-spec kitchen with French doors to the rear garden, a spacious lounge, utility room, and an integral double garage — practical for everyday family life and storage.
Upstairs the master suite includes a dressing area and private en-suite, while bedrooms two and three share a Jack-and-Jill en-suite. Two further double bedrooms plus a flexible single room/study provide adaptable space for children, guests, or a home office. The family bathroom is fitted with both a bath and separate shower.
Practical strengths include freehold tenure, fast broadband, and part-exchange availability to simplify moving. The development includes extensive green space with walking trails and play areas, and transport links into Chesterfield and beyond are within easy reach.
Buyers should note some local drawbacks: the immediate area records above-average crime and sits within a very deprived ward, and the plot size is small compared with typical five-bedroom houses. Mobile signal is average. These factors should be weighed against the new-build specification and flexible internal layout when considering this home.
4 bedroom detached house for sale in Bolsover Road,
Mastin Moor,
S43 3FF, S43 — £369,000 • 4 bed • 1 bath • 963 ft²
4 bedroom detached house for sale in Bolsover Road,
Mastin Moor,
S43 3FF, S43 — £335,000 • 4 bed • 1 bath • 913 ft²
4 bedroom detached house for sale in Bolsover Road,
Mastin Moor,
S43 3FF, S43 — £410,000 • 4 bed • 1 bath • 953 ft²
4 bedroom detached house for sale in Bolsover Road,
Mastin Moor,
S43 3FF, S43 — £375,000 • 4 bed • 1 bath • 1139 ft²
4 bedroom detached house for sale in Bolsover Road,
Mastin Moor,
S43 3FF, S43 — £445,000 • 4 bed • 1 bath • 1283 ft²
5 bedroom detached house for sale in Inkersall Road,
Staveley,
Chesterfield,
S43 3YJ, S43 — £569,995 • 5 bed • 1 bath • 1589 ft²


































