Three double bedrooms and off-street parking on a popular Catford road.
Chain free Victorian terrace with period features
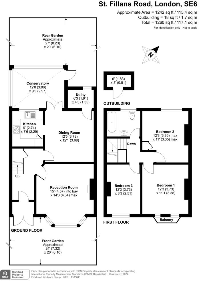
A spacious three-double-bedroom Victorian terrace on a popular Catford road, offered chain free and ready for a family to move straight in. The ground floor gives generous living space with a bay-fronted reception, an open-plan kitchen-diner and a conservatory overlooking the garden, while the first floor hosts three large double bedrooms and a single family bathroom. At about 1,260 sq ft the house feels larger than typical terraces and includes off-street parking via a block-paved front drive.
The property retains period character — high ceilings, bay window and decorative mouldings — but some practical updates will improve comfort. The walls are solid brick with no assumed cavity insulation, and the double glazing dates from before 2002; buyers should factor in potential heating and insulation upgrades to reduce running costs. Heating is mains gas with boiler and radiators in place.
Location offers clear benefits for families: several well-rated primary and secondary schools are within reach, plus fast broadband, excellent mobile signal and a wide range of local amenities and transport links. The wider neighbourhood is inner-city cosmopolitan with established tech-worker demographics, but note local area indicators show higher deprivation and above-average crime statistics, which some buyers will want to consider.
As a freehold, chain-free period home with immediate scope for improvement and extension potential (subject to consents), this house will suit a family seeking space and character in Catford or buyers wanting renovation upside in a well-connected part of London.
3 bedroom terraced house for sale in Stanstead Road, London, SE6 — £550,000 • 3 bed • 1 bath • 1227 ft²
4 bedroom terraced house for sale in Bradgate Road, London, SE6 — £575,000 • 4 bed • 1 bath • 964 ft²
2 bedroom terraced house for sale in Barmeston Road, London, SE6 — £425,000 • 2 bed • 1 bath • 679 ft²
5 bedroom terraced house for sale in Broadfield Road, London, SE6 — £850,000 • 5 bed • 2 bath • 1590 ft²
3 bedroom terraced house for sale in Doggett Road, London, SE6 — £575,000 • 3 bed • 2 bath • 1163 ft²
2 bedroom terraced house for sale in Nelgarde Road, London, SE6 — £525,000 • 2 bed • 1 bath • 855 ft²










































































































































