Chain-free home with garden and quick access to Catford stations.
Freehold Victorian mid-terrace with four bedrooms
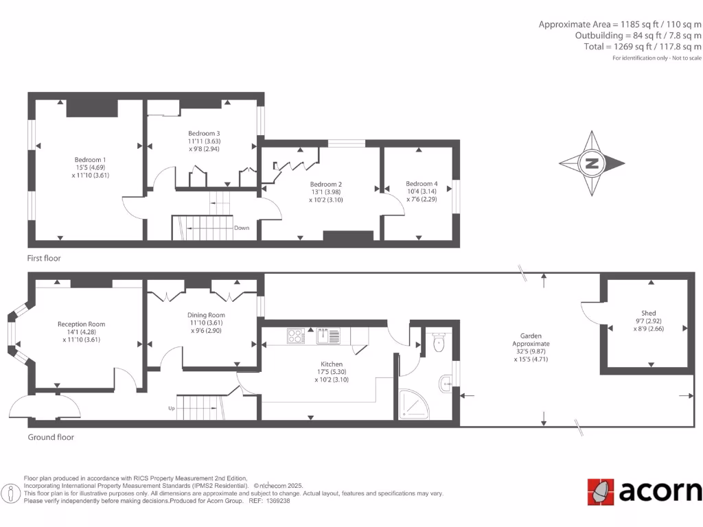
A Victorian mid-terrace with period character, this freehold four-bedroom house sits on a highly sought road close to Catford High Street. The layout includes two reception rooms, a kitchen-diner and a rear garden, and the property is offered chain free — a straightforward purchase for families wanting quick occupation.
Internally the house retains original features such as a bay window, decorative plasterwork and a fireplace, but the finish is dated and will benefit from modernisation. At about 964 sq ft with just one bathroom, the accommodation feels compact for four bedrooms; buyers should expect renovation to improve layout, storage and energy performance (walls are solid brick with no known insulation).
Practical positives include a good-size rear garden, fast broadband and excellent mobile signal, plus excellent local transport (around 0.2 miles to Catford rail stations). Nearby state and independent schools rated Good or Outstanding make this location suitable for families.
Material drawbacks to note: the area is classified as deprived with above-average local crime statistics, the property has a single bathroom for four bedrooms, and some building work and insulation upgrades are likely. Buyers seeking a move-in-perfect home should expect cosmetic and possible structural improvements.
4 bedroom house for sale in Lutwyche Road, Catford, SE6 — £800,000 • 4 bed • 2 bath • 1252 ft²
3 bedroom terraced house for sale in Doggett Road, London, SE6 — £575,000 • 3 bed • 2 bath • 1163 ft²
2 bedroom terraced house for sale in Barmeston Road, London, SE6 — £425,000 • 2 bed • 1 bath • 679 ft²
2 bedroom terraced house for sale in Nelgarde Road, London, SE6 — £525,000 • 2 bed • 1 bath • 855 ft²
4 bedroom terraced house for sale in Bradgate Road, Catford, SE6 — £650,000 • 4 bed • 1 bath • 1361 ft²
2 bedroom terraced house for sale in Silvermere Road, London, SE6 — £500,000 • 2 bed • 2 bath • 728 ft²














































































