Well-located period home with good transport links and outdoor space.
Chain free Victorian mid-terrace, circa 855 sq ft
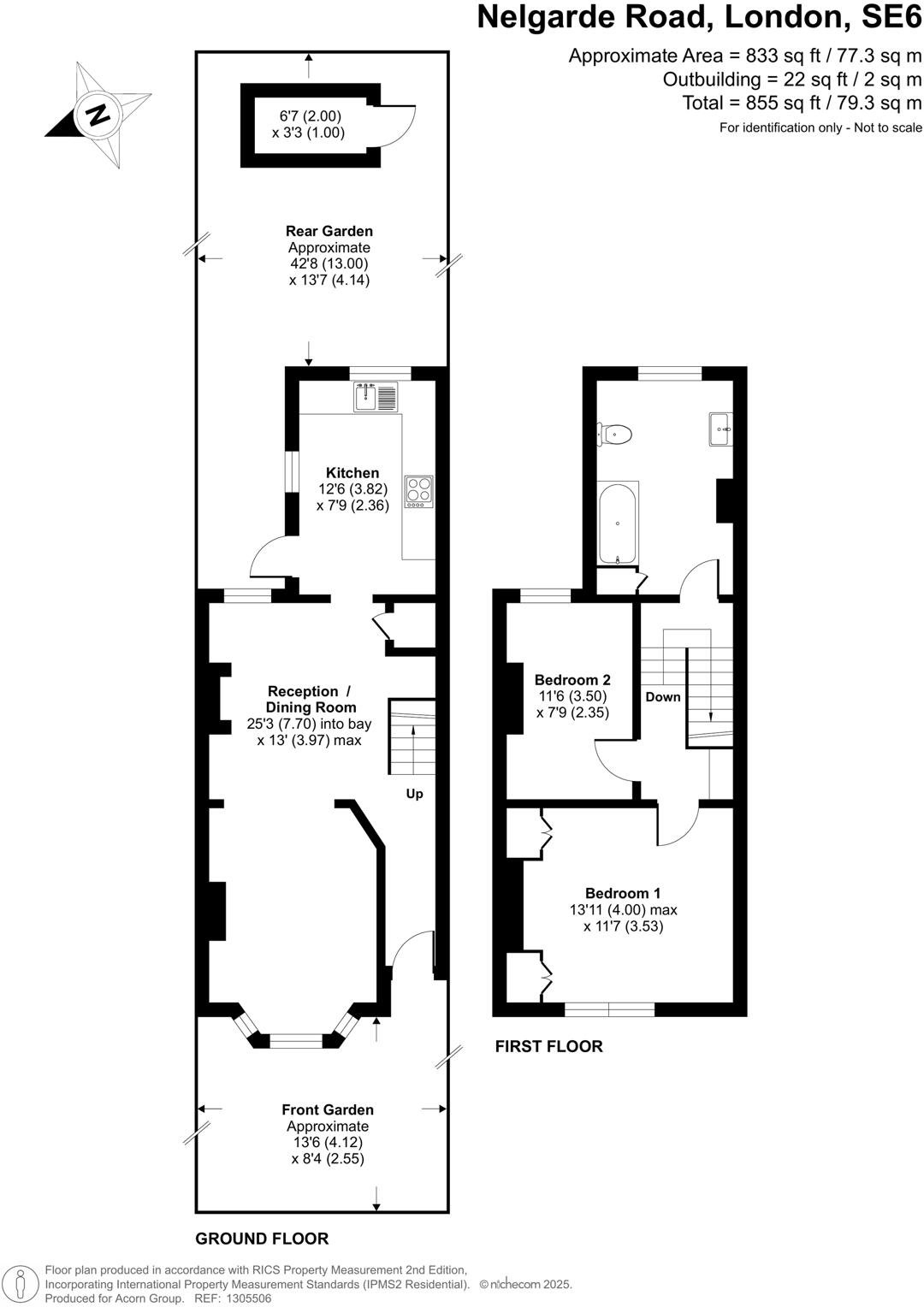
This Victorian mid-terrace offers period charm and practical living in SE6, arranged over two floors with about 855 sq ft of space. The ground floor features a through lounge with a bay window and a modern fitted kitchen; upstairs are two double bedrooms and a well-appointed bathroom. The rear garden combines lawn and patio for low-maintenance outdoor space.
The house is chain free and suits a first-time buyer or couple seeking an affordable entry into a popular London suburb with fast broadband and excellent mobile signal. It is within a short walk of local rail stations and a busy high street with shops, cafes and everyday amenities, and several well-rated schools are nearby.
Be clear on the likely work and context: the property needs general modernisation in places and was built 1900–1929 with solid brick walls that likely lack insulation. The local area has very high crime rates and is classified as very deprived, which may affect resale and insurance considerations. Flooding risk is low and tenure is freehold.
3 bedroom terraced house for sale in Doggett Road, London, SE6 — £575,000 • 3 bed • 2 bath • 1163 ft²
2 bedroom terraced house for sale in Knapmill Road, London, SE6 — £400,000 • 2 bed • 1 bath • 752 ft²
3 bedroom terraced house for sale in Engleheart Road, Catford, London, SE6 — £600,000 • 3 bed • 1 bath • 1249 ft²
5 bedroom terraced house for sale in Broadfield Road, London, SE6 — £850,000 • 5 bed • 2 bath • 1590 ft²
4 bedroom terraced house for sale in Sandrock Road, London, SE13 — £900,000 • 4 bed • 2 bath • 1305 ft²
2 bedroom terraced house for sale in Homesdale Road, Bromley, BR2 — £475,000 • 2 bed • 1 bath • 953 ft²






































































