**Standout Features:**
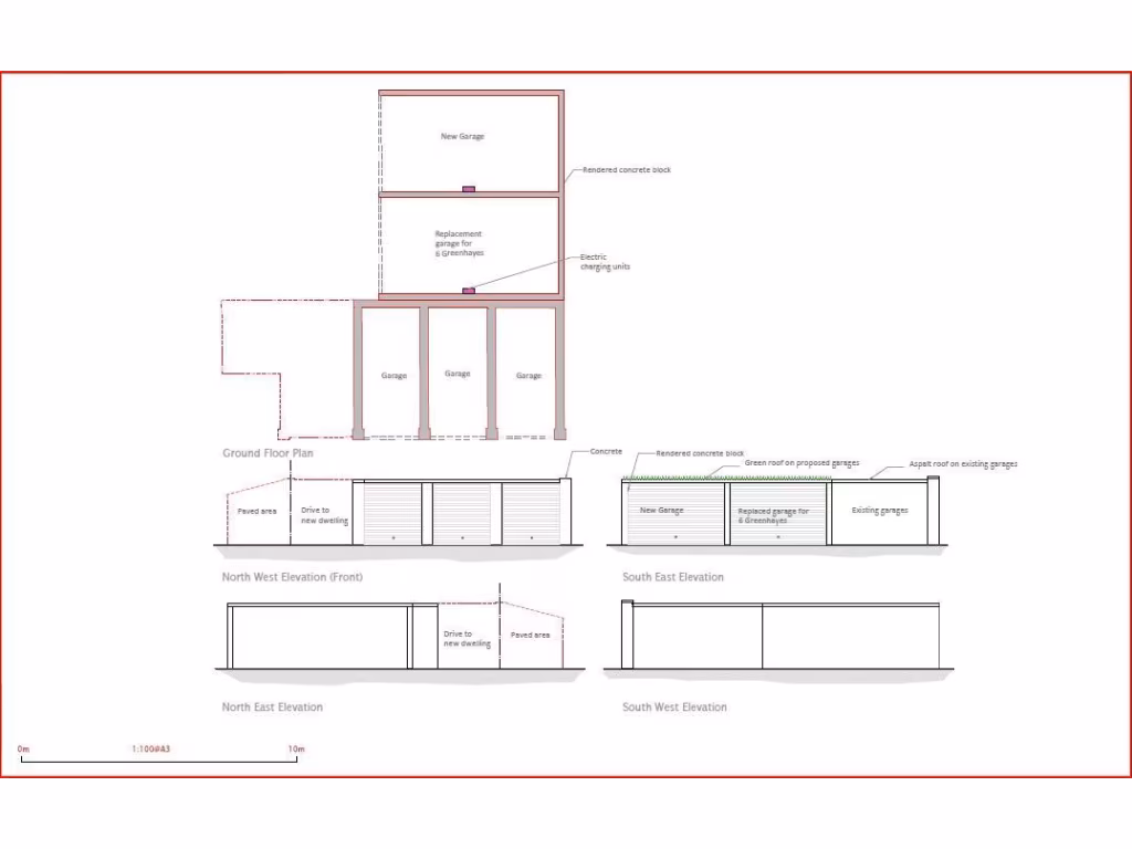
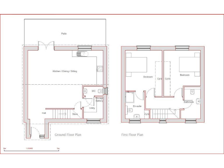
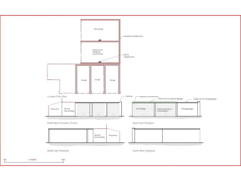
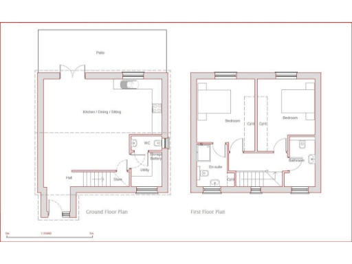
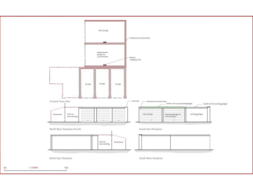
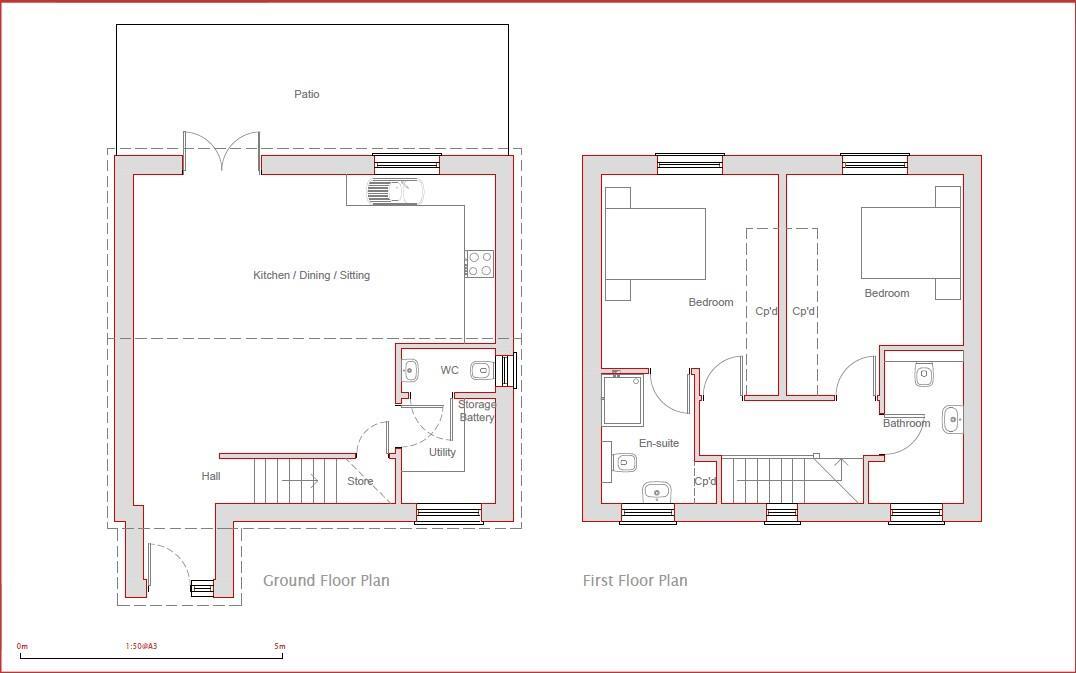
- Full planning permission granted for a contemporary two-bedroom eco home
- Located in a quiet cul-de-sac in Dartington
- Approved double garage and private driveway
- Generous private garden, with wildlife-friendly features
- Excellent transport links to Totnes and A38
- Chain-free freehold sale
**Summary:**
Discover an exceptional opportunity to create your dream eco-friendly home in the tranquil village of Dartington. This rare plot of land comes with approved planning permission for a stylish contemporary two-bedroom residence, complete with a double garage and private driveway. The extensive landscaping plan includes sustainable elements like solar panels, an air source heat pump, and ecological enhancements such as bat and bird boxes.
Nestled at the end of a peaceful cul-de-sac, you'll enjoy a generous garden space, surrounded by mature boundaries that offer both privacy and a connection to nature. With easy access to Dartington’s vibrant amenities and the historic town of Totnes, this area combines the charm of rural living with modern conveniences. Ideal for families or investors, this chain-free plot is a unique opportunity in one of South Hams’ most desirable locations. Don’t miss out on crafting your ideal sustainable home—seize this chance today!
Land for sale in Blackawton, Totnes, TQ9 — £450,000 • 3 bed • 1 bath • 1350 ft²
Land for sale in Blackawton, Totnes, TQ9 — £450,000 • 1 bed • 1 bath • 1350 ft²
Plot for sale in Development opportunity, Hope Close, Totnes, TQ9 — £85,000 • 1 bed • 1 bath • 1614 ft²
3 bedroom detached house for sale in Sawfield Drive, Dartington, TQ9 — £700,000 • 3 bed • 3 bath • 1500 ft²
Plot for sale in Copland View, Totnes, TQ9 — £100,000 • 1 bed • 1 bath
4 bedroom detached house for sale in Huxhams Cross, Dartington, TQ9 — £1,150,000 • 4 bed • 3 bath • 2782 ft²






















































































