Large 2.86-acre building plot with approved plans and material start near Blackawton.
Approximately 2.86 acres of meadow, orchard, woodland and stream
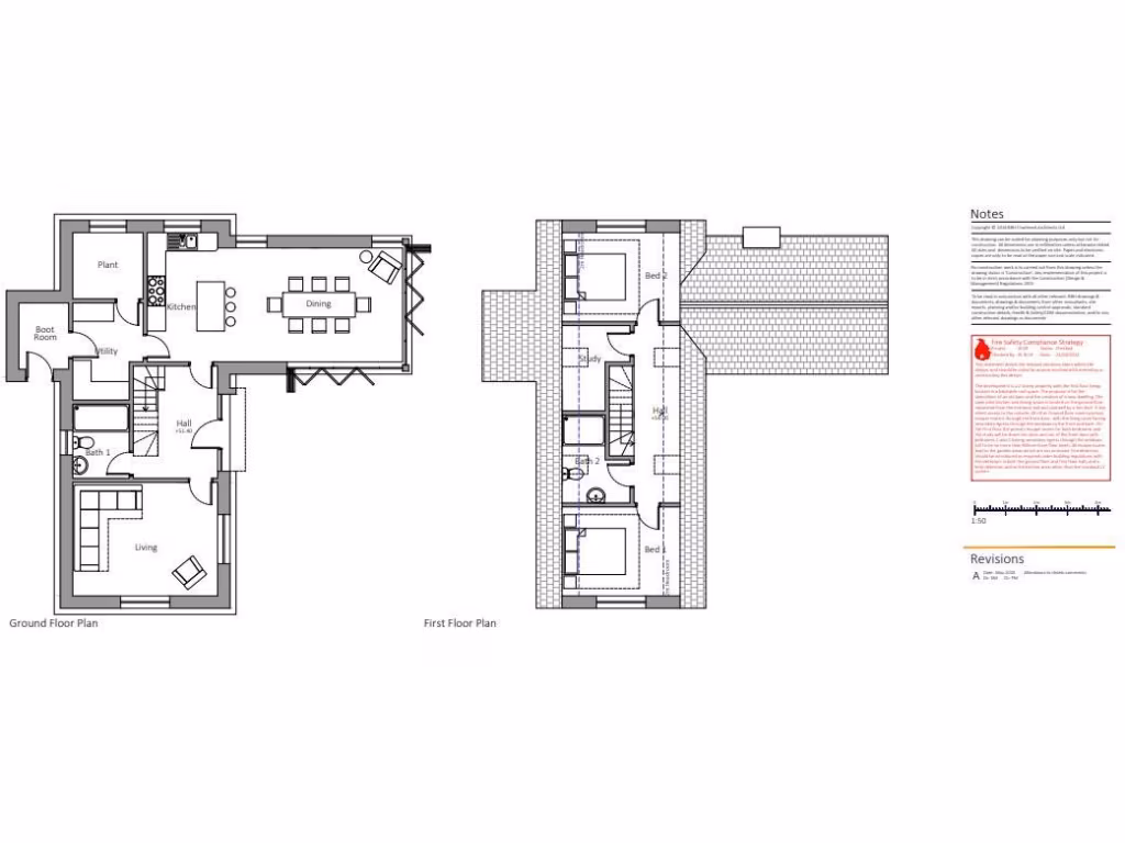
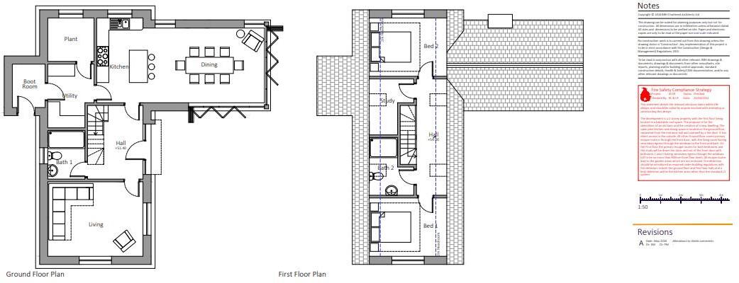
Planning granted (ref 1941/24/VAR) for c.1,350 sq.ft. detached dwelling
Works commenced on site; footings completed and building control signed off
Walking distance to Blackawton village amenities and primary school
Mains electricity connected; water via private borehole (buyer to confirm)
Air- or ground-source heat planned; renewable grants may be available
Medium flood risk on parts of the site; investigate before purchase
Very slow broadband speeds; shared-lane access and self-completion required
Set on approximately 2.86 acres of meadow, orchard and light woodland on the outskirts of Blackawton, this freehold plot has full planning (South Hams ref: 1941/24/VAR) for a detached c.1,350 sq.ft. house. The approved BBH Architects design is contemporary, energy-conscious and planned to incorporate air- or ground-source heating; footings and a material start have been completed and signed off by building control, reducing the time to completion for a buyer prepared to finish the project.
The location delivers a peaceful rural lifestyle while remaining within walking distance of Blackawton village amenities — primary school, shop and pub — and within easy reach of Totnes, Dartmouth and the South Devon coast. The site’s size and variety of spaces (stream, meadow, orchard and sheltered corners) give strong scope for landscaped gardens, parking, a garage and excellent indoor–outdoor living from terraces and large glazing shown on the approved drawings.
Practical points to note: mains electricity is connected but water is supplied via a private borehole; ground-source heat infrastructure has been planned across the stream. Broadband speeds are very slow in this area and there is a medium flood risk to parts of the land — both matters buyers should investigate. Access is via a shared lane and purchasers will be responsible for completing construction to the approved plans and connecting any additional services.
Land for sale in Blackawton, Totnes, TQ9 — £450,000 • 3 bed • 1 bath • 1350 ft²
Land for sale in Dartington, Totnes, TQ9 — £150,000 • 1 bed • 1 bath • 947 ft²
Light industrial facility for sale in Blackawton, Totnes, TQ9 — £150,000 • 1 bed • 1 bath • 1378 ft²
Land for sale in Totnes Road, Paignton, TQ4 — £325,000 • 1 bed • 1 bath • 23522 ft²
Land for sale in 7.28 Acres - South Allington, Kingsbridge, Devon, TQ7 — £45,000 • 1 bed • 1 bath
Land for sale in 69.50 Acres - South Allington, Kingsbridge, Devon, TQ7 — £600,000 • 1 bed • 1 bath


















































































































