Rare 2.86-acre plot with approved plans and material start near Blackawton village.
Approximately 2.86 acres of meadow, orchard and light woodland
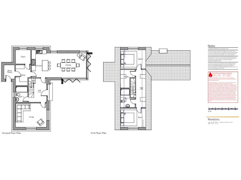
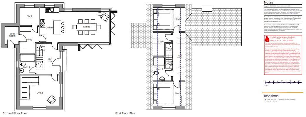
Planning permission granted (South Hams ref 1941/24/VAR) for c.1,350 sq.ft dwelling
Material start on site (footings) signed off by building control
Private borehole water; mains electricity connected on site
Air-source or ground-source heat pump planned; renewable-ready
Medium flood risk across parts of the plot — check insurance/consent
Very slow broadband speeds may affect remote working and streaming
Access via shared lane; purchasers must confirm service connections and boundaries
Set within approximately 2.86 acres of meadow, orchard and light woodland, this rare building plot on the edge of Blackawton offers the chance to create a bespoke, contemporary family home. South Hams planning permission (ref. 1941/24/VAR) is granted for a c.1,350 sq.ft. detached dwelling; footings have been laid and a material start signed off by building control, reducing the planning risk for a purchaser.
The approved scheme is designed for bright, open-plan living with strong indoor–outdoor connections to take advantage of valley views and the generous grounds. Practical services include mains electricity and a private borehole for water, with renewable heating (air- or ground-source heat pump) planned. The site is tucked away down a shared lane yet remains within walking distance of village amenities and a short drive from Totnes, Dartmouth and Kingsbridge.
Buyers should note the material considerations: broadband speeds are very slow and the plot carries a medium flood risk in parts — both factors that may affect occupier comfort and insurance/finance arrangements. The planned ground-source heat pump location and borehole mean some infrastructure is off-plot; purchasers must verify service connections, utility access and any future maintenance responsibilities.
Overall this is an attractive opportunity for families or buyers seeking a long-term rural home with established planning and substantial land. The combination of a large, private plot, approved contemporary design and a signed material start provides a clear route to completion, while the site’s environmental features and countryside setting add strong lifestyle appeal.
Land for sale in Blackawton, Totnes, TQ9 — £450,000 • 1 bed • 1 bath • 1350 ft²
Land for sale in Dartington, Totnes, TQ9 — £150,000 • 1 bed • 1 bath • 947 ft²
Plot for sale in Copland View, Totnes, TQ9 — £100,000 • 1 bed • 1 bath
Land for sale in Self Build Plot 6, Bradley Bends, Bovey Tracey, TQ13 — £185,000 • 5 bed • 1 bath • 8396 ft²
Detached house for sale in Diptford, Totnes, TQ9 — £300,000 • 1 bed • 1 bath • 1349 ft²
Land for sale in Totnes Road, Paignton, TQ4 — £325,000 • 1 bed • 1 bath • 23522 ft²


















































































































