**Standout Features:**
- Full planning permission granted for two 4-bedroom detached homes (Planning Ref: 20/02363/FUL).
- Total site size: approximately XXX acres with ample driveway space.
- Located in the Minster School catchment area, ideal for families.
- Chain-free opportunity.
**Summary:**
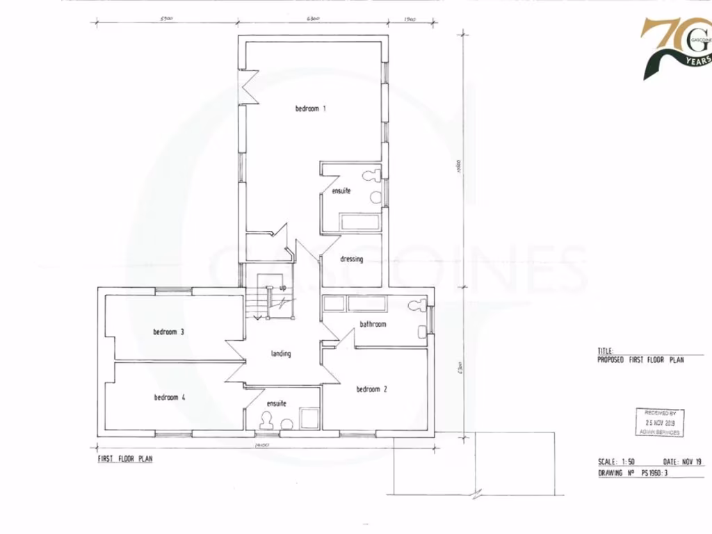
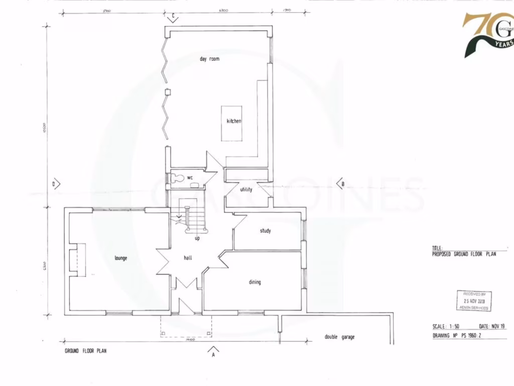
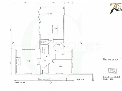
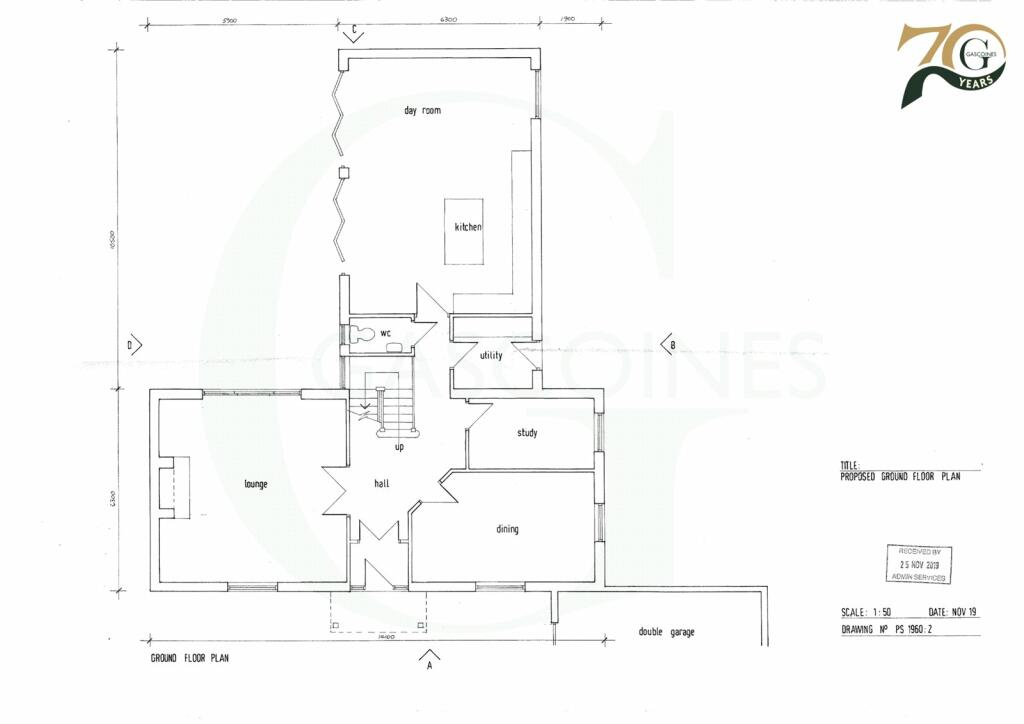
Unlock the potential of this exceptional property offering two building plots in the peaceful village of Goverton. Set within an affluent rural area, these plots come with full planning permission to create two luxurious four-bedroom, two-storey detached homes, each totaling 3,336 square feet upon completion. The designs promise generous layouts, featuring spacious entry halls, living areas with bi-fold doors, utility rooms, separate dining spaces, and comfortable en-suites—all complemented by double garages.
Surrounded by lush greenery and the charm of village life, this opportunity resides within the esteemed Minster School catchment, perfect for families seeking quality education options. The picturesque settings ensure a tranquil lifestyle while maintaining easy access to Southwell's amenities and Newark-on-Trent's broader offerings, including fast rail links to London. With a guide price of £450,000 - £500,000, this property presents an exclusive chance for investors or families to create dream homes in a highly desirable area—don’t let it slip away!
Plot for sale in Goverton, Bleasby, Nottinghamshire, NG14 — £450,000 • 1 bed • 1 bath • 4204 ft²
Land for sale in Development Site Goverton, Bleasby, Nottingham, Nottinghamshire, NG14 — £900,000 • 1 bed • 1 bath
Plot for sale in Newboundmill Lane, Pleasley, Mansfield, NG19 — £350,000 • 1 bed • 1 bath
Land for sale in Land On Claypit Lane, Fiskerton, Southwell, NG25 — £195,000 • 1 bed • 1 bath • 7405 ft²
Land for sale in Development Land, Nottingham Road, Bulcote, Nottingham, NG14 — £500,000 • 1 bed • 1 bath • 1800 ft²
Land for sale in Building Plot, Leeming Lane North, (off Sookholme Road), Mansfield Woodhouse, NG19 — £225,000 • 1 bed • 1 bath


































