### Standout Features:
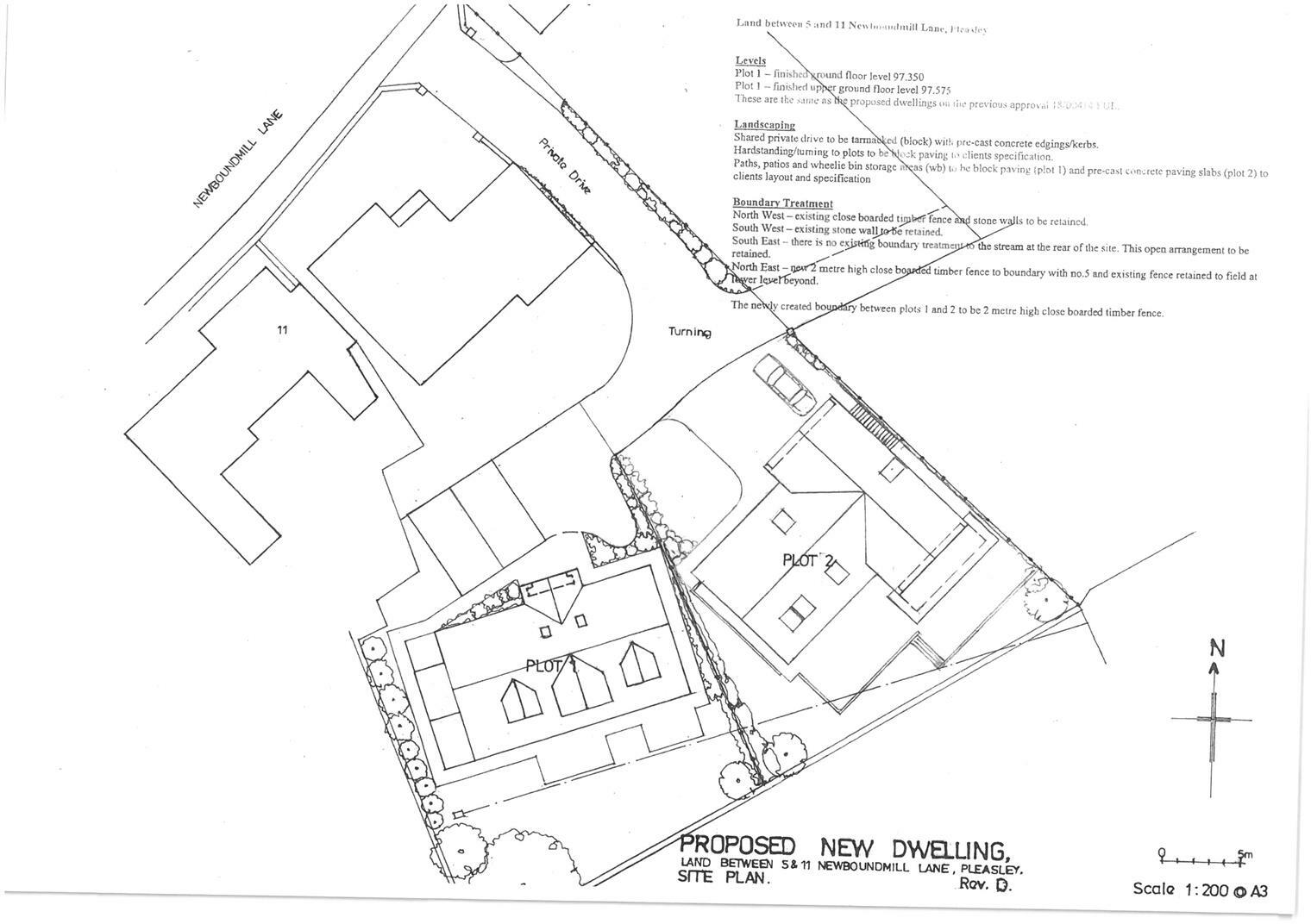
- **Double Building Plot** in a sought-after conservation area
- **Outstanding Rear Views**
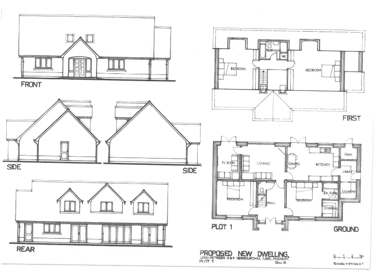
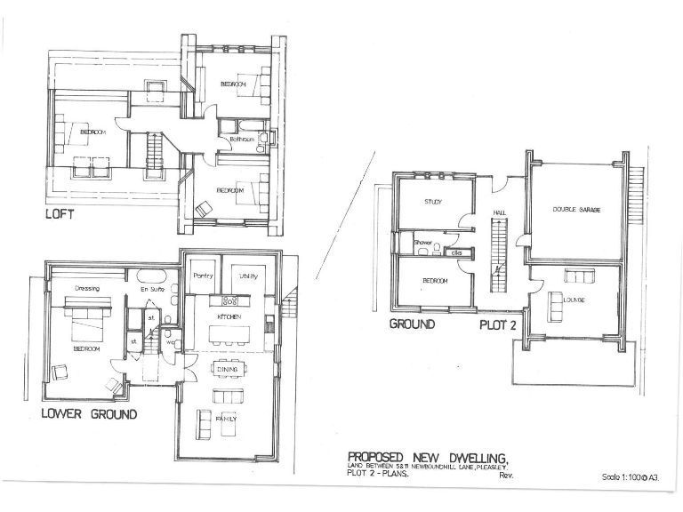
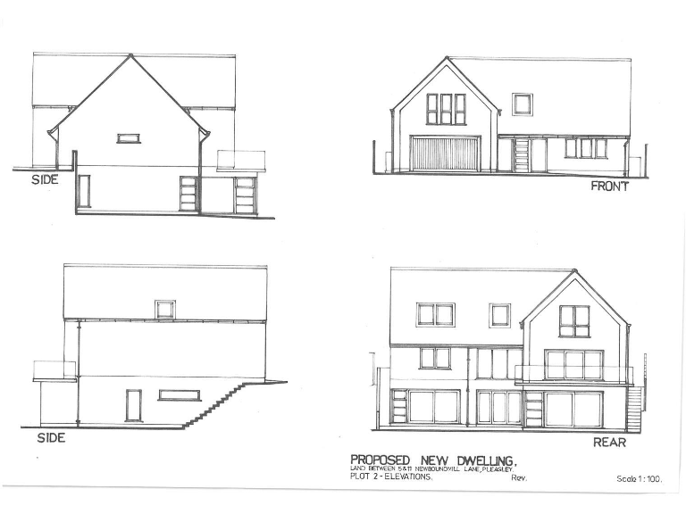
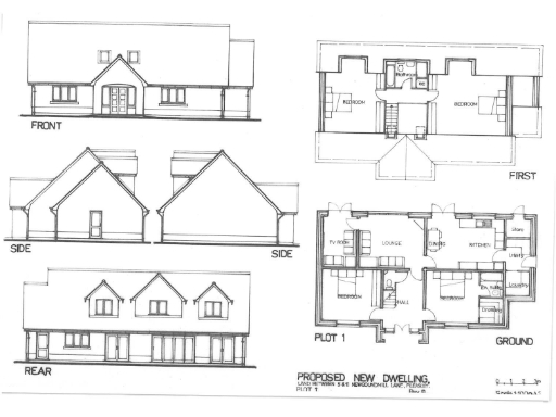
- **Planning Permission** granted for:
- **Plot 1:** Four-bedroom detached dwelling with garage
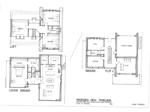
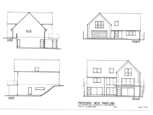
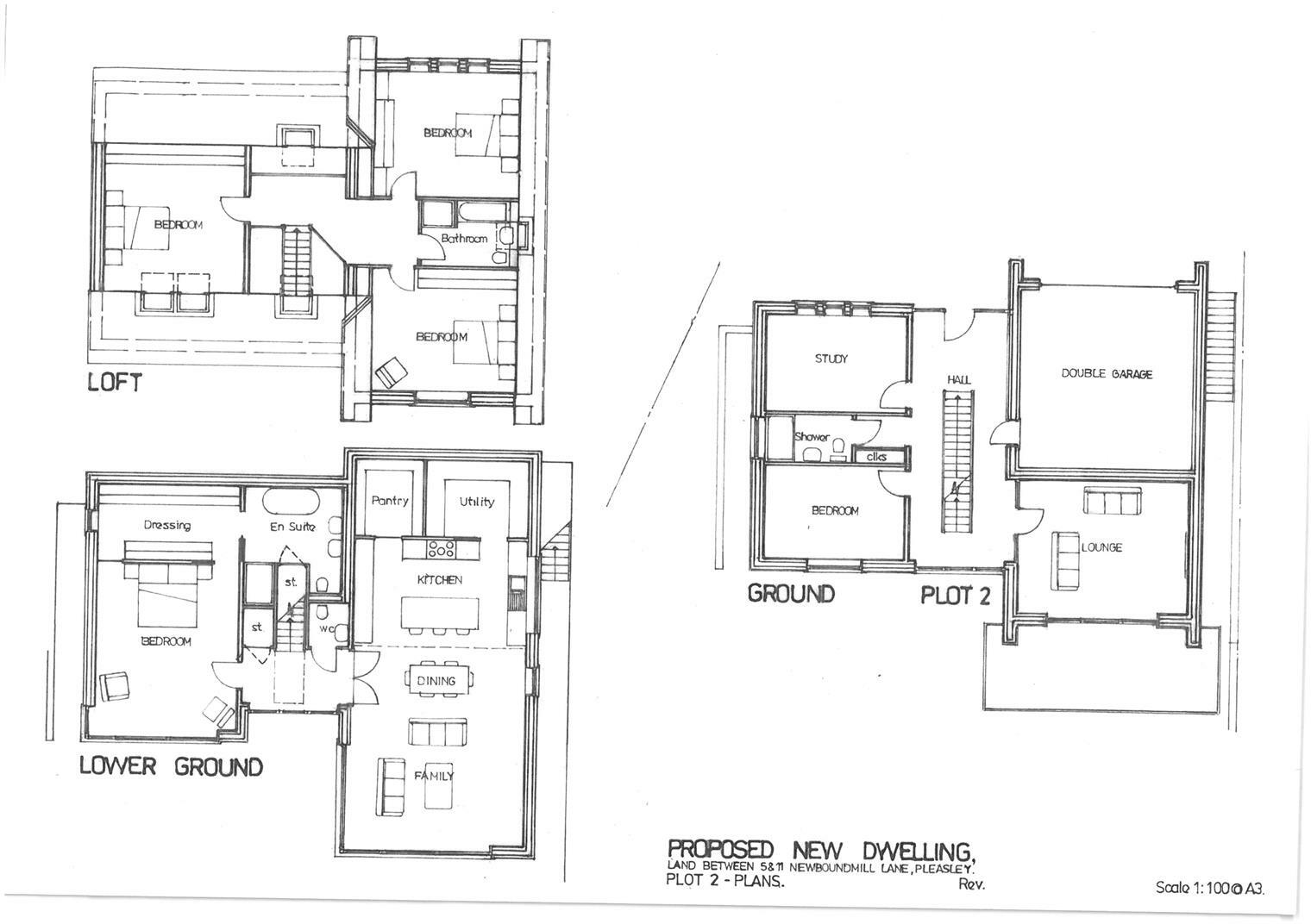
- **Plot 2:** Three-storey, five-bedroom dwelling with double garage
- **Excellent Transport Links** to Junction 29 of the M1 motorway
- **Large Plot** size with ample development potential
### Summary:
Discover a rare opportunity to acquire a prime double building plot in a coveted conservation area, perfect for investors and developers. This property boasts planning permission for two spacious dwellings: a charming four-bedroom detached home complemented by its own garage, and an impressive three-storey, five-bedroom residence featuring a double garage. With outstanding views to the rear and located conveniently near Junction 29 of the M1 motorway, it combines both natural beauty and excellent connectivity, making it an ideal location for family living or renting potential.
The expansive plot offers flexibility for designing modern living spaces or potential extensions, ensuring you can create a personalized touch. Although set within a bustling community with good transport links, it’s advised to consider the surrounding area's high crime rate. This unique investment opportunity, with a guide price of £400,000 to £425,000, is not likely to last long. Secure your future here where comfort, security, and community come together beautifully!
Plot for sale in Newboundmill Lane, Pleasley, Mansfield, NG19 — £400,000 • 1 bed • 1 bath
Land for sale in High Street, Tibshelf, DE55 — £350,000 • 1 bed • 1 bath
Detached house for sale in Mansfield Road, Hasland, S41 — £95,000 • 1 bed • 1 bath • 2600 ft²
Detached house for sale in Mansfield Road, Hasland, S41 — £95,000 • 1 bed • 1 bath • 1725 ft²
Land for sale in Building Plot, Leeming Lane North, (off Sookholme Road), Mansfield Woodhouse, NG19 — £225,000 • 1 bed • 1 bath
Plot for sale in Building Land, The Hill, Glapwell, Chesterfield, S44 — £425,000 • 1 bed • 1 bath






























