Elevated family home with barn, stables and approved major extension.
About 23.19 acres of paddock, orchard, copses and level field
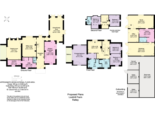
Set at the end of a long private drive with sweeping southerly views, Lockhill Farm is a substantial modern farmhouse on about 23.2 acres designed for family life, entertaining and small-scale equestrian use. The house already provides large, light spaces — vaulted family/dining room, a DeVol kitchen, principal suite and multiple reception rooms — with the added benefit of a detached barn and established stables. Planning permission in place would almost double the house to create a dramatic, glass-fronted open-plan living kitchen and four further en suite bedrooms with balcony.
The grounds are a major asset: stock-fenced paddocks, a separate level field, mature trees, orchard and sheltered copse offer grazing, wildlife habitat and privacy. The detached single-storey barn (1,265 sq ft) and adjoining covered carport/storage (1,250 sq ft) give clear scope for ancillary accommodation, home working, income generation or conversion to additional stabling (subject to consents). Broadband and mobile signals are excellent for rural standards.
Practical points to note: heating runs off an LPG boiler (not on a mains gas network), council tax is described as expensive, and two public footpaths cross the paddock land. The existing house is modern (1991–95) and well-presented but the approved extension and pool are a significant project — implementing them will require time, cost and builder coordination. The location is rural; main shopping and intercity links (Banbury) are a short drive away, with M40 access within the locality.
Equestrian facility for sale in Ratley, Nr Banbury, Oxfordshire, OX15 — £1,800,000 • 5 bed • 3 bath • 1779 ft²
5 bedroom detached house for sale in Sibford Road, Shutford, Banbury, Oxfordshire, OX15 — £3,300,000 • 5 bed • 4 bath • 8689 ft²
Farm land for sale in Lot 1, Manor Farm, Ratley, Ratley, Banbury, Warwickshire, OX15 6DS, OX15 — £900,000 • 1 bed • 1 bath
Equestrian facility for sale in Radway, Warwick, Warwickshire, CV35 — £2,000,000 • 5 bed • 3 bath • 4126 ft²
6 bedroom detached house for sale in Old Warwick Road, Rowington, Warwick, CV35 7AA, CV35 — £3,500,000 • 6 bed • 4 bath • 7295 ft²
6 bedroom farm house for sale in Gullicote Lane, Hanwell, OX17 — £2,500,000 • 6 bed • 7 bath • 4011 ft²


































































































































































































































































































































































