Affordable starter home or rental opportunity close to local schools and shops.
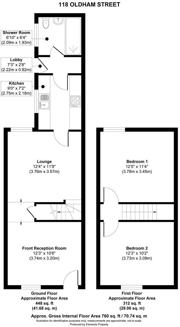
- Two bedrooms and two reception rooms, practical flowing layout
- Approximately 753 sq ft across multi-storey layout
- Modern fitted galley kitchen with integrated hob and extractor
- Single-storey rear extension provides extra utility space
- Small rear yard; limited external amenity and small plot
- Solid brick walls likely without insulation; energy upgrades probable
- Double glazing present (install date unknown); fast broadband available
- Located in a deprived area; average crime and rental-constrained market
This two-bedroom end-terrace on Oldham Street blends period character with practical, compact living across about 753 sq ft. The house has two reception rooms, a modern fitted galley kitchen and a single-storey rear extension that adds useful utility space.
The property is freehold, heated by mains-gas boiler and radiators, and benefits from double glazing (install date unknown) and fast local broadband — practical strengths for buyers or landlords. Council tax is very low, and flood risk is low, supporting affordable running costs.
Buyers should note the small plot and narrow rear yard typical of traditional terraces; external amenity is limited. The brick walls are likely uninsulated (original solid construction), so upgrading wall insulation or secondary measures could be needed to improve thermal performance.
Located in a working-class area with average crime levels and wider local deprivation, the home is well placed for nearby schools, shops and public transport. It suits first-time buyers seeking an affordable starter home or investors targeting straightforward rental stock, but larger families may find room and garden space restrictive.
2 bedroom end of terrace house for sale in Hepherd Street WA5 — £150,000 • 2 bed • 1 bath • 879 ft²
3 bedroom terraced house for sale in Marsh House Lane, Warrington, Cheshire, WA1 — £190,000 • 3 bed • 1 bath • 881 ft²
2 bedroom terraced house for sale in Statham Avenue, Warrington, Cheshire, WA2 — £160,000 • 2 bed • 1 bath • 769 ft²
2 bedroom terraced house for sale in Samuel Street, Warrington, WA5 — £150,000 • 2 bed • 1 bath • 811 ft²
2 bedroom terraced house for sale in Honister Avenue, Warrington, WA2 — £160,000 • 2 bed • 1 bath • 770 ft²
3 bedroom terraced house for sale in Ridgway Street, Warrington, WA2 — £185,000 • 3 bed • 1 bath • 844 ft²


































































































