Flexible multi‑generational layout with courtyard ease and excellent transport links.
No onward chain — available to move quickly
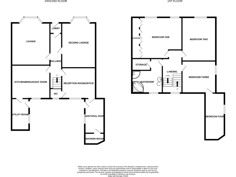
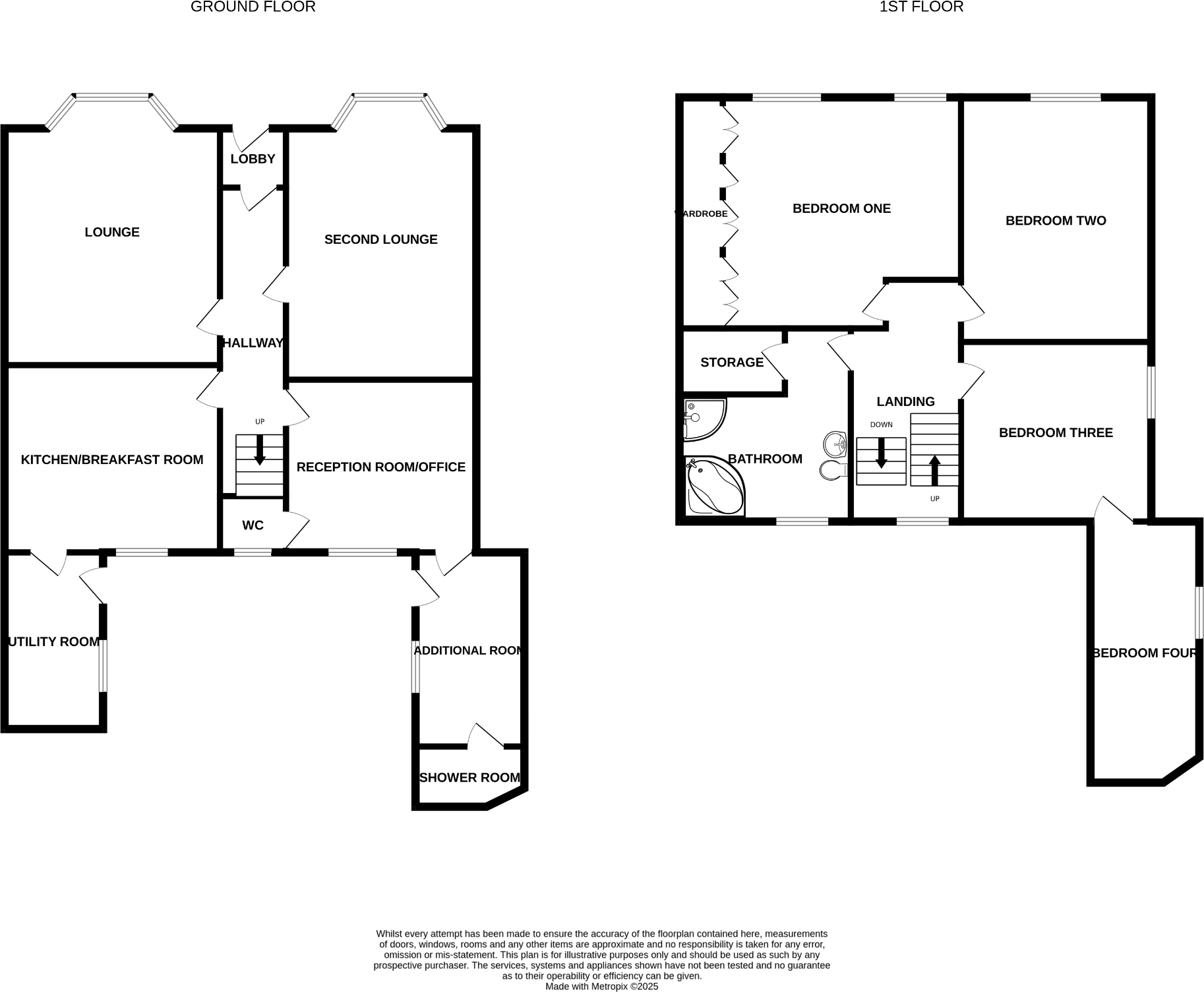
A substantial four-bedroom Victorian end-of-terrace positioned on Swan Street, offered with no onward chain and flexible internal space well suited to multi-generational living or a home-office arrangement. The house retains period character in its bay-fronted reception rooms while providing practical modern comforts such as gas central heating and uPVC double glazing.
The ground floor layout is versatile — two generous front reception rooms, a breakfast kitchen, utility and a third reception that links to a ground-floor shower room and an additional room with services that could become a second kitchen or independent living space. Upstairs offers four bedrooms, a larger-than-average family bathroom and useful walk-in storage, giving space for families or those needing separate accommodation.
Externally the property is low maintenance with a paved forecourt and an enclosed rear courtyard ideal for sitting out or secure storage; there is no large garden. Practical benefits include excellent mobile signal, fast broadband and good transport links to the A68 and A1(M). Local schools are highly rated and everyday amenities are close by.
Important points to note: the plot and external space are modest, the house is average overall in size for a four-bedroom terraced dwelling, and the tenure is not specified in the information provided. The surrounding area scores as deprived which may affect future resale values; interested buyers should also inspect for any modernisation needed in kitchen, bathroom fittings and general decorative updating.
3 bedroom terraced house for sale in Alexandra Terrace, Evenwood, Bishop Auckland, DL14 9QN, DL14 — £90,000 • 3 bed • 1 bath • 786 ft²
2 bedroom terraced house for sale in Evenwood Gate, Bishop Auckland, DL14 — £79,950 • 2 bed • 1 bath • 802 ft²
4 bedroom semi-detached house for sale in Evenwood, Bishop Auckland, Durham, DL14 — £575,000 • 4 bed • 4 bath • 2898 ft²
2 bedroom terraced house for sale in Chapel Street, Evenwood, Bishop Auckland, DL14 — £80,000 • 2 bed • 1 bath • 863 ft²
2 bedroom end of terrace house for sale in Campbell Street, Bishop Auckland, DL13 — £79,950 • 2 bed • 1 bath • 872 ft²
5 bedroom detached house for sale in Neville Close, Evenwood, Bishop Auckland, DL14 — £375,000 • 5 bed • 4 bath • 2615 ft²


























































































