Spacious, characterful family home with large gardens and versatile living spaces.
Extensive living: ~2,898 sq ft with five reception rooms and four bathrooms
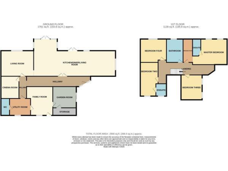
This substantial four-bedroom semi-detached house blends original 19th-century character with extensive modern living space. Set on a generous plot at the edge of Evenwood, the property offers five reception rooms, four bathrooms and nearly 2,900 sq ft — ideal for families who need flexible space for work, hobbies and entertaining.
Stand-out features include landscaped tiered gardens with multiple seating areas, a cinema room, hot tub, and a large private driveway with gated access. The principal and second bedrooms both have en-suites, and several reception rooms provide clear scope for a home office, playroom or guest wing.
Buyers should note this is an older stone-built home (originally 1825) and some traditional fabric shows typical maintenance considerations: stone walls likely lack modern cavity insulation, glazing install dates are unknown, and services should be independently checked. Tenure details are not confirmed and should be verified before purchase.
Located within easy reach of Bishop Auckland and local schools, the house suits families seeking a peaceful rural-edge lifestyle with good road links. The scale, garden and adaptable rooms offer genuine long-term potential but expect ongoing upkeep and some retrofit work to improve energy performance and reduce running costs.
5 bedroom detached house for sale in Neville Close, Evenwood, Bishop Auckland, DL14 — £375,000 • 5 bed • 4 bath • 2615 ft²
3 bedroom terraced house for sale in Alexandra Terrace, Evenwood, Bishop Auckland, DL14 9QN, DL14 — £90,000 • 3 bed • 1 bath • 786 ft²
4 bedroom detached house for sale in Woodhouse Lane, Bishop Auckland, Durham, DL14 — £475,000 • 4 bed • 1 bath • 2217 ft²
5 bedroom end of terrace house for sale in California, Witton Park, Bishop Auckland, DL14 — £350,000 • 5 bed • 2 bath • 1771 ft²
4 bedroom end of terrace house for sale in Swan Street, Evenwood, DL14 — £179,950 • 4 bed • 2 bath • 1608 ft²
4 bedroom detached house for sale in Springbank Road, Newfield, Bishop Auckland, DL14 8DE, DL14 — £588,000 • 4 bed • 2 bath • 1872 ft²


























































































































































































