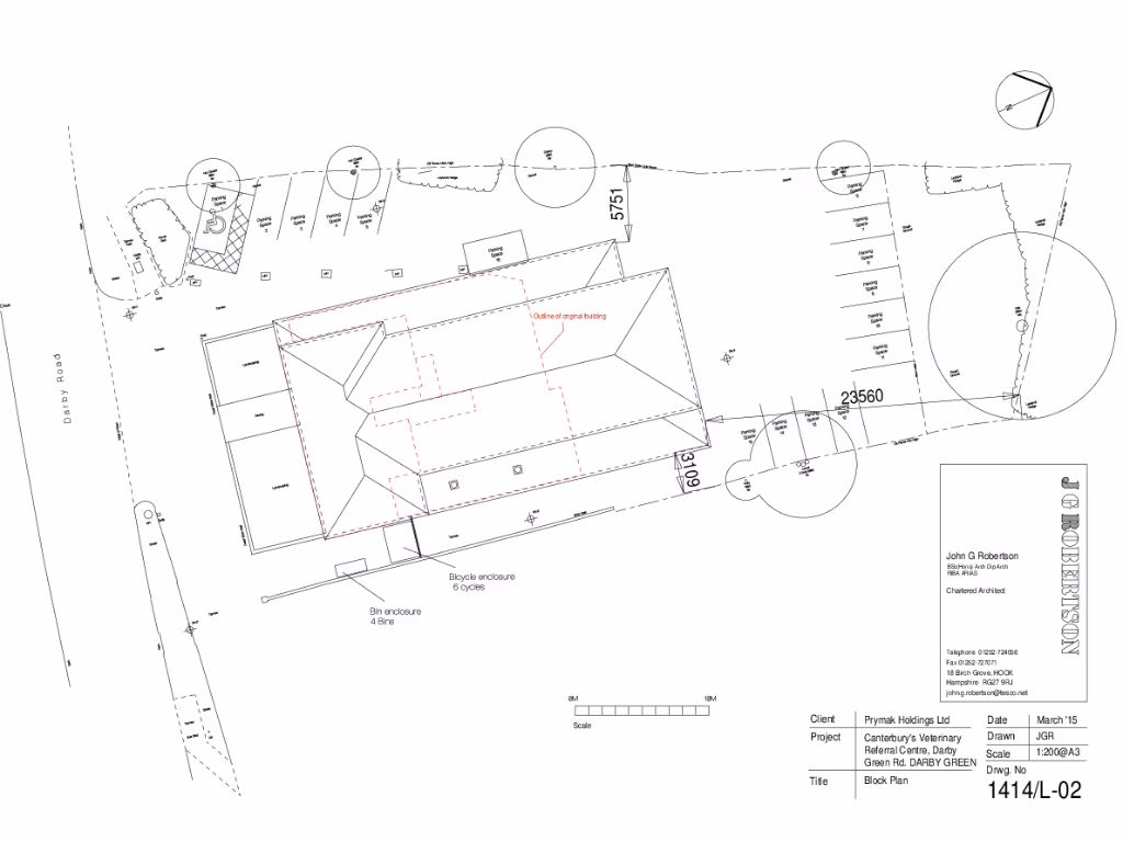
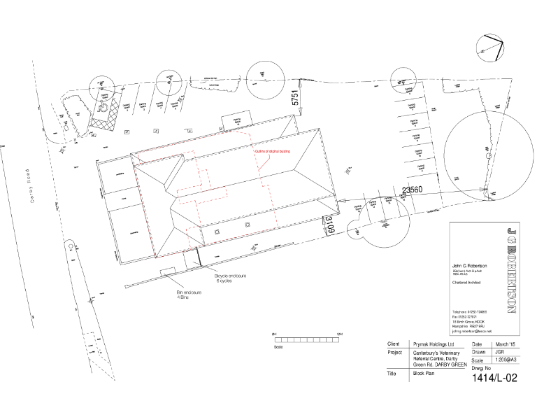
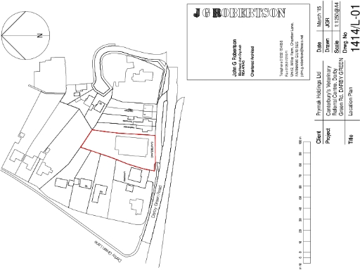
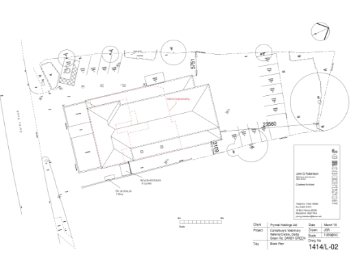
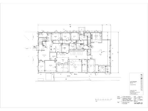
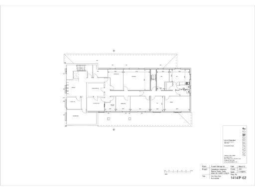
Freehold cleared site of approximately 0.39 acres (0.16 ha)
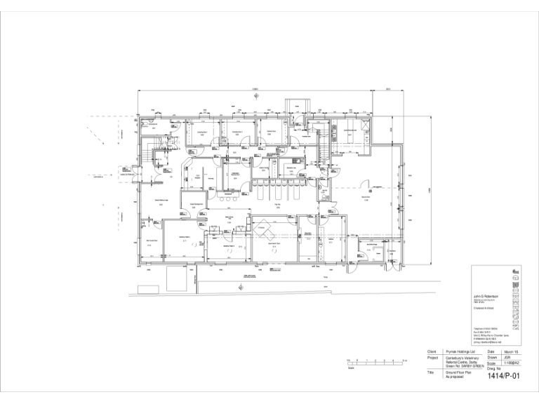
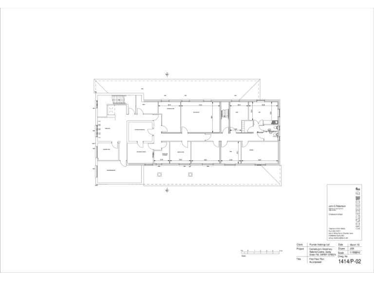
A rare freehold development plot of about 0.39 acres in comfortable suburban Blackwater, offered with vacant possession. The site benefits from an extant 2015 planning consent (ref: 15/01563/FUL) for a two‑storey veterinary building of c.8,020 sq ft with 16 parking spaces — the consent was implemented via demolition and therefore remains live. Following the 2020 Use Class Order the approved veterinary use now sits in Class E, opening realistic alternative uses such as medical, health hub, educational, professional and other commercial uses (subject to planning).
The cleared, rectangular/irregular parcel sits with road frontage on Darby Green Road and substantial depth to the rear, with mature trees providing screening. Transport links are strong: nearby Sandhurst and Blackwater stations (c.1.5 miles), local bus routes and straightforward access toward the M4. Local infrastructure is good — fast broadband, excellent mobile signal and a very low flood risk support a range of occupier needs.
Buyers should note planning and design constraints: the site lies within the Darby Green / Yateley Conservation Area which may influence proposals and approvals. A 2023 planning application for seven three‑bed houses was withdrawn in 2024, so residential redevelopment is possible but not guaranteed. The plot is marketed with two price guides: unconditional offers at £775,000 and subject‑to‑planning offers at £900,000.
This parcel will suit developers, investors or owner‑occupiers seeking a redevelopment opportunity in a very affluent suburban catchment. It offers clear scope for delivering a purpose‑built commercial/health facility under the existing consent, or for pursuing alternative schemes (STP), but prospective purchasers should factor in conservation area controls and usual planning risk.
Commercial development for sale in Land West Of 44 - 88 Oxenden Road, Tongham, Surrey, GU10 — POA • 1 bed • 1 bath
Land for sale in Swan Lane, Darby Green, Sandhurst, GU47 — £35,000 • 1 bed • 1 bath
Land for sale in Green Lane, Hartley Wintney, Hampshire, RG27 — £450,000 • 1 bed • 1 bath • 2261 ft²
Land for sale in Land at Hammersley Drive Hammersley Drive Aldershot Hampshire GU12 6FR U, GU12 — £1,000,000 • 1 bed • 1 bath • 29621 ft²
Land for sale in Swan Lane, Sandhurst, GU47 — £295,000 • 1 bed • 1 bath
Land for sale in Old Lane, Dockenfield, Farnham, GU10 — £400,000 • 1 bed • 1 bath • 634 ft²


















































































