OX16 9PJ - 3 bed victorian townhouse refreshed in Bear Garden Road, OX…

View on Property Piper

3 bedroom terraced house for sale in Banbury, Oxfordshire, OX16

Summary - 7 BEAR GARDEN ROAD BANBURY OX16 9PJ

3 bed 2 bath Terraced

Newly renovated three-double-bedroom town house a mile from Banbury centre..
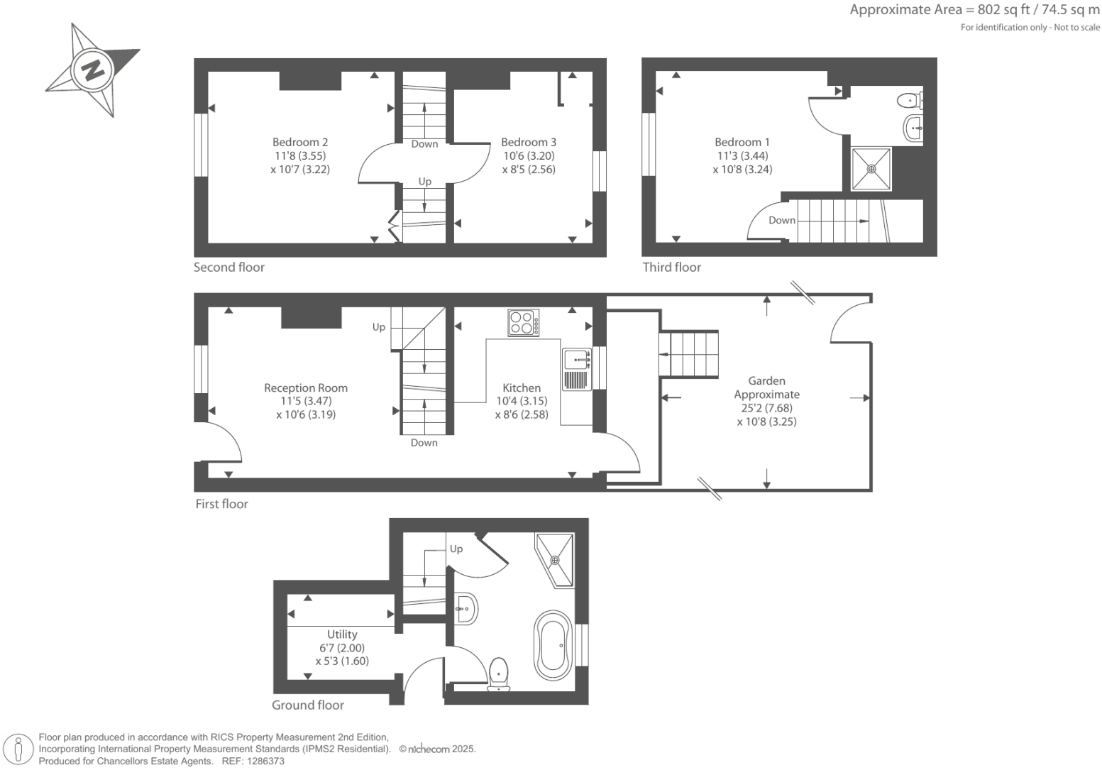
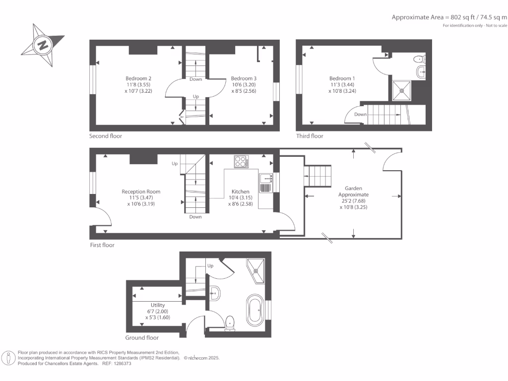
Three double bedrooms with master ensuite
Newly renovated interior with modern finishes throughout
Small private courtyard garden; very small plot
Solid brick Victorian build; likely no wall insulation
Double glazing fitted before 2002 may be older
High crime level in the immediate area
Within one mile of Banbury town centre and amenities
Freehold tenure; affordable council tax
This Victorian mid-terrace has been newly renovated and presents modern finishes across a compact three-bedroom layout. Arranged over multiple storeys, the house offers three double bedrooms, a master ensuite and a separate family bathroom — practical for family life or sharers wanting individual space. A small private courtyard provides an outdoor spot but the plot is very small.

The property sits within a mile of Banbury town centre, with fast broadband and a wide range of amenities, shops and schools close by. It is freehold and offered at a competitive price, with affordable council tax, making it suitable for first-time buyers or families seeking a town-centre base with period character.

Buyers should note a few material points: the building is solid-brick and was constructed before 1900 with no assumed cavity-wall insulation; double glazing was installed before 2002. Although recently refurbished internally, the fabric may benefit from further insulation upgrades to improve efficiency. The area records higher-than-average crime, which should be considered when viewing.

Overall, this compact town house combines period character and contemporary fit-out in a sought-after location. It will suit purchasers who prioritise location and internal, ready-to-live-in accommodation and who are comfortable with a small plot and potential longer-term fabric improvements.

Property Details

Image Descriptions

Floorplan Description

Rooms

Textual Property Features

Target Audience

AI Tags

Detected Visual Features

EPC Details

Nearby Schools

Nearest Bars And Restaurants

,,,,}

Nearest General Shops

,,}

Nearest Grocery shops

,,}

Nearest Supermarkets

,,}

Nearest Religious buildings

,,}

Nearest Medical buildings

,,,}

Nearest Leisure Facilities

,,,,}

Nearest Tourist attractions

,,}

Nearest Train stations

,,,,}

Nearest Bus stations and stops

,,,,}

Nearest Hotels

,,}

Tags

Local Market Stats

AirBnB Data

Similar Properties

Meta

High Res Images

Compatible Images

Low res Images

Thumbnails

Raw Images

High Res Floorplan Images

Compatible Floorplan Images

Low res Floorplan Images

FloorplanImages Thumbnail

Raw Floorplan Images