### Standout Features:
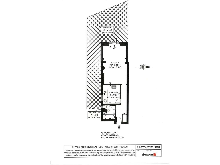
- **Size**: Cozy 407 sq.ft (38 sq.m) ground floor extended studio apartment.
- **Garden**: Enclosed southwest-facing rear garden (approximately 18ft x 16ft) with raised patio.
- **Location**: Excellent transport links to the West End/City; near vibrant Kensal Rise amenities & Grand Union Canal.
- **Condition**: Bright and airy living space with modern kitchen and bathroom.
- **Lease**: Long leasehold with 151 years remaining.
### Summary:
This charming ground floor studio apartment offers a unique opportunity for first-time buyers, investors, or anyone seeking a serene London retreat. Spanning 407 sq.ft, the apartment features a spacious reception/bedroom area that seamlessly connects to a delightful west-facing garden through large double-glazed doors, perfect for tranquil evenings. The modern kitchen is equipped with contemporary appliances and ample storage, while the well-appointed bathroom includes both a bath and shower. Enjoy the vibrancy of Kensal Rise, with its eclectic bars and eateries just a short stroll away, along with easy access to public transport and scenic canal walks.
While the flat is in good structural condition, it’s worth noting that the building lies behind a commercial property, and the walls lack insulation, which may affect energy efficiency—factors potential buyers should consider. With very affordable council tax and a long lease remaining, this property is an inviting canvas for anyone looking to make their mark in a sought-after London location. Don’t miss out on making this cozy studio your own!
1 bedroom flat for sale in Ladbroke Grove, London, UK, W10 — £310,000 • 1 bed • 1 bath • 348 ft²
1 bedroom flat for sale in Albany Court, 1 Trenmar Gardens, London, NW10 6BR, NW10 — £300,000 • 1 bed • 1 bath • 411 ft²
Studio flat for sale in Sinclair Road, Brook Green, London, W14 — £300,000 • 1 bed • 1 bath • 324 ft²
2 bedroom apartment for sale in Wakeman Road, London, NW10 — £650,000 • 2 bed • 1 bath • 909 ft²
Studio flat for sale in Holland Road, London, W14 — £195,000 • 1 bed • 1 bath
Studio flat for sale in Ladbroke Grove, London, W10 — £425,000 • 1 bed • 1 bath • 435 ft²






































