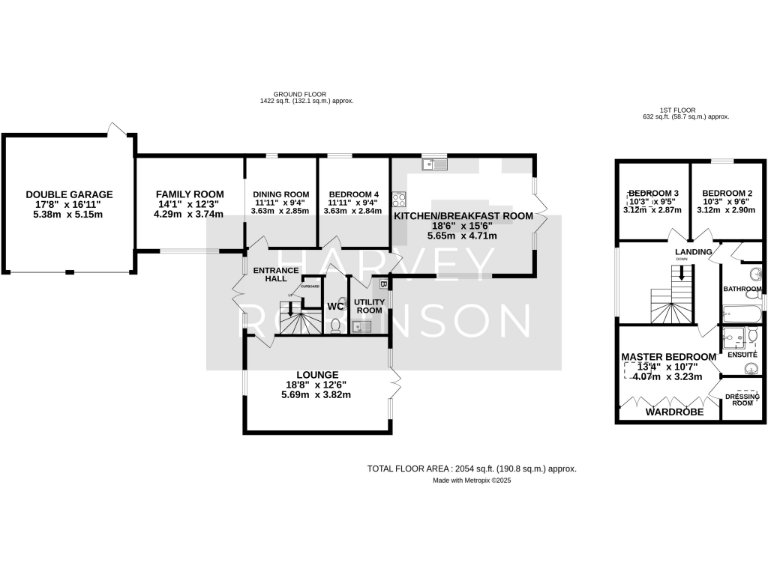
**Standout Features:**
- Four spacious bedrooms, including a master suite with ensuite and dressing room
- Three reception rooms, providing versatile living and entertaining spaces
- Open-plan kitchen/breakfast room with French doors to the garden
- Double garage and off-road parking
- Enclosed rear garden, ideal for family gatherings and outdoor activities
- Immaculate condition throughout with modern finishes
This exceptional four-bedroom detached family home in the charming village of Warboys offers an impressive 2,000 sq. ft. of flexible living space, perfect for families seeking comfort and a touch of elegance. Built in 2007, the property boasts a striking modern design with high ceilings and large windows that flood the interior with natural light. The well-appointed ground floor features a welcoming entrance hall, expansive lounge with French doors, separate dining room, and a versatile family room for various needs.
Upstairs, you’ll find three generous double bedrooms and an enviable master suite complete with ensuite and dressing room, ensuring ample private space. Enjoy the convenience of a low-maintenance yet inviting garden and the practicality of a double garage. While the home is in impeccable condition, potential buyers should consider the ongoing maintenance of gas appliances and general wear as is standard for any property.
Set within a friendly community with excellent primary and secondary schools nearby, Warboys is an idyllic escape from city life, showcasing beautiful countryside living with quick access to Huntingdon and St Ives. The competitive guide price of £475,000 to £500,000 makes this an opportunity not to be missed for families and investors alike—act fast to secure this stunning home!
4 bedroom detached house for sale in Pathfinder Way, Warboys, PE28 — £475,000 • 4 bed • 2 bath • 1824 ft²
3 bedroom semi-detached house for sale in Longlands Close, Warboys, PE28 — £325,000 • 3 bed • 1 bath • 1137 ft²
4 bedroom detached house for sale in Mahaddie Way, Warboys, PE28 — £450,000 • 4 bed • 3 bath • 1408 ft²
5 bedroom detached house for sale in Collings Close, Warboys, PE28 — £475,000 • 5 bed • 3 bath • 2200 ft²
4 bedroom detached house for sale in High Street, Warboys, PE28 — £475,000 • 4 bed • 2 bath • 1836 ft²
4 bedroom detached house for sale in Heath Road, Warboys, Huntingdon, Cambridgeshire, PE28 — £450,000 • 4 bed • 2 bath • 1532 ft²






































































