**Standout Features:**
- Coastal location with breathtaking sea views 
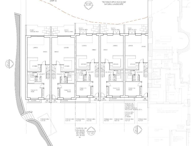
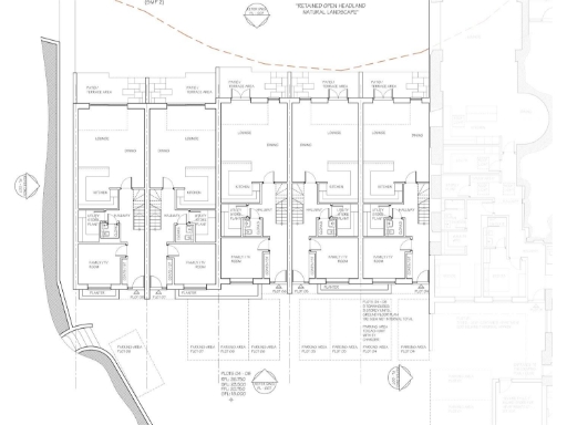
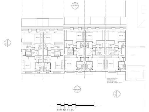
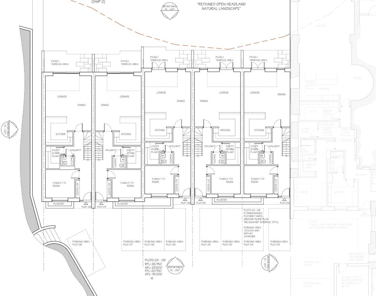
- Development potential for 11 properties, including 5 townhouses
- Direct beach access from the site
- Close proximity to popular Newquay attractions 
- Ample space available with a total size of over 10,000 square feet
**Potential Concerns:**
- Planning permission details yet to be finalized
- Current building might require demolition before new development
This remarkable coastal development opportunity is set atop the stunning Porth Beach and boasts panoramic views of Newquay Bay and the North Cornish coastline. With approved plans for five luxurious townhouses, each featuring open-plan living spaces and sea-view terraces, this property beckons developers looking to capitalize on the thriving holiday market. The large sandy beach just moments away offers a versatile appeal for both families and tourists, with activities such as swimming, surfing, and scenic walks along the rugged cliffs.
The generous plot extends to over 10,000 square feet, ensuring plenty of room for creating a desirable vacation residence or rental properties in a highly sought-after area. Local amenities, excellent schools, and easy transportation links enhance the property's value, making it an ideal choice for investors aiming for future growth. Be part of the vibrant Newquay community while enjoying the potential for a profitable coastal venture—this opportunity may not last long!
 Plot for sale in Lusty Glaze Road, Newquay, Cornwall, TR7 — £1,750,000 • 20 bed • 1 bath • 10064 ft²
 Plot for sale in Lusty Glaze Road, Newquay, Cornwall, TR7 — £1,750,000 • 20 bed • 1 bath • 10064 ft² Residential development for sale in Trevelgue Road, Newquay, Cornwall, TR7 — £3,000,000 • 1 bed • 1 bath • 9000 ft²
 Residential development for sale in Trevelgue Road, Newquay, Cornwall, TR7 — £3,000,000 • 1 bed • 1 bath • 9000 ft² Commercial development for sale in Trevelgue Road, Newquay, Cornwall, TR7 — £3,000,000 • 19 bed • 1 bath • 9000 ft²
 Commercial development for sale in Trevelgue Road, Newquay, Cornwall, TR7 — £3,000,000 • 19 bed • 1 bath • 9000 ft² Land for sale in Mawgan Porth, Cornwall, TR8 4BY, TR8 — £1,000,000 • 1 bed • 1 bath
 Land for sale in Mawgan Porth, Cornwall, TR8 4BY, TR8 — £1,000,000 • 1 bed • 1 bath Land for sale in Mawgan Porth, Cornwall, TR8 4BY, TR8 — £1,000,000 • 1 bed • 1 bath
 Land for sale in Mawgan Porth, Cornwall, TR8 4BY, TR8 — £1,000,000 • 1 bed • 1 bath Land for sale in 55-57 Pentire Avenue, Newquay, TR7 — £1,250,000 • 1 bed • 1 bath • 10600 ft²
 Land for sale in 55-57 Pentire Avenue, Newquay, TR7 — £1,250,000 • 1 bed • 1 bath • 10600 ft²






































































