**Standout Features:**
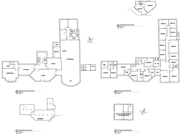
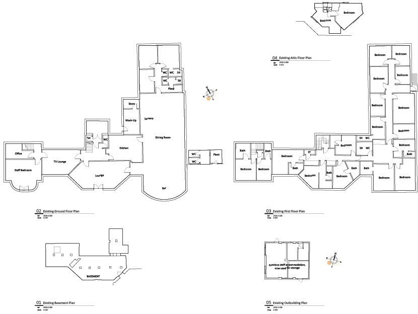
- Expansive former hotel shell covering 9,000 sq ft on a 1.25-acre freehold plot
- Planning permission for 10 high-end homes and holiday lets (4 designated for holiday use)
- Panoramic south-west facing views of Porth Beach and the Atlantic
- Prime location near Newquay's vibrant town center and renowned beaches
- Recently granted Excellent CEPC rating: B
**Potential Downsides:**
- Requires redevelopment; current structure needs demolition
- Average mobile signal and slow broadband speeds may be a concern for some buyers
Explore a remarkable redevelopment opportunity in a coveted Cornwall location. This former hotel, sited on a generous 1.25-acre plot, boasts a sprawling 9,000 sq ft footprint, offering an extraordinary canvas for the construction of ten high-end homes. Whether for families seeking permanent residency or investors eyeing lucrative holiday rentals, this site promises not only comfort but the exclusivity that comes with owning a piece of prime coastal property.
Perched above Porth Beach, savor unobstructed, sweeping views of golden sands and mighty waves—all while remaining conveniently close to Newquay’s bustling amenities. The surrounding area features a blend of local shops, cafés, and stunning beaches, elevating its appeal for both residents and vacationers. Nearby attractions include Mawgan Porth, Watergate Bay, and the historical charm of Padstow, enhancing its desirability as a premium investment.
Given the exceptional land size and strategic location, properties of this caliber rarely enter the market, underscoring a sense of urgency for discerning buyers. Whether envisioning a modern seaside retreat or a lucrative development portfolio, this property holds remarkable potential.
Commercial development for sale in Trevelgue Road, Newquay, Cornwall, TR7 — £3,000,000 • 19 bed • 1 bath • 9000 ft²
Plot for sale in Lusty Glaze Road, Newquay, Cornwall, TR7 — £1,750,000 • 20 bed • 1 bath • 10064 ft²
20 bedroom terraced house for sale in Lusty Glaze Road, Newquay, Cornwall, TR7 — £1,750,000 • 20 bed • 30 bath • 10064 ft²
Land for sale in 55-57 Pentire Avenue, Newquay, TR7 — £1,250,000 • 1 bed • 1 bath • 10600 ft²
20 bedroom detached house for sale in Tregurrian, TR8 — £1,200,000 • 20 bed • 5 bath • 6458 ft²
Land for sale in Mawgan Porth, Cornwall, TR8 4BY, TR8 — £1,000,000 • 1 bed • 1 bath






































































