Large freehold plot with planning for a premium mixed residential and holiday scheme.
Planning permission for 10 detached dwellings (4 holiday-only)
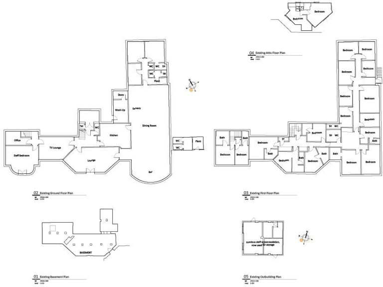
A rare commercial redevelopment plot in Newquay, this former hotel occupies c.1.25 acres with an existing 9,000 sq ft shell and an excellent EPC (B). Full planning permission is in place to demolish the hotel and deliver 10 detached homes, four of which are consented for holiday use only — a clear scheme for a mixed high-end residential and holiday-let offer.
The site benefits from elevated, south-west facing views over Porth Beach and out to the Atlantic, with Mawgan Porth, Watergate Bay and Newquay town centre all within easy driving distance. Neighbouring sales regularly exceed £1m, reinforcing the location's premium demand and rental potential for high-quality coastal homes and holiday accommodation.
Practical considerations for a developer: the sale is freehold, flooding risk is low, and the existing building is a large Edwardian-era shell that will require full demolition or extensive works to reuse. Broadband is slow locally and the existing building contains only one bathroom — evidence the current structure is no longer configured for modern residential occupation. Buyers should allow for demolition and construction costs and confirm planning details and any conditions before exchange.
This is an opportunity for an experienced developer or investor to execute a high-value coastal scheme in a tightly held Cornish location, taking advantage of planning consent, dramatic sea views and a substantial plot rarely available in this market.
Plot for sale in Lusty Glaze Road, Newquay, Cornwall, TR7 — £1,750,000 • 20 bed • 1 bath • 10064 ft²
Residential development for sale in Trevelgue Road, Newquay, Cornwall, TR7 — £3,000,000 • 1 bed • 1 bath • 9000 ft²
20 bedroom terraced house for sale in Lusty Glaze Road, Newquay, Cornwall, TR7 — £1,750,000 • 20 bed • 30 bath • 10064 ft²
Commercial property for sale in Lower Tregenna Development Cornwall Newquay Cornwall TR8 4HS United King, TR8 — £1,100,000 • 1 bed • 1 bath
4 bedroom detached house for sale in Newquay, Cornwall, TR8 — £1,100,000 • 4 bed • 2 bath • 1600 ft²
Land for sale in Mawgan Porth, Cornwall, TR8 4BY, TR8 — £1,000,000 • 1 bed • 1 bath














































































