Large modern office with strong parking and motorway access for investors.
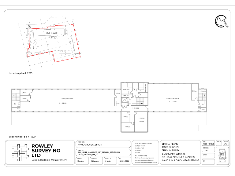
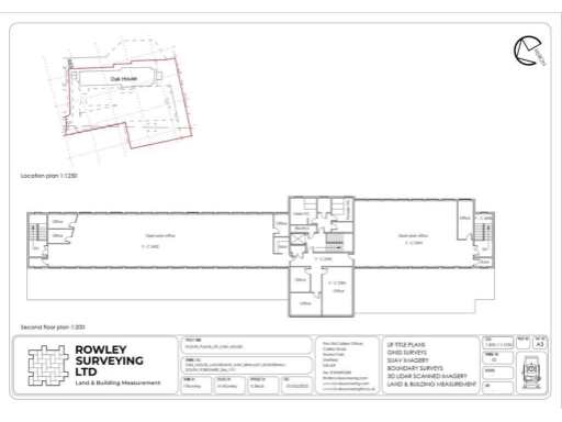
- Prominent motorway location immediately off J1 of the M18
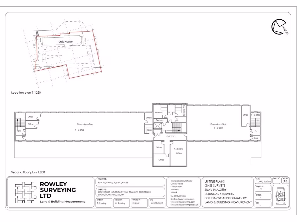
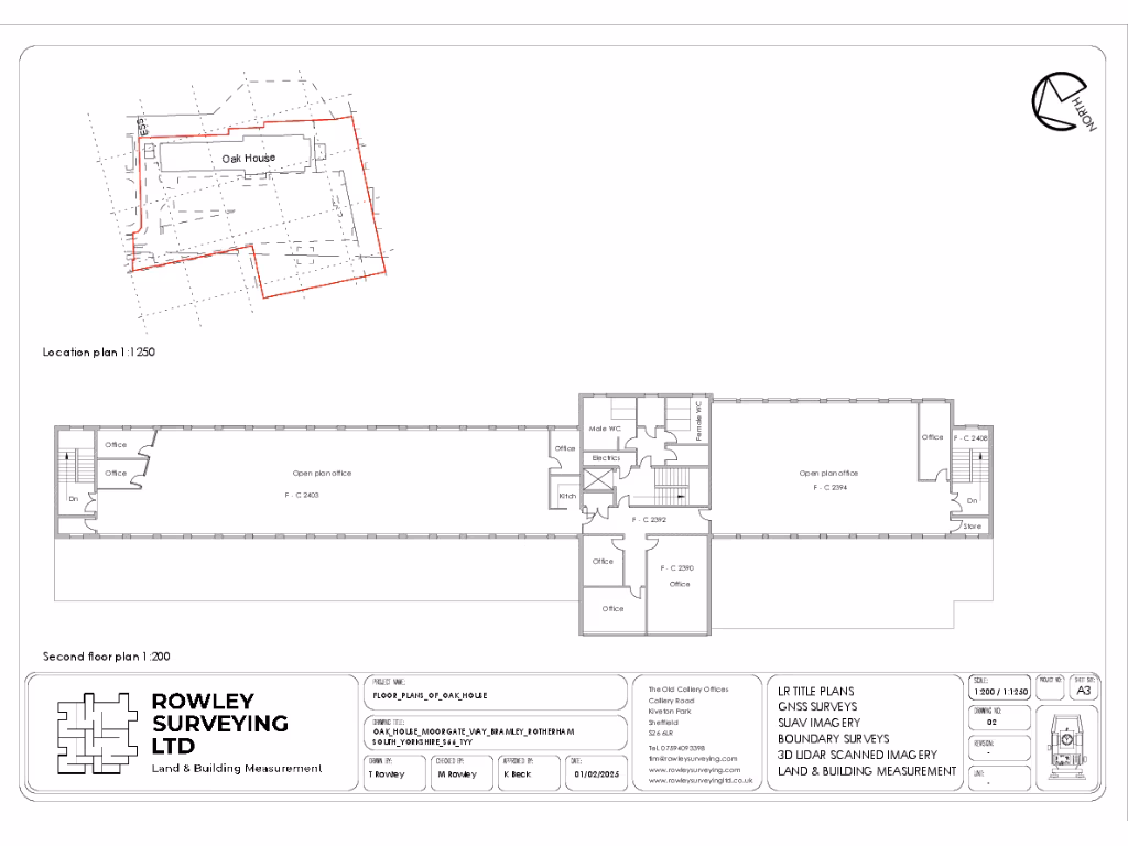
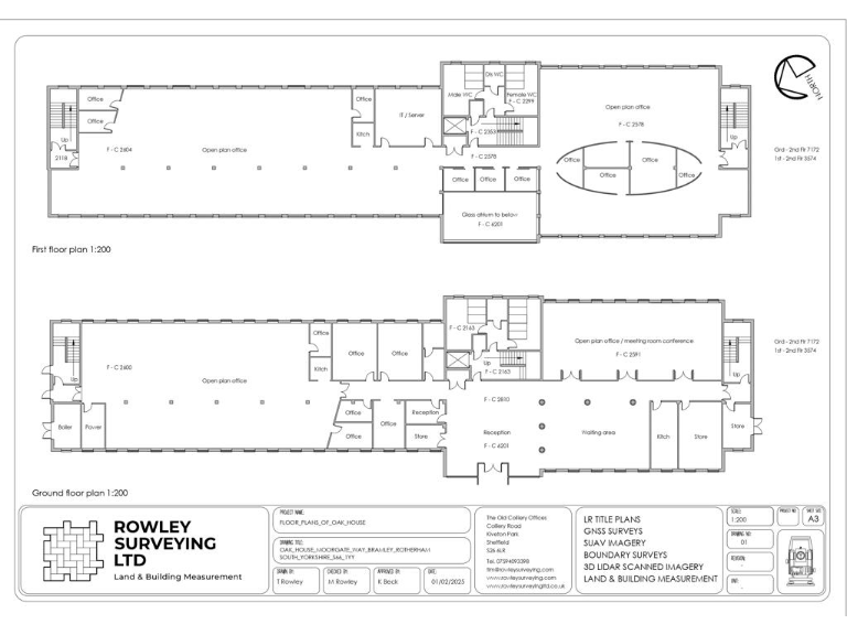
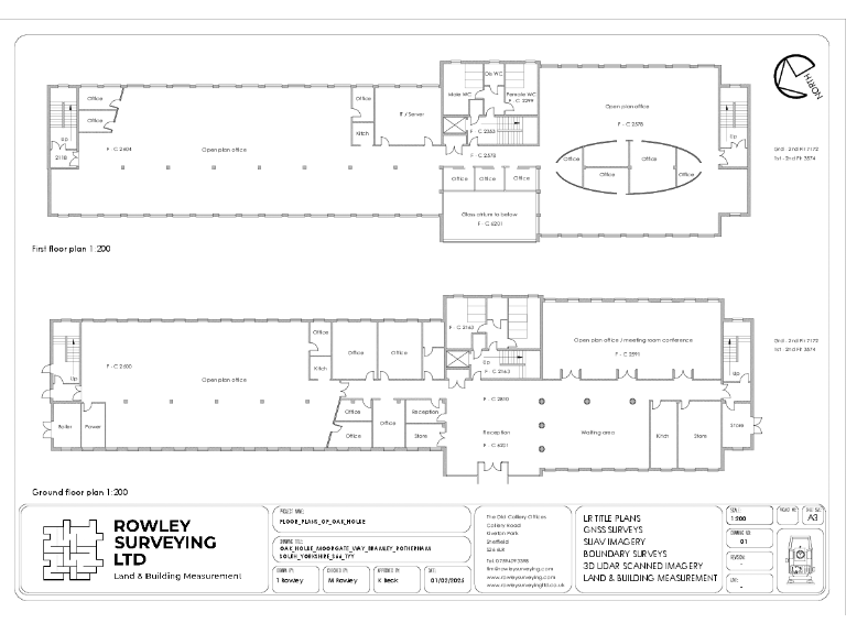
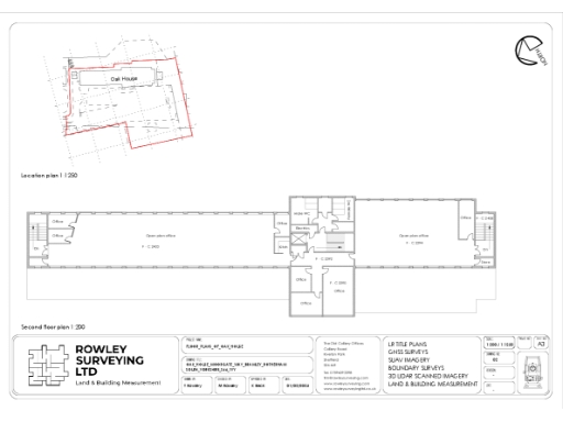
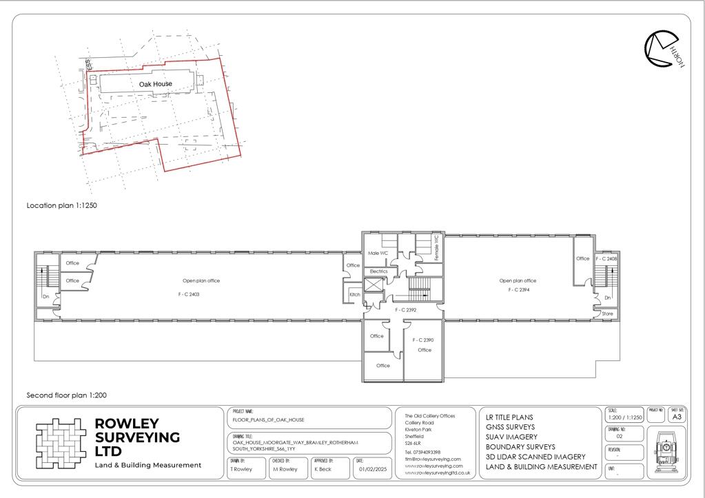
- Large net area: 23,244 sq ft across three storeys
- 120 car parking spaces with 10 EV charging points
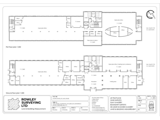
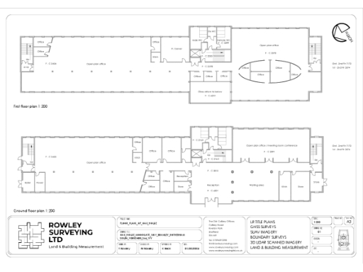
- Partially fitted: suspended ceilings, AC, raised floors
- DDA-compliant access with lift and impressive entrance
- Suitable for alternative uses (education/residential) STP
- Current rateable value £177,000; marketed at £2,500,000
- Local area recorded as high crime; tenure unknown
Oak House is a modern, three-storey office building of 23,244 sq ft positioned immediately off Junction 1 of the M18, offering exceptional road links to Rotherham, Doncaster and Sheffield. The building—constructed in 2004—comes partially fitted with suspended ceilings, air conditioning, raised access floors and DDA-compliant lift access, providing a ready base for occupation or reconfiguration.
The site delivers a very strong vehicle provision with 120 car parking spaces and 10 EV charging points, making it well suited to businesses with high staff or visitor turnover. Local amenities sit on the estate, including supermarket, leisure and food operators, and mobile and broadband connectivity are reported as excellent/fast.
The property is marketed at £2,500,000 with a current rateable value of £177,000. It has clear redevelopment potential — alternative uses such as education or residential may be possible subject to planning — but any change of use would require consent and further professional appraisal.
Buyers should note material cautions: the site is in a locality recorded as having high crime, tenure is unspecified, and the building is only partially fitted so some refurbishment or fit-out costs may be required depending on the intended use. These points should be factored into occupation, conversion or investment appraisals.
Office for sale in Oak House, Moorhead Way, Bramley, Rotherham, S66 1YY, S66 — POA • 1 bed • 1 bath • 24000 ft²
Commercial property for sale in Lowton Way, Hellaby, South Yorkshire, S66 — £6,500,000 • 1 bed • 1 bath • 2661 ft²
Commercial property for sale in Ascot House, Chase Park, Malton Way, Adwick-Le-Street, Doncaster, South Yorkshire, DN6 — £695,000 • 1 bed • 1 bath • 6146 ft²
Light industrial facility for sale in Rotherham 80, Panattoni Park Rotherham, Cumwell Lane, Hellaby, Rotherham, South Yorkshire, S66 8EY, S66 — POA • 1 bed • 1 bath
Office for sale in Unit 1, Carolina Court, Lakeside, Doncaster, South Yorkshire, DN4 — £1,400,000 • 1 bed • 1 bath • 11488 ft²
Office for sale in South Grove House, South Grove, Rotherham, South Yorkshire, S60 2AF., S60 — £3,500,000 • 1 bed • 1 bath • 27351 ft²






















































































