Large modern office with strong transport links and substantial parking.
1,067 m2 (11,488 ft2) modern two-storey office space
47 dedicated off-street parking spaces and landscaped grounds
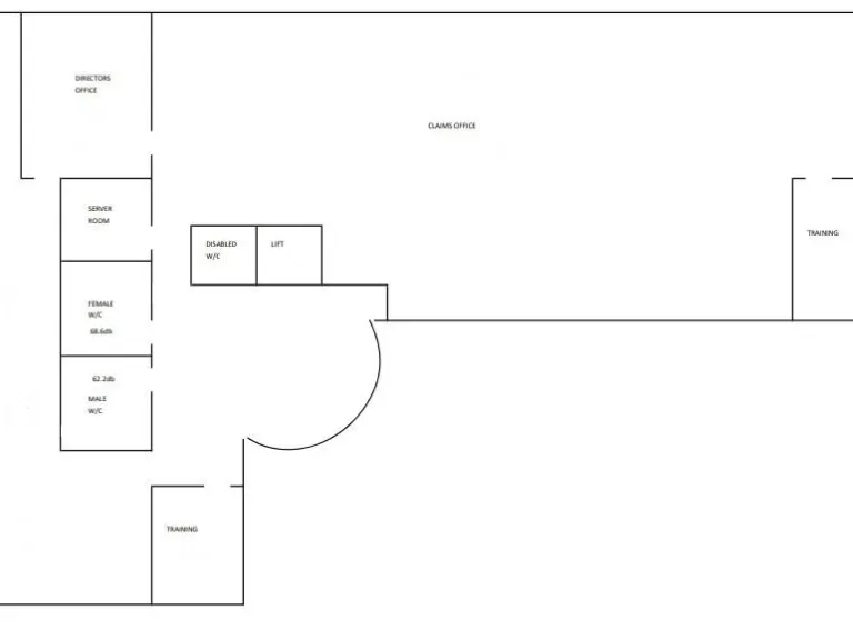
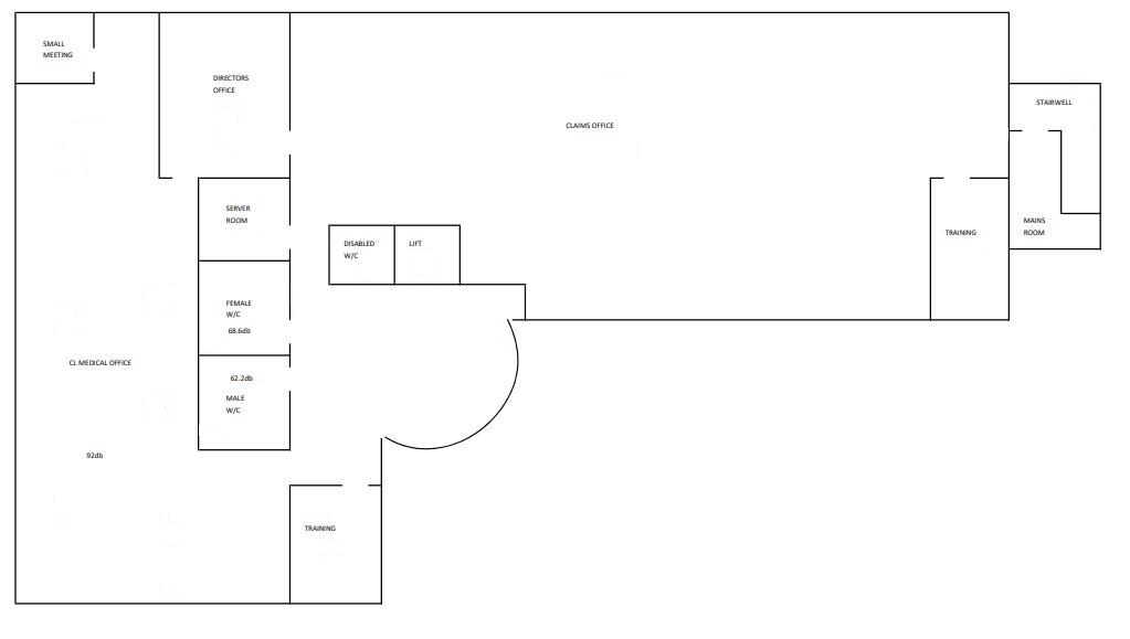
Feature glazed atrium, passenger lift and air conditioning
Primarily open-plan with some glazed offices and first-floor canteen
Frontage to busy Carolina Way — high visibility but potential road noise
Tenure unknown — confirm legal/ownership details prior to purchase
Local crime levels very high — consider enhanced security and insurance
Fast broadband and excellent mobile signal, no flood risk
A substantial two-storey detached office building occupying 1,067 m2 (11,488 ft2) on Lakeside business park, offered at £1,400,000. The property presents a modern glazed atrium entrance, open-plan floorplates with some glazed cellular offices, a first-floor canteen, passenger lift and air conditioning — ready for immediate professional occupation or leasing to multiple tenants. Landscaped grounds and 47 dedicated parking spaces front busy Carolina Way, giving excellent roadside profile and easy vehicular access.
The building is in good visual condition with contemporary finishes (suspended ceilings, inset lighting) and fast broadband/mobile connectivity. Its large, adaptable footprint suits an occupier seeking a single HQ or an investor targeting multi-let income; proximity to schools and local amenities supports staff attraction. The site sits within a private-renting, urban cultural area with average deprivation scores but strong local transport links.
Material considerations: tenure is currently unknown and should be checked; the property faces Carolina Way so road noise and high passing traffic should be factored into usage plans. Recorded local crime levels are very high — factor security measures and insurance costs into operating budgets. No flood risk is identified. Overall, the building offers clear scope for immediate occupation, letting or modest reconfiguration depending on tenant needs.
Commercial property for sale in Proaktive House, Sidings Court, White Rose Way, Doncaster, South Yorkshire, DN4 — £850,000 • 1 bed • 1 bath • 9039 ft²
Commercial property for sale in Ascot House, Chase Park, Malton Way, Adwick-Le-Street, Doncaster, South Yorkshire, DN6 — £695,000 • 1 bed • 1 bath • 6146 ft²
Office for sale in Unit 3 & 4 Shepcote Office Village, Shepcote Lane, Sheffield, S9 1TG, S9 — £630,000 • 1 bed • 1 bath • 6895 ft²
Office for sale in Enterprise House, Bridge Street, Hexthorpe, Doncaster, South Yorkshire, DN4 — £125,000 • 1 bed • 1 bath • 1049 ft²
Light industrial facility for sale in Unit 4, Total Park, Doncaster, South Yorkshire, DN4 5JP, DN4 — POA • 1 bed • 1 bath • 5000 ft²
Office for sale in Oak House, Moorhead Way, Bramley, Rotherham, South Yorkshire, S66 1YY, S66 — £2,500,000 • 1 bed • 1 bath • 23244 ft²






























































