SN16 0LS - 2 bedroom cottage for sale in The Barton, Sherston, SN16

View on Property Piper

2 bedroom cottage for sale in The Barton, Sherston, SN16

Summary - 18 Easton Town,Sherston,MALMESBURY,SN16 0LS SN16 0LS

2 bed 1 bath Cottage

Renovated village cottage with huge garden and field views, walkable to Sherston centre..
- 240ft garden backing onto open fields
- Newly renovated; move-in ready throughout
- Open-plan ground floor with underfloor heating
- Cosy living room with wood-burning stove
- Integrated kitchen and dining with bi-fold doors
- Attic bedroom has limited headroom
- Off-street parking on private shared drive
- Electric heating — consider running costs
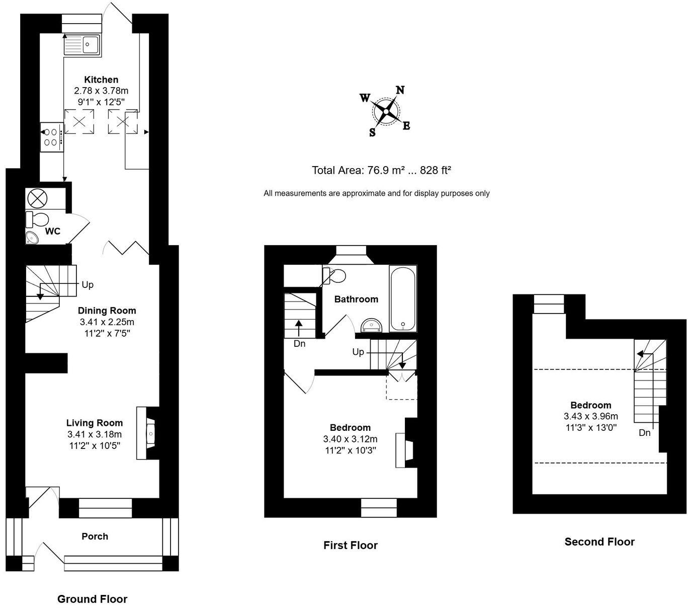
This charming Cotswold cottage is tucked down a private drive in sought-after Sherston, freshly renovated and presented ready to move into. The ground floor flows in an open-plan arrangement with underfloor heating and a cosy wood-burning stove, creating a warm, low-maintenance living space ideal for everyday family life.

Outside, the property’s standout feature is its exceptionally long, 240ft garden that backs directly onto open fields — rare for a village location and perfect for children, pets and gardening enthusiasts. A landscaped terrace, picket-fence enclosure and further lawned areas provide varied outdoor space, while off-street parking serves the handful of homes on the private drive.

Accommodation is arranged over multiple floors with two bedrooms: a main first-floor bedroom beside the family bathroom (shower over bath) and a top-floor attic bedroom. The kitchen has integrated appliances and connects well to the dining area via bi-fold doors, supporting an easy indoor–outdoor lifestyle and entertaining.

Set in the Cotswold Area of Outstanding Natural Beauty and a conservation area, the cottage sits within easy walking distance of Sherston’s High Street amenities and well-regarded local schools. Practical details include freehold tenure, mains drainage and water, average broadband speeds, excellent mobile signal, and Wiltshire Council Tax Band C. Note the property uses electric heating; buyers should consider running costs compared with gas alternatives.

Property Details

Image Descriptions

Floorplan Description

Rooms

Textual Property Features

Target Audience

AI Tags

Detected Visual Features

Nearby Schools

Nearest Bars And Restaurants

,,,,}

Nearest General Shops

,,}

Nearest Grocery shops

,,}

Nearest Supermarkets

,,}

Nearest Religious buildings

,,}

Nearest Medical buildings

,,,}

Nearest Airports

}

Nearest Leisure Facilities

,,,,}

Nearest Tourist attractions

,,}

Nearest Train stations

,,,,}

Nearest Bus stations and stops

,,,,}

Nearest Hotels

,,}

Tags

Local Market Stats

Similar Properties

Meta

High Res Images

Compatible Images

Low res Images

Thumbnails

Raw Images

High Res Floorplan Images

Compatible Floorplan Images

Low res Floorplan Images

FloorplanImages Thumbnail

Raw Floorplan Images