SN16 0LN - 3 bed pretty cotswold cottage in North Wiltshire, SN16 0LN

View on Property Piper

3 bedroom end of terrace house for sale in Cliff Road, Sherston, SN16

Summary - 7 Cliff Road,Sherston,MALMESBURY,SN16 0LN SN16 0LN

3 bed 1 bath End of Terrace

Character-filled village cottage with west-facing garden and renovation potential.
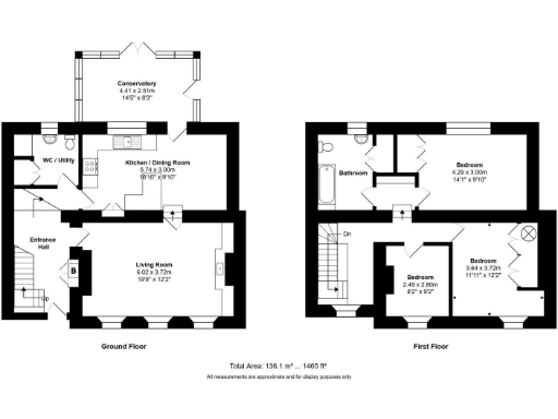
Double-fronted Cotswold stone cottage, approx. 1,465 sq ft
Wold Cottage is a charming double-fronted Cotswold stone cottage offering generous, characterful accommodation across approximately 1,465 sq ft. Light-filled rooms, exposed beams and a traditional fireplace create an immediate homely feel, while the conservatory and kitchen/diner provide sociable family space. The private west-facing garden catches afternoon and evening sun and is planted with established shrubs and seating terraces.

The layout includes a welcoming entrance hall with a galleried landing, a characterful living room with wood burner, a good-sized kitchen/dining room, utility/downstairs WC and conservatory. Upstairs are two double bedrooms, a single bedroom and a family bathroom. The property is freehold, chain free and located close to Sherston village centre with local shops, school and amenities within easy walking distance.

Important to note: the house requires general updating and renovation so buyers should budget for improvement works. Heating is oil-fired and the property sits in a conservation area/AONB, which may restrict some external changes. On-street parking is readily available but there is no private off-street parking. Council Tax is in Band E (above average).

This cottage will suit a buyer seeking period character in a desirable village setting and keen to add value through sympathetic updating. Its size, position and west-facing garden offer strong potential for a comfortable family home once modernisation is carried out.

Property Details

Brochure Descriptions

Image Descriptions

Floorplan Description

Rooms

Textual Property Features

Target Audience

AI Tags

Detected Visual Features

Nearby Schools

Nearest Bars And Restaurants

,,,,}

Nearest General Shops

,,}

Nearest Grocery shops

,,}

Nearest Supermarkets

,,}

Nearest Religious buildings

,,}

Nearest Medical buildings

,,,}

Nearest Airports

}

Nearest Leisure Facilities

,,,,}

Nearest Tourist attractions

,,}

Nearest Train stations

,,,,}

Nearest Bus stations and stops

,,,,}

Nearest Hotels

,,}

Tags

Local Market Stats

Similar Properties

Meta

High Res Images

Compatible Images

Low res Images

Thumbnails

Raw Images

High Res Floorplan Images

Compatible Floorplan Images

Low res Floorplan Images

FloorplanImages Thumbnail

Raw Floorplan Images