Modern, low-maintenance retirement living with on-site care and social facilities.
One-bedroom second-floor apartment with walk-in wardrobe and storage
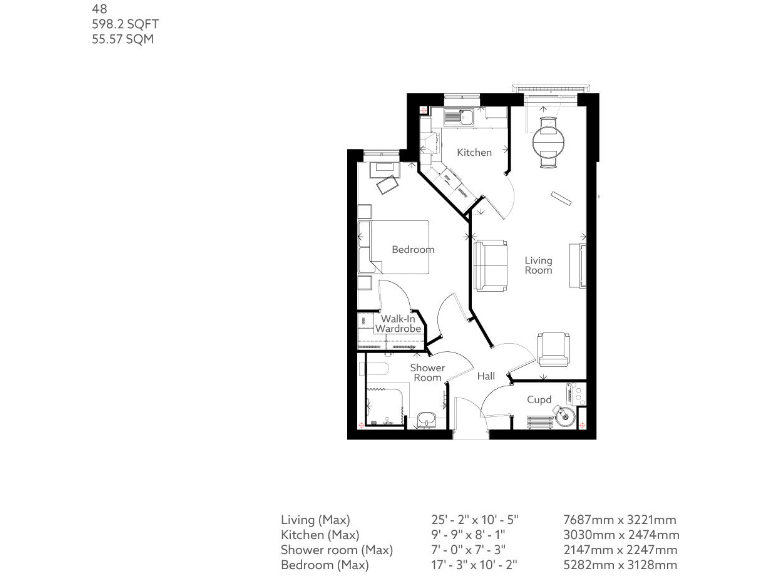
This one-bedroom apartment in Kingfisher Court offers secure, low-maintenance living tailored for older owners. The open-plan layout on the second floor includes a walk-in wardrobe, utility cupboard storage and a French balcony with a north-west aspect, bringing in steady daylight. The development provides on-site communal facilities including a chef-run bistro and landscaped gardens for relaxed socialising.
Residents benefit from 24/7 staffing, an Estate Manager and optional tailored domestic support and personal care — practical for those who want assistance on hand while retaining independence. Built in 2018, the block is modern in design, thermally efficient and sits close to Taunton’s amenities and local services.
This apartment is offered as shared ownership (examples: 50% share from £105,000 or 75% share at £157,500) with a long lease (c.987 years) and a below-average service charge (£241 pcm). Heating is electric via room heaters, and the property is leasehold, so prospective buyers should factor running costs and tenure details into affordability calculations.
1 bedroom retirement property for sale in South Street,
Taunton,
Somerset,
TA1 3GH, TA1 — £165,000 • 1 bed • 1 bath • 623 ft²
1 bedroom retirement property for sale in South Street,
Taunton,
Somerset,
TA1 3GH, TA1 — £161,250 • 1 bed • 1 bath • 598 ft²
2 bedroom apartment for sale in Kingfisher Court, South Street, Taunton, TA1 — £275,000 • 2 bed • 1 bath • 799 ft²
2 bedroom flat for sale in Kingfisher Court, South Street, Taunton, TA1 — £325,000 • 2 bed • 1 bath • 796 ft²
2 bedroom apartment for sale in Stable Court, Gatchell Oaks, TA3 — £85,000 • 2 bed • 1 bath • 674 ft²
2 bedroom apartment for sale in Ellisfields Court, Mount Street, Taunton TA1 3SS, TA1 — £340,000 • 2 bed • 1 bath • 915 ft²


























































































