TA1 3GH - 1 bed spacious retirement apartment in South Street, TA1 3GH

View on Property Piper

1 bedroom retirement property for sale in South Street, Taunton, Somerset, TA1 3GH, TA1

Summary - MANAGERS OFFICE, KINGFISHER COURT, SOUTH STREET TA1 3GH

1 bed 1 bath Retirement Property

Modern one-bedroom retirement flat with on-site care and communal bistro..
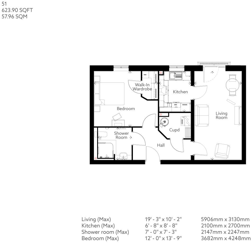
One-bedroom second-floor apartment with walk-in wardrobe and large living area
South-west facing French balcony for good natural light
Purpose-built retirement development with 24/7 staffing and emergency call system
On-site chef-run bistro, communal facilities and Estate Manager
Shared-ownership options; examples shown for 50% and 75% shares
Leasehold with 987 years remaining; average service charge £3,036 pa
Electric room heaters (unspecified tariff) — running costs may be higher
Local area shows higher deprivation; check transport and local services
Spacious second-floor one-bedroom apartment in Kingfisher Court, designed for independent retirement living with on-site support. Apartment 51 offers a large living area, walk-in wardrobe and a south-west facing French balcony that brings natural light into the home. The building is modern (constructed 2018) and achieves a good energy performance (SAP up to 87).

The development provides tailored domestic support and personal care, a monitored emergency call system, a dedicated Estate Manager and 24-hour staffing for peace of mind. Residents benefit from an on-site chef-run bistro with seasonal menus and communal facilities aimed at social living. Shared ownership options are available (examples: 50% share at £110,000 + £253pcm rent; 75% share at £165,000 no rent).

Practical considerations: the property is leasehold (long lease remaining: 987 years) with an average annual service charge of £3,036. Heating is by electric room heaters and the tariff is unspecified, which may affect running costs; council tax band is not provided. The local area is classified as an ageing rural neighbourhood within a city/major town and has higher-than-average area deprivation metrics — consider access to wider services and transport links when assessing suitability.

This apartment will suit a buyer seeking low-maintenance, supported retirement living with communal amenities and flexible ownership. It is presented as move-in ready, but owners should budget for service charges and potentially higher electricity heating costs.

Property Details

Brochure Descriptions

Image Descriptions

Floorplan Description

Rooms

Textual Property Features

Target Audience

AI Tags

Detected Visual Features

EPC Details

Nearby Schools

Nearest Bars And Restaurants

,,,,}

Nearest General Shops

,,}

Nearest Grocery shops

,,}

Nearest Supermarkets

,,}

Nearest Religious buildings

,,}

Nearest Medical buildings

,,,}

Nearest Leisure Facilities

,,,,}

Nearest Tourist attractions

,,}

Nearest Train stations

,,,,}

Nearest Bus stations and stops

,,,,}

Nearest Hotels

,,}

Tags

Local Market Stats

AirBnB Data

Similar Properties

Meta

High Res Images

Compatible Images

Low res Images

Thumbnails

Raw Images

High Res Floorplan Images

Compatible Floorplan Images

Low res Floorplan Images

FloorplanImages Thumbnail

Raw Floorplan Images