Supportive community living with on-site chef and 24/7 staff for independent retirees.
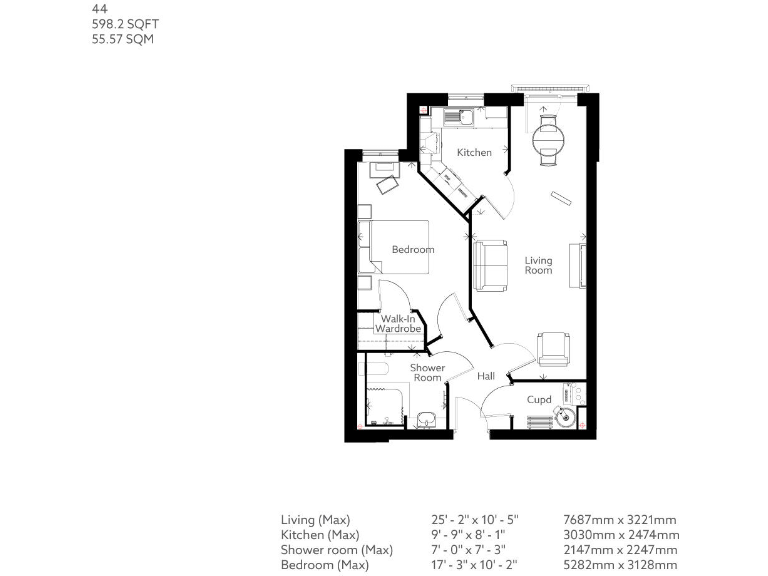
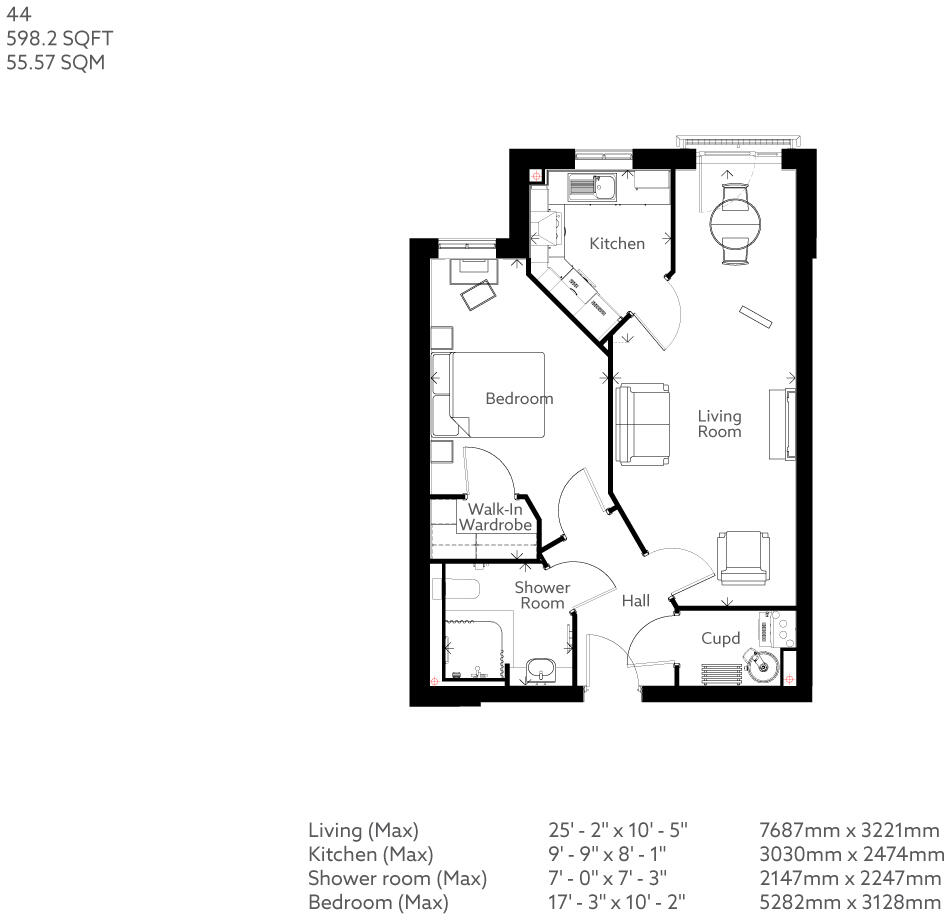
One-bedroom apartment with walk-in wardrobe and utility cupboard
Quietly positioned within Kingfisher Court, Apartment 44 is a one-bedroom retirement flat designed for independent living with on-site support. The second-floor apartment includes a walk-in wardrobe, utility storage and a compact French balcony facing northwest — practical features for day-to-day comfort.
Residents benefit from a staffed retirement community: 24-hour cover, a dedicated Estate Manager and a chef-run bistro with seasonal menus. Shared ownership options (examples shown at 50% and 75%) make the property more affordable for buyers seeking part-purchase solutions and communal living.
The building is modern (built 2018) with a long lease (987 years) and a good SAP energy rating (up to 83). Note practical considerations: heating is by electric room heaters, which can increase running costs compared with gas, and the property is sold leasehold with a monthly service charge of £247.
This apartment suits someone looking to downsize into a supportive community while retaining independence. It offers sensible storage and communal amenities, but buyers should review shared ownership terms, ongoing service charges and likely electricity costs before committing.
1 bedroom retirement property for sale in South Street,
Taunton,
Somerset,
TA1 3GH, TA1 — £157,500 • 1 bed • 1 bath • 598 ft²
1 bedroom retirement property for sale in South Street,
Taunton,
Somerset,
TA1 3GH, TA1 — £165,000 • 1 bed • 1 bath • 623 ft²
2 bedroom apartment for sale in Kingfisher Court, South Street, Taunton, TA1 — £161,250 • 2 bed • 1 bath • 592 ft²
1 bedroom apartment for sale in Kingfisher Court, South Street, Taunton, TA1 — £180,000 • 1 bed • 1 bath • 603 ft²
2 bedroom apartment for sale in Kingfisher Court, South Street, Taunton, TA1 — £249,000 • 2 bed • 1 bath • 799 ft²
2 bedroom flat for sale in Kingfisher Court, South Street, Taunton, TA1 — £325,000 • 2 bed • 1 bath • 796 ft²






























































